
Petrus Regoutplein 22-B046211 XX MaastrichtStatenkwartier
€ 579.000 k.k.
Omschrijving
OPEN HUIS OP ZATERDAG 22 NOVEMBER VAN 11.00 tot 14.00
Het Spoorgebouw – Waar erfgoed en eigentijds wonen samenkomen
Gelegen in het hart van het Sphinxkwartier in Maastricht, vormt het Spoorgebouw een uniek onderdeel van de voormalige Sphinx-fabrieken – ooit een van Nederlands meest toonaangevende industriële complexen. Gebouwd rond 1880 als goederenstation voor de spoorlogistiek van de keramiek- en sanitairindustrie, ademt dit robuuste pand nog altijd de sfeer van de industriële revolutie.
Met zijn karakteristieke bakstenen gevel en ijzeren constructiedetails is het Spoorgebouw niet alleen een architectonisch icoon, maar ook een levend monument binnen het vernieuwde Sphinxterrein. De afgelopen jaren is dit historische gebouw zorgvuldig herontwikkeld tot een plek waar wonen, werken en cultuur naadloos samenkomen.
In dit unieke monumentale kader presenteren wij met trots een exclusief aanbod van twintig moderne appartementen – comfortabel, duurzaam en met behoud van het karakter van weleer.
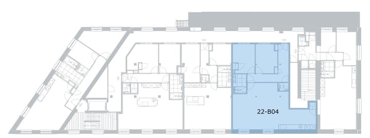
Appartement B04 – Gelijkvloers wonen met karakter in het Spoorgebouw
Vraagprijs: € 579.000 k.k.
Woonoppervlakte: ca. 103 m² + privé berging (ca. 14 m²)
Energielabel: A+
VvE-bijdrage: € 241,- per maand
Stap binnen in Appartement B04, een stijlvol en bovendien levensloopbestendig 4-kamerappartement gelegen op de 1e verdieping van het historische Spoorgebouw. Hier komt industrieel erfgoed samen met modern wooncomfort.
Indeling
1e etage:
Met de lift of trappenhuis bereik je op de 1e etage een inpandige galerij met authentieke elementen die toegang biedt tot dit sfeervolle appartement. Bij binnenkomst betreed je de hal met toegang tot een riante woonkamer, twee slaapkamers, een afzonderlijke wasruimte, een moderne badkamer en een separate toiletruimte met wandcloset en fonteintje.
De woonkamer met hoog authentiek plafond en veel lichtinval is uiterst sfeervol en is tevens voorzien van een open keuken met een moderne keukeninrichting.
Diverse authentieke plafonds en elementen zijn behouden gebleven en geven de ruimtes een uniek karakter.
Badkamer: voorzien van royale inloopdouche en badmeubel met dubbele wastafel.
Vloerafwerking: lichte pvc-vloeren in hal, woonkamer en slaapkamers zorgen voor een frisse en eigentijdse uitstraling.
Open keuken: luxueuze en uitgebreide keukeninrichting voorzien van o.a. inductiekookplaat met randafzuiging, combi-oven, koel-/vriescombinatie en vaatwasser.
Uitzicht: Het appartement heeft uitzicht op het Sphinxkwartier en de fraaie skyline van Maastricht.
Extra’s
- Levensloopbestendig appartement (gelijkvloers).
- Ruime privé-berging (ca. 14 m²) in het souterrain.
- Gemeenschappelijke fietsenstalling, gemeenschappelijke berging en lift aanwezig in het complex.
- Parkeren: middels Q-Park abonnement op de nabijgelegen Frontensingel. De eerste 3 jaar zijn reeds inbegrepen in de
koopsom.
- Duurzaam wonen: het appartement is volledig gasloos en aangesloten op de stadsverwarming.
- Projectnotaris: Wyck Notarissen te Maastricht.
- Overige info: Spoorgebouw.nl
- Aanvaarding in overleg.
Dit appartement is ideaal voor wie houdt van wonen in de stad, maar mét historie, comfort en uitzicht op het Sphinxkwartier.
Aansprakelijkheid
De bovenstaande informatie biedt slechts een globale omschrijving van het object. De gegevens zijn deels gebaseerd op informatie verstrekt door derden. Hoewel wij deze informatie met de grootst mogelijke zorg hebben samengesteld, kunnen wij geen aansprakelijkheid aanvaarden voor eventuele onjuistheden.
Aan deze brochure en eventuele plattegronden kunnen geen rechten worden ontleend.
Ter bescherming van de belangen van zowel koper als verkoper wordt uitdrukkelijk gesteld dat een koopovereenkomst betreffende deze onroerende zaak eerst tot stand komt nadat beide partijen de overeenkomst schriftelijk hebben ondertekend (“schriftelijkheidsvereiste”).
De koper heeft te allen tijde het recht om op eigen kosten een bouwkundige keuring te laten uitvoeren of andere adviseurs te raadplegen, teneinde een goed inzicht te verkrijgen in de staat van onderhoud van het object.
Kenmerken
Overdracht
- Aangeboden sinds
- Aanvaarding
- In overleg
- Vraagprijs
- € 579.000 kosten koper
- Vraagprijs per m²
- € 5.621
- Status
- Beschikbaar
- Bijdrage VvE
- € 240,85 per maand
Bouw
- Soort appartement
- Portiekflat (appartement)
- Soort bouw
- Bestaande bouw
- Bouwjaar
- 2025
- Soort dak
- Zadeldak bedekt met pannen
- Toegankelijkheid
- Toegankelijk voor ouderen
Oppervlakten en inhoud
- Gebruiksoppervlakten
- Wonen
- 103 m²
- Externe bergruimte
- 14 m²
- Inhoud
- 403 m³
Indeling
- Aantal kamers
- 4 kamers (2 slaapkamers)
- Aantal badkamers
- 1 badkamer en 1 apart toilet
- Badkamervoorzieningen
- Dubbele wastafel, inloopdouche, en vloerverwarming
- Aantal woonlagen
- 1 woonlaag en een kelder
- Voorzieningen
- Balansventilatie, glasvezelkabel, en lift
- Gelegen op
- 1e woonlaag
Energie
- Energielabel
- A+
- Isolatie
- Volledig geïsoleerd
- Verwarming
- Stadsverwarming
- Warm water
- Stadsverwarming
Kadastrale gegevens
- MAASTRICHT A 8523
- Kadastrale kaart
- Eigendomssituatie
- Volle eigendom
Buitenruimte
- Ligging
- Aan rustige weg, in centrum en in woonwijk
Bergruimte
- Schuur/berging
- Inpandig
Garage
- Soort garage
- Parkeerplaats
Parkeergelegenheid
- Soort parkeergelegenheid
- Parkeergarage
VvE checklist
- Inschrijving KvK
- Ja
- Jaarlijkse vergadering
- Nee
- Periodieke bijdrage
- Ja (€ 240,85 per maand)
- Reservefonds aanwezig
- Nee
- Onderhoudsplan
- Nee
- Opstalverzekering
- Ja
Foto's 21
© 2001-2026 funda




















