Dit huis op Funda: https://www.funda.nl/detail/koop/maastricht/huis-jekerstraat-19/88619072/

Jekerstraat 196211 NR MaastrichtKommelkwartier
€ 1.095.000 k.k.
Omschrijving
In het bruisende centrum van Maastricht ligt dit prachtige monumentale, statige voormalige officierswoning. Dit pareltje heeft vanaf 2009 een grondige renovatie plaatsgevonden, waarbij het oude hart van het pand werd behouden en al het comfort van heden wordt gecombineerd met als resultaat een prachtige riant herenhuis met een intieme sfeer, waarbij je de hectiek van de stad even van je af kan laten glijden. Het geheel heeft in het totaal 5 slaapkamers en 3 badkamers, een prachtige gewelfde kelder en een mooie, omsloten patiotuin. Tevens is er een ondergrondse eigen parkeerplaats aanwezig.
INDELING
Souterrain:
Prachtige gewelfde en royale (wijn)kelder van ca. 40 m2. Deze kelder heeft zijn origine uit het jaartal 1600.
Begane grond:
Bij binnenkomst ademt de ruimte direct sfeer. De trappartij, waarbij het originele houtwerk nog te zien is, springt direct in het oog. Onder de trappartij bevindt zich het gastentoilet met klassiek fonteintje. Middels nieuwe doch authentieke deuren komt u rechts in de keuken voorzien van alle denkbare gemakken. De antieke boeren plavuizenvloer is voorzien van vloerverwarming en er is tevens een haardpartij aanwezig. Aan de linkerzijde van de entree bevindt zich de living met openslaande deuren naar de patiotuin. Ook hier is een haardpartij en zijn er authentieke elementen zichtbaar zoals de balkenstructuur. Tevens is de kelder vanuit de living bereikbaar.
Eerste verdieping:
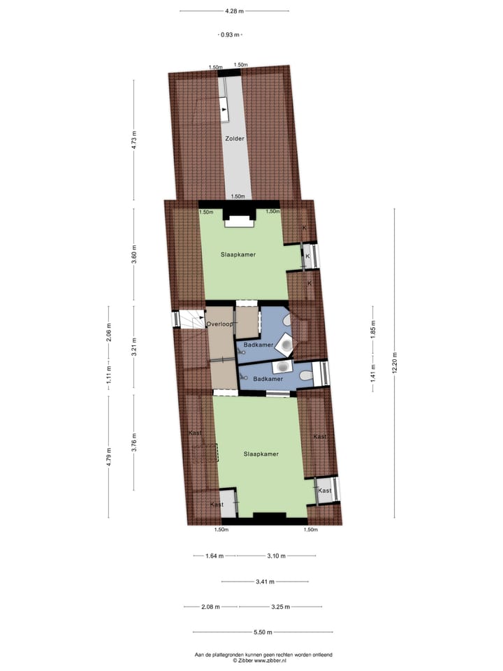
De ruime overloop geeft toegang tot de bibliotheek, slaapkamers en badkamer. De badkamer is voorzien van een jacuzzi, doucheruimte en badmeubel. Tevens zijn de witgoedaansluitingen aanwezig in de badkamer. Naast de hoofdslaapkamer is er een modern separaat toilet aanwezig Ook is er een 2de keukenruimte ingericht op de eerste verdieping.
De slaapkamer achter de bibliotheek heeft 2 verdiepingen boven de poortvleugel, alwaar een kantoor ingericht kan worden.
Tweede verdieping:
De vaste trappartij naar de tweede verdieping biedt toegang tot 2 slaapkamers met ieder een eigen badkamer. Beide badkamers zijn voorzien van vloerverwarming, een inloopdouche, toilet en badmeubel.
Tuin:
Een sfeervolle patiotuin, die bereikbaar is via de living, keuken en entree.
Parkeren:
Middels een autolift in de Jekerstraat gelegen te bereiken parkeerplaats in een kleinschalige parkeergarage (16 parkeerplaatsen).
Leuk om te weten:
- Bouwjaar 1721 (conform BAG), eigen perceel: 126 m² (conform kadaster);
- Woonoppervlakte ca. 230 m² (meetrapport aanwezig);
- Inhoud: ca. 957 m³;
- Vergunning voor "guest house" aanwezig;
- Volledige renovatie volgens Erfgoedwet en Omgevingswet;
- Ondergrondse parkeerplaats in parkeergarage;
- Aanvaarding in overleg.
Architectuur en stedenbouw
Het grootste deel van Maastricht-Centrum valt onder het Rijksbeschermd gezicht Maastricht. In de hele wijk bevinden zich naar schatting duizend rijksmonumenten en minstens hetzelfde aantal gemeentelijke monumenten. Hoewel er veel verloren is gegaan, bezit de stad meer middeleeuws erfgoed dan welke andere Nederlandse stad. Naast de twee romaanse kapittelkerken bleven twee van de vier gotische parochiekerken bewaard. Geen enkele middeleeuwse gasthuis- of kerspelkapel wist aan de slopershamer te ontkomen. Van de vele kloosters zijn diverse bewaard gebleven, maar de grote complexen van de Duitse ridders en de antonieten zijn in de negentiende eeuw gesloopt, terwijl van het Beyartklooster slechts een ruïne bewaard bleef. Ook het grootste deel van de eerste en tweede stadsmuur werd afgebroken. Slechts één stadspoort (de Helpoort), enkele waterpoorten, diverse muurtorens en andere muurrestanten bleven gespaard. De 'middeleeuwse' Sint Servaasbrug is in feite een reconstructie uit de jaren 1930.
Van de monumenten na 1500 kunnen genoemd worden het Dinghuis en het Stadhuis van Maastricht, als bakens van stedelijke trots, het Spaans Gouvernement en andere kanunnikenhuizen rondom het Vrijthof en het Onze Lieve Vrouweplein, diverse poort- en refugiehuizen en andere herenhuizen in onder andere de Boschstraat, de Grote Gracht, de Brusselsestraat, de Tongersestraat en de Bredestraat. Het Jekerkwartier is vooral bekend om zijn pittoreske straatjes en de vele onderwijsinstellingen, waarvan er enkele in moderne gebouwen zijn ondergebracht (bron: Wikipedia).
Interesse? Wij nemen graag de tijd voor u! Neem contact op via het contactformulier op de diverse websites of op onze website en we laten u de woning graag zien.
Overige informatie:
De gebruikelijke waarborgsom/bankgarantie is 10% van de koopsom. De koper dient deze, indien de verkoper en koper dit overeenkomen, binnen 2 weken nadat het financieringsvoorbehoud is verlopen bij de desbetreffende notaris te deponeren.
Indien c.v.-ketel en/of warmwatervoorziening een huurtoestel is, dient koper de huurovereenkomst over te nemen.
Toelichtingsclausule NEN2580
De Meetinstructie is gebaseerd op de NEN2580. De Meetinstructie is bedoeld om een meer eenduidige manier van meten toe te passen voor het geven van een indicatie van de gebruiksoppervlakte. De Meetinstructie sluit verschillen in meetuitkomsten niet volledig uit, door bijvoorbeeld interpretatiever- schillen, afrondingen of beperkingen bij het uitvoeren van de meting.
Schriftelijkheidsvereiste
Conform artikel 7:2 Burgerlijk Wetboek, is er pas sprake van een rechtsgeldige koopovereenkomst als de particuliere verkoper en de particuliere koper de koopovereenkomst hebben ondertekend. Een mondelinge overeenstemming tussen de particuliere verkoper en de particuliere koper is niet rechts- geldig.
Disclaimer
Alle door ons kantoor verstrekte informatie omtrent onroerende zaken, moet beschouwd worden als een uitnodiging om in onderhandeling te treden, en is geheel vrijblijvend! Alle vermelde maten en afmetingen zijn slechts bij benadering. Aan deze beperkte informatie kunnen geen rechten worden ontleend. Indien in enige documentatie of op enige website informatie staat die niet overeen komt met de werkelijkheid, dan geldt de feitelijke situatie waarin de woning zich bevindt, zoals koper deze tijdens de bezichtiging heeft kunnen waarnemen, en wordt de woning in deze feitelijke situatie/staat verkocht. Een (eventueel) bijgevoegde plattegrond dient uitsluitend als globale indicatie/visualisatie. Hieraan kunnen uitdrukkelijk geen rechten worden ontleend.
De makelaar Ray van der Venne nodigt u graag uit voor een bezichtiging.
Kenmerken
Overdracht
- Aangeboden sinds
- Aanvaarding
- In overleg
- Vraagprijs
- € 1.095.000 kosten koper
- Vraagprijs per m²
- € 4.761
- Status
- Beschikbaar
Bouw
- Soort woonhuis
- Herenhuis, tussenwoning
- Soort bouw
- Bestaande bouw
- Bouwjaar
- 1700
- Specifiek
- Monumentaal pand
Oppervlakten en inhoud
- Gebruiksoppervlakten
- Wonen
- 230 m²
- Overige inpandige ruimte
- 40 m²
- Perceel
- 126 m²
- Inhoud
- 957 m³
Indeling
- Aantal kamers
- 13 kamers (5 slaapkamers)
- Aantal woonlagen
- 3 woonlagen en een kelder
Energie
- Energielabel
- Niet beschikbaar
- Isolatie
- Dakisolatie, muurisolatie en vloerisolatie
- Verwarming
- Cv-ketel
- Warm water
- Cv-ketel
- Cv-ketel
- Gas gestookt combiketel, eigendom
Kadastrale gegevens
- MAASTRICHT B 5070
- Kadastrale kaart
- Oppervlakte
- 121 m²
- Eigendomssituatie
- Volle eigendom
- MAASTRICHT B 5069
- Kadastrale kaart
- Oppervlakte
- 5 m²
- Eigendomssituatie
- Volle eigendom
Buitenruimte
- Ligging
- In centrum
- Tuin
- Patio/atrium
Parkeergelegenheid
- Soort parkeergelegenheid
- Parkeergarage en parkeervergunningen
Foto's 50
Plattegronden 4
© 2001-2025 funda





















































