Dit huis op Funda: https://www.funda.nl/detail/koop/maastricht/huis-kruisboogruwe-27/43719336/

Omschrijving
Nabij winkels en basisschool gelegen tussengelegen woonhuis met woonkamer, halfopen keuken, 3 slaapkamers, badkamer en tuin gelegen in Maastricht-Malberg aan Kruisboogruwe 27.
Souterrain:
Vanuit de keuken bereikbare voorraadkelder 4.20 x 1.80.
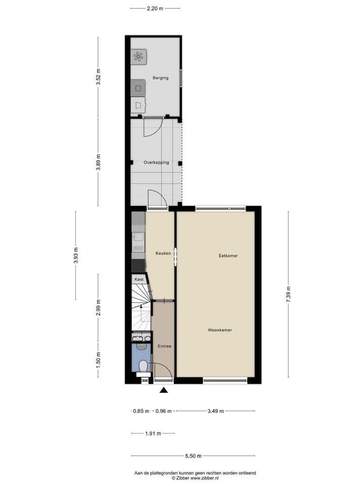
Begane grond:
Entree/hal met meterkast, verdiepingstrap en deels licht betegelde toiletruimte met hangcloset en fonteintje. Doorzon woonkamer 7.40 x 3.50 met (min of meer) gesloten keuken 3.90/2.70 x 1.90. De keuken is voorzien van een eenvoudige aanbouwcombinatie inclusief oven, afzuigkap, keramische kookplaat en koelkast. Totaal oppervlak van woonkamer en keuken bedraagt ca. 32m². Via de keuken toegang naar de ca. 10 meter diepe tuin met terras, overkapping, achterom en berging 3.50 x 2.20 alwaar aansluitpunt wasapparatuur.
1e Verdieping:
Overloop. Drie slaapkamers respectievelijk 3.70 x 3.50, 3.50 x 2.95 beide met muurkast en 2.75 x 1.90. Grotendeels licht betegelde badkamer met douche, wastafelmeubel en 2e toilet (hangcloset).
2e Verdieping:
Middels vlizotrap bereikbare bergzolder 5.50 x 2.20 alwaar de cv-ketel (huur).
Bijzonderheden:
- Gelegen op loopafstand van winkelcentrum Malberg, basisschool, wandelgebied Dousberg en openbaar vervoer.
- Energielabel B.
- Vloeren grotendeels afgewerkt met laminaatvloer.
- Deels voorzien van rolluiken (deels elektrisch bedienbaar).
Alle aangegeven maatvoeringen betreffen circa maten.
Voor meer informatie of voor het maken van een afspraak tot bezichtiging kunt u contact opnemen ons kantoor 088-4504666
Nadere informatie / disclaimer
- Ter bescherming van de belangen van zowel koper als verkoper, wordt uitdrukkelijk gesteld dat een koopovereenkomst met betrekking tot deze onroerende zaak eerst dan tot stand komt nadat koper en verkoper de koopovereenkomst hebben getekend (“schriftelijkheidsvereiste”).
- De termijn die wordt opgenomen voor eventuele (overeengekomen) ontbindende voorwaarden (bv. Financiering) is in de regel 4 tot 6 weken na het sluiten van de mondelinge wilsovereenkomst.
- De waarborgsom/bankgarantie is 10% van de koopsom. De koper dient deze 2 weken ná het vervallen van de ontbindende voorwaarden bij de desbetreffende notaris te deponeren.
- Koper is te allen tijde gerechtigd voor eigen rekening een bouwkundige keuring te (laten) verrichten dan wel andere adviseurs te raadplegen teneinde een goed inzicht te verkrijgen over de staat van onderhoud.
- Deze informatie is door ons met de nodige zorgvuldigheid samengesteld. Onzerzijds wordt echter geen enkele aansprakelijkheid aanvaard voor enige onvolledigheid, onjuist of anderszins, dan wel de gevolgen daarvan.
- Alle opgegeven maten en oppervlakten zijn indicatief. Van toepassing zijn de NVM voorwaarden.32
Kenmerken
Overdracht
- Laatste vraagprijs
- € 239.000 kosten koper
- Vraagprijs per m²
- € 2.988
- Status
- Verkocht
Bouw
- Soort woonhuis
- Eengezinswoning, tussenwoning
- Soort bouw
- Bestaande bouw
- Bouwjaar
- 1969
- Soort dak
- Zadeldak bedekt met pannen
Oppervlakten en inhoud
- Gebruiksoppervlakten
- Wonen
- 80 m²
- Overige inpandige ruimte
- 20 m²
- Gebouwgebonden buitenruimte
- 9 m²
- Externe bergruimte
- 8 m²
- Perceel
- 216 m²
- Inhoud
- 360 m³
Indeling
- Aantal kamers
- 4 kamers (3 slaapkamers)
- Aantal badkamers
- 1 badkamer en 1 apart toilet
- Badkamervoorzieningen
- Douche, toilet, en wastafelmeubel
- Aantal woonlagen
- 2 woonlagen, een zolder, en een kelder
- Voorzieningen
- Rolluiken
Energie
- Energielabel
- B
- Isolatie
- Dakisolatie en gedeeltelijk dubbel glas
- Verwarming
- Cv-ketel
- Warm water
- Cv-ketel
- Cv-ketel
- ATAG CW4 (gas gestookt combiketel uit 2022, huur)
Kadastrale gegevens
- MAASTICHT N 2447
- Kadastrale kaart
- Oppervlakte
- 108 m²
- Eigendomssituatie
- Volle eigendom
- MAASTRICHT N 2447
- Kadastrale kaart
- Oppervlakte
- 108 m²
- Eigendomssituatie
- Volle eigendom
Buitenruimte
- Ligging
- In woonwijk
- Tuin
- Achtertuin
- Achtertuin
- 58 m² (10,00 meter diep en 5,80 meter breed)
- Ligging tuin
- Gelegen op het zuidoosten bereikbaar via achterom
Bergruimte
- Schuur/berging
- Vrijstaande stenen berging
- Voorzieningen
- Elektra
Parkeergelegenheid
- Soort parkeergelegenheid
- Openbaar parkeren
Foto's 37
© 2001-2025 funda




































