Dit huis op Funda: https://www.funda.nl/detail/koop/makkum/huis-de-bollen-7/43633216/

Omschrijving
Vlakbij 2 privé-strandjes (dus ideaal voor surfers) en erg vrij gelegen, deels gemoderniseerde recreatiewoning met grote garage en de mogelijkheid om aan de buitenzijde van de brug een ligplaats erbij te kopen. Deze goed onderhouden Duinvilla heeft verder een fraai aangelegde tuin waar u heerlijk van de zon kunt genieten.
Deze fraaie, luxe en compleet voor 6-personen ingerichte Duinvilla heeft o.a. een zonnige, ruime woonkamer met gashaard, ruime open keuken, 2 zonnige terrassen en een grote, moderne badkamer. Deze vakantiewoning ligt op totaal 489 m² eigen grond. De achtertuin ligt vrij aan een groenstrook (duinvallei) met schelpenpaadje naar één van de privé-strandjes van het park. Kortom een heerlijke plek om te genieten.
Indeling begane grond:
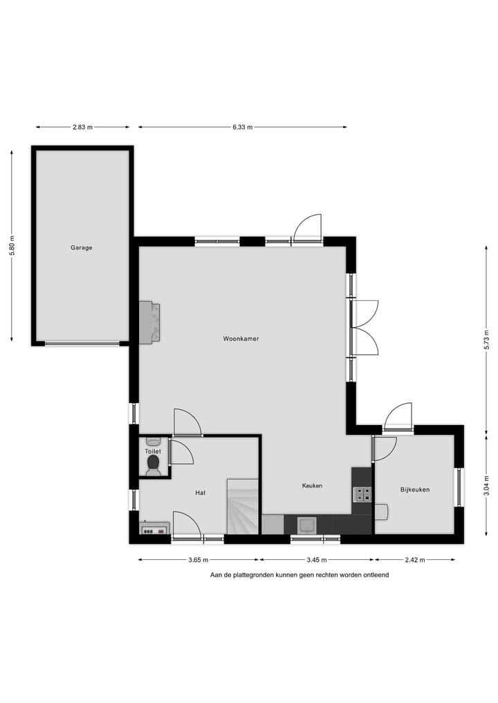
Entree/hal met meterkast (9 automatische groepen en 3 aardlekschakelaars) en trap naar de 1e verdieping.
Geheel betegeld, hangend en modern toilet met fonteintje (± 2020).
Woonkamer (van ruim 36 m²) met schouw v.v. gashaard, dubbele tuindeuren naar het terras op het zuidoosten, (enkele) tuindeur naar het terras op het noordoosten. In onder meer de woonkamer en keuken ligt vloerverwarming.
L-vormige, nette, open keuken (bijna 10,5 m²) met kunststof aanrechtblad v.v. gaskookplaat, afzuigkap, koel-/vriescombinatie, combi-magnetron en vaatwasser.
Bijkeuken (bijna 7,5 m²) met buitendeur, was-/droogcombinatie en cv-combiketel (Intergas Kombi Kompakt HRE 36 30 A, ± 2017, eigendom).
Aangebouwde, verlengde garage (afm. ± 5.80 x 2.83 m) met elektrische kanteldeur. De garage heeft een betonnen vloer en is v.v. elektra.
1e Verdieping:
Overloop met luik naar ruimte met mechanische ventilatie met warmte-terug-win-unit.
Moderne, grote badkamer (± 2020, van ruim 11 m²) met bad, douchecabine en dubbele wastafel. In de badkamer is vloerverwarming (via retourleiding) aanwezig.
1e Slaapkamer (van 12,6 m²) op het oosten met dakkapel en eigenaarskast.
2e Slaapkamer (circa 12 m²) op het noorden.
Geheel betegeld, hangend 2e toilet met fonteintje.
3e Slaapkamer (bijna 8,3 m²) op het westen.
Op de gehele verdiepingsvloer ligt een mooie PVC-vloer.
Tuin:
De zeer fraai aangelegde ruime tuin ligt rondom de woning en loopt over in het algemene groen van het park.
Het terras aan de zijkant ligt op het noordoosten en loopt over in het terras aan de achterzijde (zuidoosten). Door de sfeervolle begroeiing bieden beide terrassen veel privacy,
Vanuit de achtertuin loopt u via een schelpenpaadje naar een privé-standje van het park. Vanaf dit strandje kan ook gesurft worden. Vanaf de voorzijde is zowel dit privé-strandje als een ander surfstrandje eenvoudig en snel te bereiken.
De oprit aan de voorzijde is groot genoeg voor het parkeren van tenminste 2 auto's.
Ligplaats te koop:
Bij deze woning wordt een eigen ligplaats te koop aangeboden, deze ligplaats ligt op het park tegenover de Dijkwoningen aan de IJsselmeerzijde, dus aan de buitenkant van de houten brug.
De ligplaats (nummer 48, ca. 24 m² groot) heeft een lengte van een kleine 8 meter.
De vraagprijs van de woning mét ligplaats bedraagt € 445.000,- k.k.
Algemeen:
Deze fraai gelegen recreatiewoning heeft een woonoppervlakte van ± 112 m² en de inhoud bedraagt ongeveer 408 m³.
De volledig geïsoleerde en omstreeks 2002 gebouwde woning beschikt over betonnen vloeren en houten kozijnen v.v. dubbel glas. Verder is deze woning v.v. vloerverwarming op de begane grond en in de badkamer, een ventilatiesysteem met warmte-terugwin-unit en een cv-installatie uit 2017.
Ligging:
Deze recreatiewoning is ook een perfecte uitvalsbasis om bijvoorbeeld te gaan windsurfen of wingen, één van de kleine IJsselmeerstrandjes van het park ligt namelijk op ongeveer 125 meter afstand van deze woning.
Maar ook het IJsselmeer en haar strand is ook een ideale plek o.a. voor (kleine) kinderen om te spelen, voor surfers of catamaranzeilers om het IJsselmeer op te gaan of voor de jeugd om lekker te chillen. Uiteraard kan je vanaf de boulevard en het strand ook heerlijk genieten van de zon die in het IJsselmeer ondergaat.
Verhuur en parkkosten:
Deze woning wordt momenteel verhuurd via Airbnb.
Verhuur is echter niet verplicht en als je wilt verhuren dan mag je dit zelf doen of professioneel via Beach Resorts Makkum.
De jaarlijkse parkkosten bedragen ca. € 3.200,- (2024, deels belast met BTW). Deze kosten zijn voor o.a. (toekomstig) onderhoud aan vaarwater, bruggen en wegen, verlichting, openbaar groen en dergelijke en zijn de komende tijd wat hoger dan normaal in verband met de vervanging van een aantal bruggen.
Omgeving:
Deze recreatiewoning is gelegen op het Beach Resorts Makkum, één van de mooiste recreatieparken van Nederland. Op loopafstand ligt o.a. het IJsselmeerstrand met boulevard, winkels en horecagelegenheden.
Op het Beach Resort zelf is een centrale receptie gerealiseerd met o.a. winkeltjes, een speelhoek voor de kinderen en een (buiten) tennisbaan.
Makkum is niet alleen een populaire surfspot of een mooie plek om bijvoorbeeld te gaan catamaranzeilen, door het ondiepe water is het strand ook uitermate kindvriendelijk. Verder ligt het gezellige watersportdorp Makkum op circa 2,5 tot 3 kilometer afstand van deze recreatiewoning.
Bekijk ook de digitale presentatie en plattegronden voor de indeling en maatvoering. De foto's geven een reëel beeld van deze mooie 6 persoons Duinvilla nabij het IJsselmeer en -strand.
Aanvaarding: In overleg.
Deze informatie is door ons met de nodige zorgvuldigheid samengesteld, veelal aan de hand van de door verkoper aan ons ter hand gestelde gegevens en tekeningen. Onzerzijds wordt echter geen enkele aansprakelijkheid aanvaard voor enige onvolledigheid, onjuistheid of anderszins, dan wel de gevolgen daarvan. Dit geldt voor onder meer de opgegeven maten, oppervlakten, isolatie en ouderdom van technische installaties.
Kenmerken
Overdracht
- Laatste vraagprijs
- € 415.000 kosten koper
- Status
- Verkocht
- Permanente bewoning
- Permanente bewoning is niet toegestaan
Bouw
- Soort woonhuis
- Eengezinswoning, vrijstaande woning
- Soort bouw
- Bestaande bouw
- Bouwjaar
- 2002
- Specifiek
- Gemeubileerd en gestoffeerd
- Soort dak
- Zadeldak bedekt met riet
Oppervlakten en inhoud
- Gebruiksoppervlakten
- Wonen
- 112 m²
- Overige inpandige ruimte
- 16 m²
- Perceel
- 489 m²
- Inhoud
- 408 m³
Indeling
- Aantal kamers
- 4 kamers (3 slaapkamers)
- Aantal badkamers
- 1 badkamer en 2 aparte toiletten
- Badkamervoorzieningen
- Dubbele wastafel, ligbad, vloerverwarming, en wastafelmeubel
- Aantal woonlagen
- 2 woonlagen
- Voorzieningen
- Balansventilatie, dakraam, mechanische ventilatie, rookkanaal, en TV kabel
Energie
- Energielabel
- B
- Isolatie
- Dakisolatie, dubbel glas, muurisolatie, vloerisolatie en volledig geïsoleerd
- Verwarming
- Cv-ketel, gashaard en gedeeltelijke vloerverwarming
- Warm water
- Cv-ketel
- Cv-ketel
- Intergas Kombi Kompakt HRE 36 30 A (gas gestookt combiketel uit 2017, eigendom)
Kadastrale gegevens
- MAKKUM D 752
- Kadastrale kaart
- Oppervlakte
- 489 m²
- Eigendomssituatie
- Volle eigendom
Buitenruimte
- Ligging
- Aan park, aan rustige weg, aan vaarwater en in recreatiepark
- Tuin
- Achtertuin, voortuin en zijtuin
- Achtertuin
- 180 m² (12,00 meter diep en 15,00 meter breed)
- Ligging tuin
- Gelegen op het zuidoosten bereikbaar via achterom
Garage
- Soort garage
- Aangebouwde stenen garage
- Capaciteit
- 1 auto
- Voorzieningen
- Elektrische deur en elektra
- Isolatie
- Geen isolatie
Parkeergelegenheid
- Soort parkeergelegenheid
- Op eigen terrein
Foto's 51
© 2001-2025 funda


















































