
Appartementen (Bouwnr. A05)7942 XK MeppelZeeheldenbuurt
€ 332.500 v.o.n.
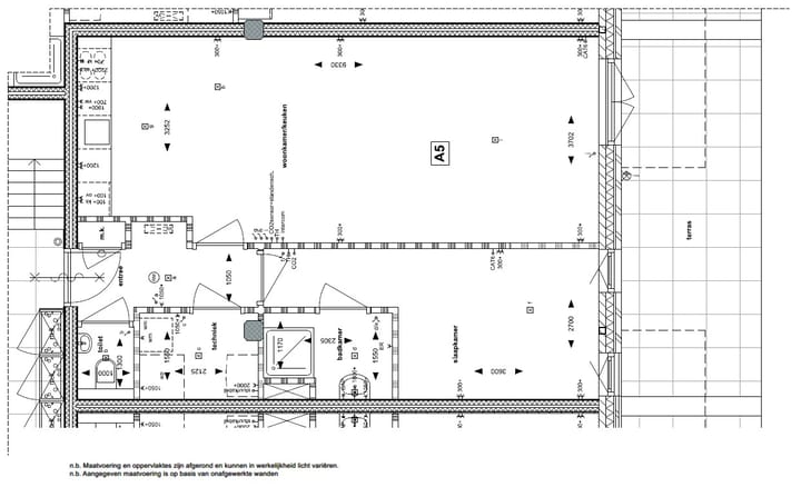
Omschrijving
Op de begane grond bevindt zich dit prettige en slim ingedeelde appartement. Gesitueerd op een prachtige locatie en biedt vanuit zowel de woonkamer als slaapkamer uitzicht op het ruime terras van circa 17 m².
Via het centrale portaal stap je de hal van dit appartement in. Vanuit hier heb je direct toegang tot de lichte woonkamer met open keuken. De keuken is niet bij de prijs inbegrepen, zodat je zelf de vrijheid hebt om deze volledig naar wens samen te stellen. Het appartement is functioneel en doordacht ingedeeld, waardoor elke vierkante meter optimaal wordt benut. De keuken heeft een praktische plek gekregen in de ruimte, zodat er voldoende ruimte overblijft voor een comfortabele eethoek en zithoek.
Vanuit de hal is er toegang tot de rustige slaapkamer, die direct toegang biedt tot een moderne badkamer en-suite. De badkamer is volledig uitgerust met een wastafel en douche, op de gang bevindt zich het separate toilet en ruime berging met plek voor je wasmachine en droger.
Kenmerken
Overdracht
- Aangeboden sinds
- Aanvaarding
- In overleg
- Vraagprijs
- € 332.500 vrij op naam
- Vraagprijs per m²
- € 5.451
- Status
- Beschikbaar
Bouw
- Soort appartement
- Benedenwoning (appartement)
- Soort bouw
- Nieuwbouw
- Bouwjaar
- 2026
Oppervlakten en inhoud
- Gebruiksoppervlakten
- Wonen
- 61 m²
- Gebouwgebonden buitenruimte
- 17 m²
- Inhoud
- 159 m³
Indeling
- Aantal kamers
- 2 kamers (1 slaapkamer)
- Aantal badkamers
- 1 badkamer en 1 apart toilet
- Badkamervoorzieningen
- Douche, vloerverwarming, en wastafel
- Aantal woonlagen
- 1 woonlaag
- Gelegen op
- Begane grond
Energie
- Energielabel
- Verwarming
- Gehele vloerverwarming
Buitenruimte
- Tuin
- Zonneterras
- Zonneterras
- 17 m² (2,60 meter diep en 6,50 meter breed)
- Ligging tuin
- Gelegen op het zuidwesten
Parkeergelegenheid
- Soort parkeergelegenheid
- Op afgesloten terrein
Foto's 11
© 2001-2026 funda










