
Jan van Scorelstraat 207944 CZ MeppelSchildersbuurt
€ 325.000 k.k.
Omschrijving
In een rustige en kindvriendelijke woonwijk staat deze goed onderhouden hoekwoning op een royaal perceel van 309 m². De woning ligt op een fijne locatie, dichtbij winkels, scholen en sportvoorzieningen. Daarnaast is er volop parkeergelegenheid direct naast het huis.
Binnen biedt de woning een speelse indeling en een moderne uitstraling. De gezellige woonkamer is licht en ruim, mede dankzij de grote raampartijen die zorgen voor veel daglicht. De open keuken is praktisch ingericht en biedt voldoende ruimte voor een eettafel. Aan de voorzijde is een bijkeuken aanwezig en er is daarnaast een aangebouwde berging, die via buitenom bereikbaar is.
Op de eerste verdieping bevinden zich vier ruime slaapkamers en een functionele badkamer. De tweede verdieping beschikt over extra bergruimte én een vijfde slaapkamer – ideaal als logeer- of werkkamer.
De zonnige tuin ligt naast de woning en is verzorgd aangelegd met sierbestrating, groene borders en meerdere terrassen. Dankzij de ligging op het westen kun je hier vrijwel de hele dag van de zon genieten.
Perceeloppervlakte 309 m².
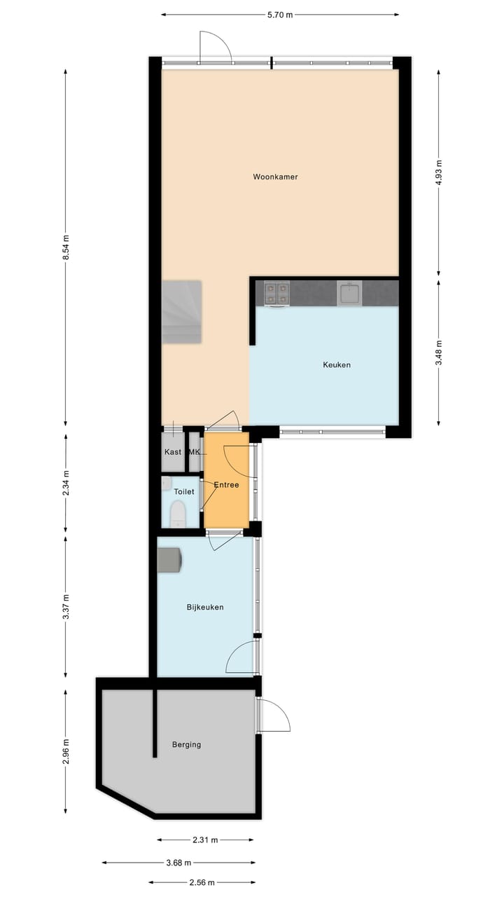
Globale indeling van de woning.
Begane grond:
Entree met garderobe en meterkast; toilet; woonkamer met trapopgang naar de verdieping; half open keuken; bijkeuken. Verder is de aangebouwde berging buitenom bereikbaar.
Eerste verdieping:
Overloop; slaapkamer I; badkamer; slaapkamer II; slaapkamer III; slaapkamer IV.
Tweede verdieping:
Te bereiken door middel van een vaste trap; overloop met technische installatie; slaapkamer V.
Algemeen:
• Bouwjaar woning omstreeks 1977.
• Totale inhoud woning ca. 445 m³; woonoppervlakte ca. 110 m²; overig inpandige ruimte ca. 9 m²; externe bergruimte ca. 15 m².
• Verwarming en warm water door middel van c.v.-gas combiketel.
• Op loopafstand van de benodigde voorzieningen.
• Energielabel C.
‘Kortom, een royale hoekwoning met maar liefst vijf slaapkamers! Bel voor meer informatie of maak een afspraak voor een bezichtiging.’
Aanvaarding in overleg.
Kenmerken
Overdracht
- Aangeboden sinds
- Aanvaarding
- In overleg
- Vraagprijs
- € 325.000 kosten koper
- Vraagprijs per m²
- € 2.955
- Status
- Beschikbaar
Bouw
- Soort woonhuis
- Eengezinswoning, hoekwoning
- Soort bouw
- Bestaande bouw
- Bouwjaar
- 1977
- Soort dak
- Zadeldak bedekt met pannen
Oppervlakten en inhoud
- Gebruiksoppervlakten
- Wonen
- 110 m²
- Overige inpandige ruimte
- 9 m²
- Externe bergruimte
- 15 m²
- Perceel
- 309 m²
- Inhoud
- 445 m³
Indeling
- Aantal kamers
- 6 kamers (5 slaapkamers)
- Aantal badkamers
- 1 badkamer en 1 apart toilet
- Badkamervoorzieningen
- Ligbad, toilet, en wastafel
- Aantal woonlagen
- 3 woonlagen
- Voorzieningen
- Dakraam en natuurlijke ventilatie
Energie
- Energielabel
- C
- Isolatie
- Dakisolatie, dubbel glas, muurisolatie en vloerisolatie
- Verwarming
- Cv-ketel
- Warm water
- Cv-ketel
- Cv-ketel
- Intergas (gas gestookt combiketel uit 2011, eigendom)
Kadastrale gegevens
- MEPPEL H 1430
- Kadastrale kaart
- Oppervlakte
- 163 m²
- Eigendomssituatie
- Volle eigendom
- MEPPEL H 5179
- Kadastrale kaart
- Oppervlakte
- 146 m²
- Eigendomssituatie
- Volle eigendom
Buitenruimte
- Ligging
- Aan rustige weg, beschutte ligging en in woonwijk
- Tuin
- Achtertuin, voortuin en zijtuin
- Zijtuin
- 60 m² (20,00 meter diep en 9,75 meter breed)
- Ligging tuin
- Gelegen op het westen
Bergruimte
- Schuur/berging
- Aangebouwde houten berging
- Voorzieningen
- Elektra
- Isolatie
- Geen isolatie
Parkeergelegenheid
- Soort parkeergelegenheid
- Openbaar parkeren
Foto's 51
Plattegronden 4
© 2001-2025 funda






















































