Dit huis op Funda: https://www.funda.nl/detail/koop/meppel/huis-zeefdruk-27/43937959/

Omschrijving
Instapklare, energiezuinige gezinswoning met luxe afwerking in Nieuwveense Landen!
Ben je op zoek naar een moderne, comfortabele en perfect afgewerkte woning in een kindvriendelijke en jonge wijk? Dan is De Zeefdruk 27 in Meppel precies wat je zoekt!
Deze ruime tussenwoning, gebouwd in 2014, is tot in de puntjes verzorgd en recent op meerdere punten gemoderniseerd. Met vier volwaardige slaapkamers, een luxe keuken met kookeiland, een vergrote zolderverdieping met dakkapel én een hoogwaardige badkamer uit 2023 biedt deze woning alles wat je nodig hebt voor jarenlang
woonplezier.
Deze woning heeft een eigen website met daarop full screen (360) graden foto's, een video, informatie over de buurt en vele extra's. Download de brochure en klik op de link om naar de website te gaan!
Indeling:
Begane grond
Entree met hal, meterkast en modern toilet. De lichte en ruime woonkamer heeft grote raampartijen en een fijne verbinding met de tuin. De open keuken aan de voorzijde is voorzien van een kookeiland, 5-pits inductieplaat, Siemens vaatwasser (2023), combimagnetron, oven, koelkast met vriesvak en volop kastruimte. De gehele verdieping is voorzien van vloerverwarming.
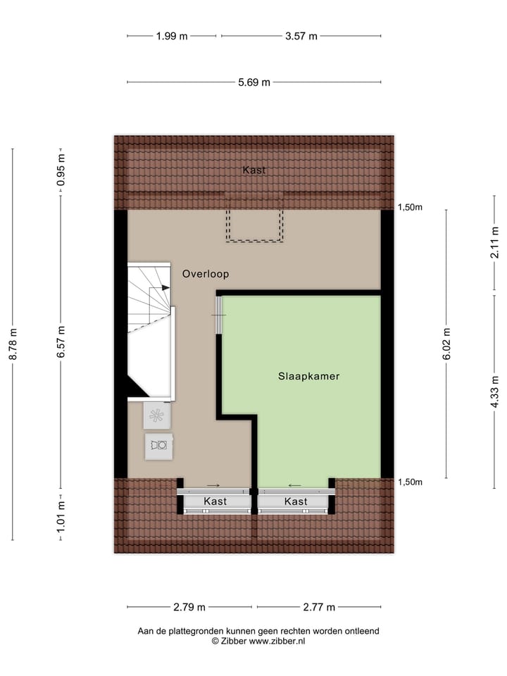
Eerste verdieping
Overloop met toegang tot drie ruime slaapkamers en een luxe badkamer uit 2023, uitgerust met een inloopdouche, ligbad, dubbele wastafel en tweede toilet. Ook deze verdieping is voorzien van comfortabele vloerverwarming.
Tweede verdieping
In 2023 vergroot met een onderhoudsarme kunststof dakkapel waardoor hier een royale en lichte vierde slaapkamer is gerealiseerd. Daarnaast is er een grote voorzolder met aansluitingen voor wasmachine en droger, plus veel bergruimte achter de knieschotten.
Buitenruimte
De fraai aangelegde achtertuin ligt op het zuidoosten, perfect voor zonliefhebbers! De tuin beschikt over een terras, kunstgras, een overkapping met berging en een grijs zonnescherm aan de achterzijde voor extra comfort op warme dagen. Via de achterom is de tuin gemakkelijk bereikbaar.
Samengevat:
Instapklare en moderne tussenwoning
- Vier ruime slaapkamers
- Luxe keuken met kookeiland en hoogwaardige inbouwapparatuur
- Volledige vloerverwarming op de eerste twee verdiepingen
- Badkamer (2023) met ligbad, inloopdouche en tweede toilet
- Dakkapel (2023) en veel bergruimte
- Zonnige tuin met overkapping, berging en zonnescherm
- Duurzaam dankzij 12 zonnepanelen en energielabel A (dit betreft een 'oud label' van voor 2021 en voordat de zonnepanelenzijn geplaatst)
Plan vandaag nog een bezichtiging en ervaar zelf het comfort, de ruimte en luxe van deze prachtige woning!
Kenmerken
Overdracht
- Laatste vraagprijs
- € 435.000 kosten koper
- Vraagprijs per m²
- € 3.175
- Status
- Verkocht
Bouw
- Soort woonhuis
- Eengezinswoning, tussenwoning
- Soort bouw
- Bestaande bouw
- Bouwjaar
- 2014
- Soort dak
- Zadeldak bedekt met pannen
Oppervlakten en inhoud
- Gebruiksoppervlakten
- Wonen
- 137 m²
- Externe bergruimte
- 6 m²
- Perceel
- 150 m²
- Inhoud
- 485 m³
Indeling
- Aantal kamers
- 5 kamers (4 slaapkamers)
- Aantal badkamers
- 1 badkamer en 1 apart toilet
- Badkamervoorzieningen
- Dubbele wastafel, inloopdouche, ligbad, en toilet
- Aantal woonlagen
- 3 woonlagen
- Voorzieningen
- Dakraam, glasvezelkabel, mechanische ventilatie, en TV kabel
Energie
- Energielabel
- A
- Isolatie
- Volledig geïsoleerd
- Verwarming
- Stadsverwarming
- Warm water
- Stadsverwarming
Kadastrale gegevens
- MEPPEL I 805
- Kadastrale kaart
- Oppervlakte
- 150 m²
- Eigendomssituatie
- Volle eigendom
Buitenruimte
- Ligging
- Aan rustige weg, aan water, beschutte ligging, in woonwijk en vrij uitzicht
- Tuin
- Achtertuin, voortuin en zonneterras
- Achtertuin
- 84 m² (14,00 meter diep en 6,00 meter breed)
- Ligging tuin
- Gelegen op het zuidoosten bereikbaar via achterom
Bergruimte
- Schuur/berging
- Vrijstaande houten berging
- Voorzieningen
- Elektra
Parkeergelegenheid
- Soort parkeergelegenheid
- Openbaar parkeren
Foto's 43
© 2001-2025 funda










































