
Statenlaan 84336 CH MiddelburgMagistraatwijk I
€ 255.000 k.k.
Omschrijving
Dit goed verzorgde appartement op de derde verdieping combineert comfort, ruimte en een fijne ligging. Met park Het Meiveld aan de overkant van de straat, prachtige bomen achter het complex en zowel het station als de binnenstad op korte afstand woon je hier centraal, maar toch met een verrassend groene en ontspannen sfeer.
De indeling:
Op de begane grond kom je binnen via de afgesloten entree met het trappenhuis. Hier vind je ook je eigen inpandige berging, ideaal voor je fiets of spullen die je niet elke dag nodig hebt.
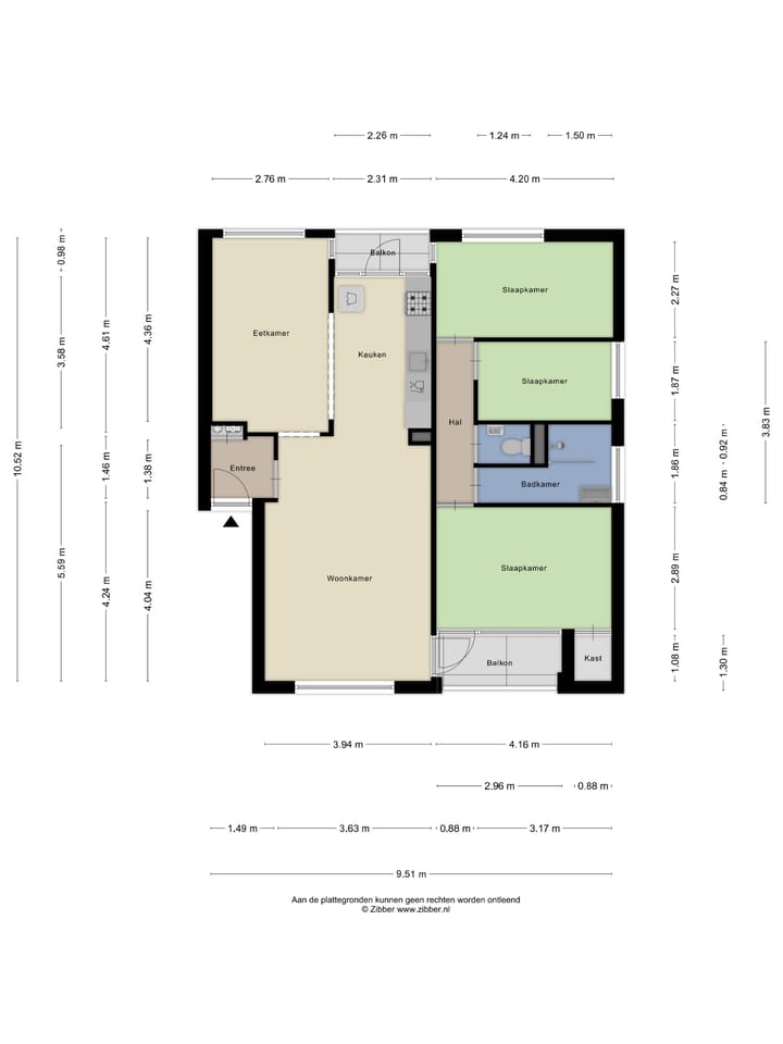
In het appartement word je ontvangen in de hal met meterkast. De woonkamer, verdeeld in een zit- en eetgedeelte, voelt heerlijk licht en ruim aan, en heeft een oppervlakte van maar liefst 35 m2. Vanuit de zitkamer loop je zo het balkon aan de voorzijde op. De open keuken (2020) sluit hier mooi op aan en is uitgerust met een gaskookplaat, afzuigkap, oven, vaatwasser, koelkast en vriezer. Aan de achterzijde vind je het tweede balkon, met een prettig uitzicht richting het achtergelegen grasveld met bomen. Een tussenhal brengt je naar het separate toilet, de nette badkamer (eveneens uit 2020) met douche en wastafel, en de drie prima slaapkamers. Twee daarvan zijn perfect als slaapvertrek en de derde is momenteel in gebruik als inloopkast, maar kun je ook uitstekend gebruiken als werk- of hobbykamer.
Buiten geniet je van twee balkons én veel groen rondom het complex. Het Meiveld ligt aan de overkant: een plek om te wandelen, sporten, spelen of gewoon genieten van het buitenzijn.
Het hele appartement is netjes afgewerkt en goed onderhouden. De maandelijkse bijdrage aan de actieve Vereniging van Eigenaars bedraagt thans € 151,22. Het energielabel is E, maar er is onlangs HR++ glas geplaatst in het gehele appartement dus dit energielabel kan nog worden aangepast.
Zie jij jezelf hier al wonen? Dit mooie en verrassend ruime appartement is klaar voor een nieuwe eigenaar. Maak snel een afspraak met Dingemanse makelaars voor een bezichtiging!
Kenmerken
Overdracht
- Aangeboden sinds
- Aanvaarding
- In overleg
- Vraagprijs
- € 255.000 kosten koper
- Vraagprijs per m²
- € 2.931
- Status
- Beschikbaar
- Bijdrage VvE
- € 151,22 per maand
Bouw
- Soort appartement
- Portiekflat (appartement)
- Soort bouw
- Bestaande bouw
- Bouwjaar
- 1970
- Specifiek
- Gedeeltelijk gestoffeerd
- Soort dak
- Plat dak
Oppervlakten en inhoud
- Gebruiksoppervlakten
- Wonen
- 87 m²
- Gebouwgebonden buitenruimte
- 6 m²
- Externe bergruimte
- 6 m²
- Inhoud
- 287 m³
Indeling
- Aantal kamers
- 4 kamers (3 slaapkamers)
- Aantal badkamers
- 1 badkamer en 1 apart toilet
- Badkamervoorzieningen
- Douche en wastafel
- Aantal woonlagen
- 1 woonlaag
- Voorzieningen
- Natuurlijke ventilatie
Energie
- Energielabel
- E
- Isolatie
- HR-glas
- Verwarming
- Cv-ketel
- Warm water
- Cv-ketel
- Cv-ketel
- Remeha Tzerra (gas gestookt combiketel uit 2015, eigendom)
Kadastrale gegevens
- MIDDELBURG O 3321
- Kadastrale kaart
- Eigendomssituatie
- Volle eigendom
Buitenruimte
- Ligging
- In woonwijk
- Balkon/dakterras
- Balkon aanwezig
Bergruimte
- Schuur/berging
- Inpandig
Parkeergelegenheid
- Soort parkeergelegenheid
- Openbaar parkeren
VvE checklist
- Inschrijving KvK
- Ja
- Jaarlijkse vergadering
- Ja
- Periodieke bijdrage
- Ja (€ 151,22 per maand)
- Reservefonds aanwezig
- Ja
- Onderhoudsplan
- Ja
- Opstalverzekering
- Ja
Foto's 29
Plattegronden 2
© 2001-2025 funda






























