
Omschrijving
Bent u op zoek naar een ruime en betaalbare woning? Dan is deze middenwoning met vier slaapkamers precies wat u zoekt! Gelegen in een gezellige woonwijk, op slechts een steenworp afstand van het centrum, biedt deze woning volop mogelijkheden.
Bij binnenkomst treft u de hal met de meterkast, een toilet en een vaste trap naar de bovenverdieping. De lichte en ruime doorzonwoonkamer staat in open verbinding met de keuken, die toegang biedt tot de praktische bijkeuken en de inpandige berging. Op de eerste verdieping bevinden zich vier slaapkamers, waarvan twee voorzien zijn van handige inbouwkasten. De badkamer is keurig betegeld en beschikt over een douche en een wastafel.
Via een vlizotrap bereikt u de ruime bergzolder, waar de cv-ketel (2018) en een radiator zijn geplaatst. Met de toevoeging van een vaste trap kan hier eenvoudig een vijfde slaapkamer worden gerealiseerd.
De achtertuin is onderhoudsarm aangelegd met bestrating en beplanting en beschikt over een achterom. Achter in de tuin bevindt zich een sfeervolle overkapping, waar u in alle privacy kunt genieten van het buitenleven.
Bent u nieuwsgierig geworden naar deze woning met tal van mogelijkheden? Neem dan contact met ons op voor een bezichtiging!
Indeling:
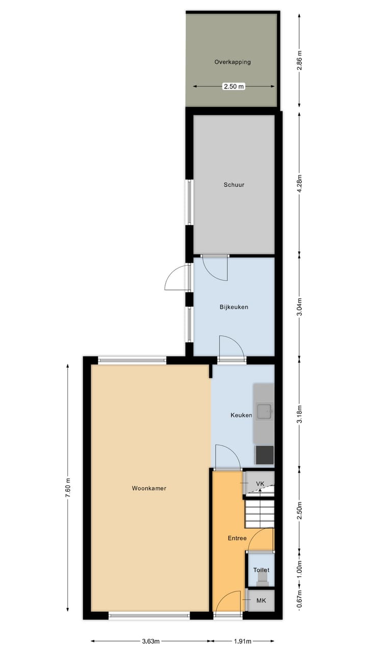
Begane grond
Entree via de hal met meterkast, toilet, trapopgang en kelderkast. De ruime doorzonwoonkamer heeft grote raampartijen en een laminaatvloer. De open keuken is voorzien van een keukenblok en biedt toegang tot de bijkeuken en de inpandige berging.
Eerste verdieping
Overloop met vlizotrap naar de bevloerde bergzolder. Op deze verdieping bevinden zich vier slaapkamers, waarvan twee royale tweepersoonskamers met inbouwkasten. De badkamer is voorzien van betegeling, een douche en een wastafel.
Tuin
De achtertuin is onderhoudsarm en voorzien van bestrating, een combinatie van schutting en beplanting, en een achterom. Achter in de tuin bevindt zich een gezellige overkapping, waar u in alle rust kunt genieten van uw buitenruimte.
PRIJS
Koopprijs vanaf € 259.500,- k.k.
Let op !! De getoonde prijs is een ''bieden vanaf'' prijs. Dat betekent dat u vanaf dit bedrag kunt bieden op de woning. Lagere biedingen worden niet in overweging genomen door de verkoper.
KADASTRALE GEGEVENS
Gemeente : WIERINGERMEER, Sectie en nummer: H 3006 , Groot : 1 are, 40 centi-are.
BESTEMMING
De bestemming van dit object is woonbestemming.
INHOUD
De inhoud van de woning is 379 m³.
1. De gebruiksoppervlakte wonen is 93 m².
2. De overige inpandige ruimtes is 47 m² (zolder en schuur);
3. De gebouw gebonden buitenruimte is 0 m²;
4. De externe bergruimte is 0 m²;
Dus totaal is de gebruiksoppervlakte: 140 m².
JURIDISCH en ERFDIENSTBAARHEDEN
De woning staat op een kavel eigen grond en het betreft een geheel kadastraal perceel.
Er zijn geen bijzondere erfdienstbaarheden bekend.
BOUWJAAR
1958 : Bouwjaar woning.
INSTALLATIES
Gasgestookte C.V.-installatie met radiatoren merk C.V.-combiketel: Intergas HR combi, bouwjaar: 2018. Meterkast: 4x230 voltgroepen en een aardlekschakelaar. De woning is aangesloten op het gemeenteriool.
BOUWAARD en ISOLATIE
Traditioneel gebouwde woning met spouwmuren. Houten begane grond en 2e etage vloeren en betonnen 1e etagevloer. Houten kozijnen met grotendeels dubbel glas. Zadeldak gedekt met dakpannen. Schuur gebouwd met halfsteensmuren en hellend dak gedekt met asbestvrije golfplaten.
ENERGIELABEL
Het energielabel is E.
ONDERHOUD
De woning is prima onderhouden. Schilderwerk deels gedaan in 2024 en door de vorige eigenaar is de gevel gereinigd..
LIGGING
Gelegen in een rustige woonwijk in Middenmeer met het centrum op loopafstand. Middenmeer is een landelijk gelegen dorp met uitstekende voorzieningen, rechtstreeks aan de A7. De randstad is dan ook binnen 45 minuten te bereiken en Hoorn in 15 minuten.
AANVAARDING
In overleg, maar kan spoedig.
Interesse in dit huis? Schakel direct uw eigen NVM-aankoopmakelaar in. Uw NVM-aankoopmakelaar komt op voor úw belang en bespaart u tijd, geld en zorgen. Adressen van lokale en regionale NVM-aankoopmakelaars vindt u ook op Funda.
NVM Zeker weten.
Kenmerken
Overdracht
- Laatste vraagprijs
- € 259.500 kosten koper
- Vraagprijs per m²
- € 2.790
- Status
- Verkocht
Bouw
- Soort woonhuis
- Eengezinswoning, tussenwoning
- Soort bouw
- Bestaande bouw
- Bouwjaar
- 1958
- Specifiek
- Gedeeltelijk gestoffeerd
- Soort dak
- Zadeldak bedekt met pannen
Oppervlakten en inhoud
- Gebruiksoppervlakten
- Wonen
- 93 m²
- Overige inpandige ruimte
- 47 m²
- Perceel
- 141 m²
- Inhoud
- 379 m³
Indeling
- Aantal kamers
- 5 kamers (4 slaapkamers)
- Aantal badkamers
- 1 badkamer en 1 apart toilet
- Badkamervoorzieningen
- Douche en wastafel
- Aantal woonlagen
- 2 woonlagen
Energie
- Energielabel
- E
- Isolatie
- Gedeeltelijk dubbel glas
- Verwarming
- Cv-ketel
- Warm water
- Cv-ketel
- Cv-ketel
- Intergas (gas gestookt combiketel uit 2018, eigendom)
Kadastrale gegevens
- WIERINGERMEER H 3006
- Kadastrale kaart
- Oppervlakte
- 141 m²
- Eigendomssituatie
- Volle eigendom
Buitenruimte
- Ligging
- In woonwijk
- Tuin
- Achtertuin en voortuin
- Achtertuin
- 44 m² (4,00 meter diep en 11,00 meter breed)
- Ligging tuin
- Gelegen op het noordoosten bereikbaar via achterom
Bergruimte
- Schuur/berging
- Aangebouwde stenen berging
Parkeergelegenheid
- Soort parkeergelegenheid
- Openbaar parkeren
Foto's 30
© 2001-2025 funda





























