
Spijkerhofdwarsweg 76566 CB Millingen aan de RijnMillingen aan de Rijn-West
€ 799.000 k.k.
BlikvangerRustig gelegen charmant landhuis op royaal perceel van 1375 m²
Omschrijving
Prachtig landhuis aan de rand van Millingen aan de Rijn
Bent u op zoek naar een rustig gelegen landhuis met een royale tuin? Dan is Spijkerhofdwarsweg 7 in Millingen aan de Rijn uw droomhuis!
Dit charmante landhuis staat op een royaal perceel van 1.375 m². De diepe, groene achtertuin van 40 meter op het noorden biedt altijd wel een plekje in de zon of schaduw. Geniet volop van het buitenleven in deze tuin, die doet denken aan een paleistuin, met een aangebouwde veranda en een sfeervol tuinhuis. Dankzij de houtkachel in de veranda kunt u hier ook in het voor- en najaar heerlijk vertoeven.
Kenmerken:
Bouwjaar: 2001 / Woonoppervlakte: 171 m² / Perceeloppervlakte: 1.375 m²
Indeling:
Begane grond:
Ruime hal met meterkast / toilet met fontein / werkkamer met eigen ingang, ideaal voor een praktijk aan huis / bijkeuken met vaste kasten en opstelling c.v.-ketel / royale living met haardpartij en prachtige erker met tuinzicht / open keuken met kookeiland (vloer loopt door onder het eiland) voorzien van diverse inbouwapparatuur (gaswokbrander, vaatwasser, koelkast, combi-magnetron en afzuigkap) / dubbele deuren naar grote overkapping-veranda
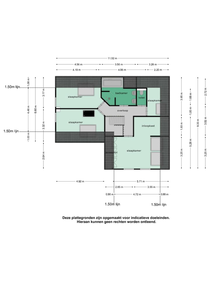
Eerste verdieping:
Overloop / royale masterbedroom met vaste kasten en inloopkast / tweede slaapkamer met dakvenster / separaat toilet / moderne badkamer met dubbele wastafel, inloopdouche, designradiator en ligbad / derde en vierde slaapkamer, beide met dakvenster
Tweede verdieping:
Bergzolder.
Bijzonderheden:
• Flinke achtertuin met een eigen puntstuk voor het beregenen met grondwater en een robotgrasmaaier
• Werkkamer met eigen ingang, perfect voor een praktijk aan huis
• Begane grond voorzien van vloerverwarming
• Goede openbaar vervoerverbinding met Nijmegen, bushalte op korte afstand
• Nijmegen ligt op ca. 20 autominuten, Kleve (Duitsland) op ca. 15 autominuten;
• Nabij natuurgebied "de Gelderse Poort" en de Rijndijk, ideaal voor wandel- en fietsliefhebbers
• Actief verenigingsleven en sportvoorzieningen, inclusief een basisschool
• Uitgebreide winkelvoorzieningen in Millingen aan de Rijn, waaronder Albert Heijn en Aldi
Mis deze unieke kans niet om te wonen in een sfeervol landhuis op een prachtige locatie. Neem vandaag nog contact met ons op voor een bezichtiging!
Kijk voor alle informatie op de eigen site van de woning: spijkerhofdwarsweg7.nl
Kenmerken
Overdracht
- Aangeboden sinds
- Aanvaarding
- In overleg
- Vraagprijs
- € 799.000 kosten koper
- Vraagprijs per m²
- € 4.673
- Status
- Beschikbaar
Bouw
- Soort woonhuis
- Landhuis, vrijstaande woning
- Soort bouw
- Bestaande bouw
- Bouwjaar
- 2001
- Soort dak
- Zadeldak bedekt met pannen
Oppervlakten en inhoud
- Gebruiksoppervlakten
- Wonen
- 171 m²
- Overige inpandige ruimte
- 4 m²
- Gebouwgebonden buitenruimte
- 36 m²
- Externe bergruimte
- 22 m²
- Perceel
- 1.375 m²
- Inhoud
- 652 m³
Indeling
- Aantal kamers
- 7 kamers (5 slaapkamers)
- Aantal badkamers
- 1 badkamer en 2 aparte toiletten
- Badkamervoorzieningen
- Douche, dubbele wastafel, en ligbad
- Aantal woonlagen
- 2 woonlagen en een zolder
- Voorzieningen
- Dakraam
Energie
- Energielabel
- B
- Verwarming
- Cv-ketel
- Warm water
- Cv-ketel
- Cv-ketel
- Nefit (2019, eigendom)
Kadastrale gegevens
- MILLINGEN C 1470
- Kadastrale kaart
- Oppervlakte
- 1.375 m²
- Eigendomssituatie
- Volle eigendom
Buitenruimte
- Tuin
- Achtertuin en voortuin
- Achtertuin
- 900 m² (40,00 meter diep en 22,50 meter breed)
- Ligging tuin
- Gelegen op het noorden bereikbaar via achterom
Garage
- Soort garage
- Vrijstaande stenen garage
- Capaciteit
- 1 auto
- Voorzieningen
- Elektra
Parkeergelegenheid
- Soort parkeergelegenheid
- Op eigen terrein
Foto's 46
Plattegronden 4
© 2001-2025 funda

















































