Dit huis op Funda: https://www.funda.nl/detail/koop/moergestel/huis-ruymheuvel-14/43943949/

Omschrijving
Laat je verrassen door deze ruime, uitgebouwde en recent gerenoveerde tussenwoning met berging én overkapping!
Deze woning beschikt over een uitgebouwde woonkamer, 3 slaapkamers, een zolderkamer, stenen berging en onderhoudsvrije achtertuin.
Indeling
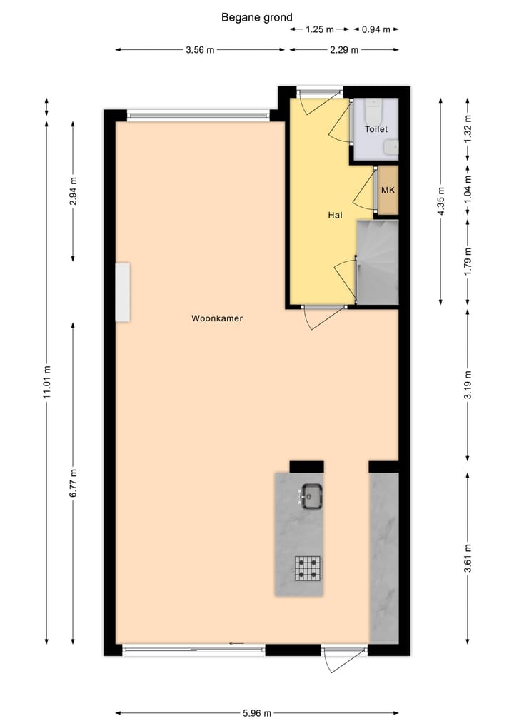
Ontvangsthal met garderobe, trapopgang naar 1ste verdieping, meterkast, opbergkast, moderne toiletruimte met hangend closet en fonteintje (2023) en toegang naar de woonkamer.
De royale, uitgebouwde woonkamer heeft aan de voorzijde en achterzijde grote raampartijen met veel natuurlijk lichtinval. Verder is de woonkamer recent gestuct en voorzien van nieuwe plinten. Daarnaast beschikt deze over een tegelvloer met vloerverwarming en een sfeervolle haard. Aansluitend aan de woonkamer bevindt zich de zeer moderne keuken (mei 2014).
De keuken in rechte opstelling bezit bijzonder veel kastruimte en is voorzien van diverse inbouwapparatuur zoals: vaatwasser, koelkast, vriezer, magnetron, koffieapparaat, wijnklimaatkast en een vrijstaand gascomfort. Middels een loopdeur en schuifpui bereikt men de achtertuin.
Eerste verdieping
Via de overloop kom je in een van de drie slaapkamers, badkamer en de vaste trap naar de tweede verdieping. De hoofdslaapkamer is gelegen aan de achterzijde. De naast gelegen kamer biedt middels een deur toegang tot het platdak welke in 2014 vernieuwd is en recent de randen en afvoeren. De moderne en complete badkamer (2023) is voorzien van een ligbad, separate inloopdouche, hangend closet en een badkamermeubel met wastafel. Tevens beschikt deze over vloerverwarming. De slaapkamer aan de voorzijde biedt toegang tot de loggia. De gehele verdieping is recent gestuct en modern en strak afgewerkt d.m.v. o.a. een pvc-vloeren, nieuwe deuren en radiator ombouwen. In 2014 eveneens v.v. HR ++ glas.
Tweede verdieping
De ruime 2e verdieping is bereikbaar via een vaste trap en heeft aan de achterzijde een dakkapel.
Hier bevindt zich de wasmachineopstelling, de CV-.ketel (2020) en voldoende bergruimte. Deze verdieping is compleet gerenoveerd én geïsoleerd. Met stucwerk plafond en een nieuw tapijt is ook deze verdieping instapklaar te noemen.
Tuinen
Zowel de voor,- als achtertuin zijn fraai aangelegd. De achtertuin, met achterom, is gelegen op het oosten, geheel omheind en bestraat. Achterin de tuin bevindt zich de gerenoveerde houten berging met elektra en een nieuwe overkapping.
Algemeen:
• Bouwjaar: ca. 1973
• Vloeroppervlakte wonen: 129 m²
• Inhoud woning: ca. 434 m³
• Perceeloppervlakte: 168 m²
• Energielabel C
• Ruime uitgebouwde woonkamer met moderne keuken
• Moderne badkamer en toilet
• Kozijnen voorzijde recent vernieuwd
• CV-ketel ca. 2020
• Buitenzijde recent geschilderd
• 3 slaapkamers
• Ruime tweede verdieping met dakkapel
• Ruime berging met overkapping
• Achtertuin gelegen op het oosten
Kenmerken
Overdracht
- Laatste vraagprijs
- € 450.000 kosten koper
- Vraagprijs per m²
- € 3.488
- Status
- Verkocht
Bouw
- Soort woonhuis
- Eengezinswoning, tussenwoning
- Soort bouw
- Bestaande bouw
- Bouwjaar
- 1973
- Soort dak
- Zadeldak bedekt met pannen
Oppervlakten en inhoud
- Gebruiksoppervlakten
- Wonen
- 129 m²
- Gebouwgebonden buitenruimte
- 3 m²
- Externe bergruimte
- 10 m²
- Perceel
- 168 m²
- Inhoud
- 434 m³
Indeling
- Aantal kamers
- 5 kamers (4 slaapkamers)
- Aantal woonlagen
- 3 woonlagen
Energie
- Energielabel
- Isolatie
- Dakisolatie, dubbel glas, HR-glas, muurisolatie en vloerisolatie
- Verwarming
- Cv-ketel
- Warm water
- Cv-ketel
- Cv-ketel
- Gas gestookt combiketel uit 2020, eigendom
Kadastrale gegevens
- MOERGESTEL B 2394
- Kadastrale kaart
- Oppervlakte
- 168 m²
- Eigendomssituatie
- Volle eigendom
Buitenruimte
- Tuin
- Achtertuin en voortuin
Bergruimte
- Schuur/berging
- Vrijstaande houten berging
- Voorzieningen
- Elektra
Parkeergelegenheid
- Soort parkeergelegenheid
- Openbaar parkeren
Foto's 50
© 2001-2026 funda

















































