Dit huis op Funda: https://www.funda.nl/detail/koop/molenhoek/huis-gravenstraat-16/43895272/

Omschrijving
Halfvrijstaande woning met 4 slaapkamers, diepe achtertuin en totaal 33 m2 aan garage/berging/kantoor. Gunstig gelegen nabij bossen en op 10 autominuten van Nijmegen.
Tip: Bekijk deze mooie woning tevens op de unieke eigen website: gravenstraat16.nl
LIGGING
Molenhoek is een klein dorpje onder de rook van Nijmegen. Er is een gezellig centrum met winkels en horeca, maar ook een basisschool en een middelbare school. Daarnaast zijn er diverse natuurgebieden op loopafstand te bereiken. Hier kun je heerlijk wandelen en genieten van de rust. Nijmegen is met de trein zeer eenvoudig te bereiken en met de auto ben je er in ca. 10 minuten. Middels de fietsbrug over de Maas ben je zo in Brabant/Cuijk. Kortom: een heerlijke combinatie van rust dichtbij de stad.
INDELING
Begane grond:
Entree/hal met bergkast, toilet met fontein, meterkast en toegang tot de woonkamer. L-vormige woonkamer met fraai afgewerkte houten vloer. Open keuken met diverse inbouwapparatuur, zoals koelkast, 4-pits gaskookstel, oven en vaatwasser. De keuken heeft een tegelvloer met vloerverwarming. Via een loopdeur, alsmede openslaande deuren toegang tot de zonnige, maar liefst 20 meter diepe achtertuin.
Eerste verdieping:
Overloop met toegang tot drie slaapkamer en badkamer. Slaapkamers zijn voorzien van houten vloerafwerking. Aan de voorzijde van de woning vindt u de master bedroom met een vaste kastopstelling. De badkamer heeft een ligbad, douche, toilet, wastafel en mechanische ventilatie.
Derde verdieping:
Grote slaapkamer met veel lichtinval door de brede dakkapel. De ramen zijn voorzien van screens. In een aparte ruimte bevindt zich hier de wasruimte.
Tuin:
Voortuin en brede oprit naast de woning.
Ca. 20 meter diepe achtertuin met terras en gazon.
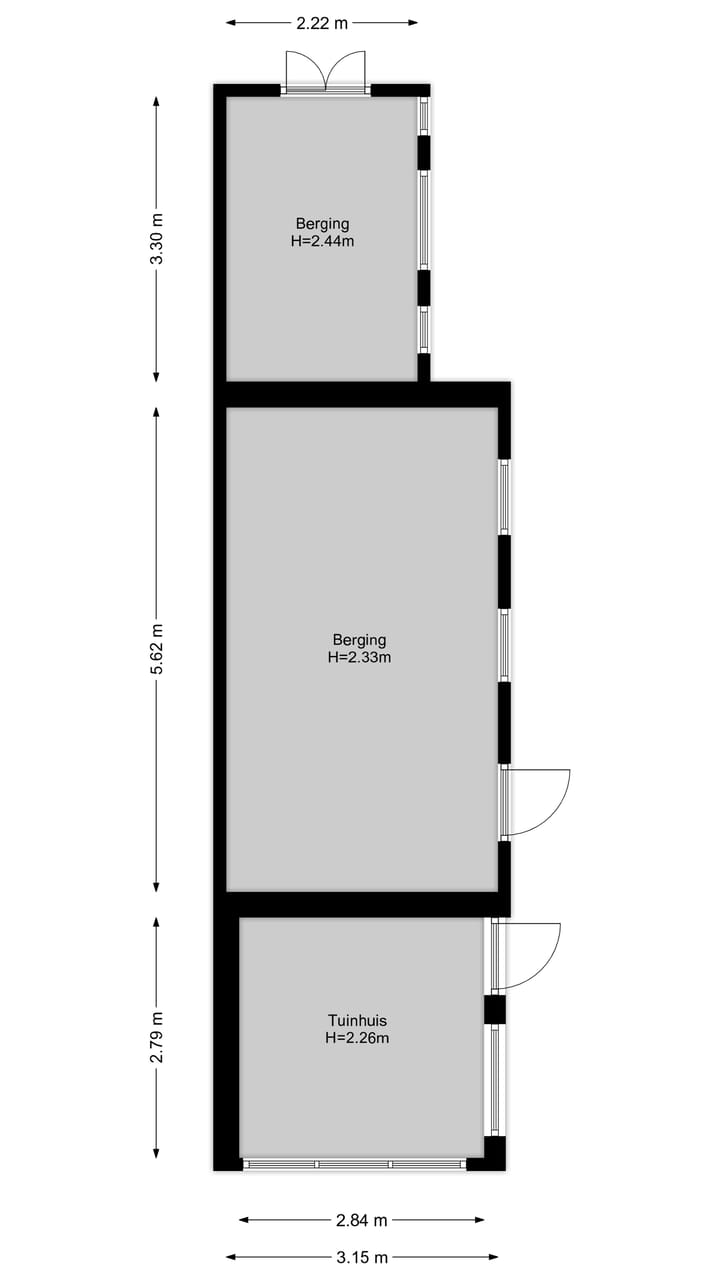
In totaal 33 m2 (!) aan garage/berging/kantoor
Over een woning als deze moet je eigenlijk niet lezen, dat moet je ervaren. Serieuze gegadigden nodigen wij dan ook van harte uit voor een vrijblijvende bezichtiging van dit unieke object. Onze specialist voor deze woning is Kees Witlox. Hij maakt graag tijd vrij voor een uitgebreide rondleiding.
BIJZONDERHEDEN:
- Woonoppervlak 125 m2 (NEN 2580 meetrapport aanwezig
- Perceel 285 m2
- 4 slaapkamers
- Ruime oprit
- Muur-, dak-, vloer-, en glasisolatie
- Energielabel C
- CV-ketel 2024
- Buitenschilderwerk 2024
- Goten zijn in nov. 2022 geheel vernieuwd
- Beleef de sfeer en bekijk de video en 360 graden foto's
- Aanvaarding in overleg
Voor nadere toelichting en of afspraak voor een vrijblijvende bezichtiging kunt u ons bellen 085-2220901 of e-mailen
Kenmerken
Overdracht
- Laatste vraagprijs
- € 435.000 kosten koper
- Vraagprijs per m²
- € 3.480
- Status
- Verkocht
Bouw
- Soort woonhuis
- Eengezinswoning, 2-onder-1-kapwoning
- Soort bouw
- Bestaande bouw
- Bouwjaar
- 1963
- Soort dak
- Zadeldak bedekt met pannen
Oppervlakten en inhoud
- Gebruiksoppervlakten
- Wonen
- 125 m²
- Externe bergruimte
- 33 m²
- Perceel
- 285 m²
- Inhoud
- 459 m³
Indeling
- Aantal kamers
- 5 kamers (4 slaapkamers)
- Aantal badkamers
- 1 badkamer en 1 apart toilet
- Badkamervoorzieningen
- Douche, ligbad, toilet, en wastafel
- Aantal woonlagen
- 3 woonlagen
- Voorzieningen
- Mechanische ventilatie en TV kabel
Energie
- Energielabel
- C
- Isolatie
- Dakisolatie, dubbel glas, muurisolatie en vloerisolatie
- Verwarming
- Cv-ketel
- Warm water
- Cv-ketel
- Cv-ketel
- Intergas HRE 36/30A CW5 (gas gestookt combiketel uit 2024, eigendom)
Kadastrale gegevens
- MOOK EN MIDDELAAR A 4004
- Kadastrale kaart
- Oppervlakte
- 285 m²
- Eigendomssituatie
- Volle eigendom
Buitenruimte
- Ligging
- Aan rustige weg en in woonwijk
- Tuin
- Achtertuin en voortuin
- Achtertuin
- 160 m² (20,00 meter diep en 8,00 meter breed)
- Ligging tuin
- Gelegen op het zuidoosten bereikbaar via achterom
Bergruimte
- Schuur/berging
- Vrijstaande stenen berging
- Voorzieningen
- Elektra
Garage
- Soort garage
- Vrijstaande stenen garage
- Capaciteit
- 1 auto
- Voorzieningen
- Elektra
Parkeergelegenheid
- Soort parkeergelegenheid
- Op eigen terrein en openbaar parkeren
Foto's 41
© 2001-2025 funda








































