Dit huis op Funda: https://www.funda.nl/detail/koop/montfoort/huis-heeswijk-91/43859408/

Omschrijving
Adres: Heeswijk 91
Plaats: Montfoort
Vraagprijs: € 525.000,-- k.k.
Wonen aan het water, de Hollandse IJssel direct grenzend aan uw achtertuin….. Voor wie dit graag wil, kom dan eens deze TWEE-ONDER-ÉÉN-KAPWONING bekijken.
Een woonhuis waar je prima direct in wonen kunt, maar zeker ook goede mogelijkheden voor aanpassingen cq. uitbreidingen.
Aan de voorzijde, alsmede naast de woning is er voldoende ruimte voor het parkeren van meerdere auto’s op eigen terrein.
Aan de achterzijde een royale tuin met een lengte van bijna 20m. Direct grenzend aan de Hollandse IJssel zodat u met uw sloep of boot direct er lekker op uit kunt gaan.
De voorzieningen van winkels, basisscholen, sportgelegen-heden zijn op kleine fietsafstand aanwezig.
Kenmerken
Bouwjaar : 1949/1950
Inhoud woning : 365 m³
Woonoppervlakte : 74 m² (begane grond en 1e verdieping)
Overige ruimte : 20 m² (2e verdieping)
Perceel : 306 m²
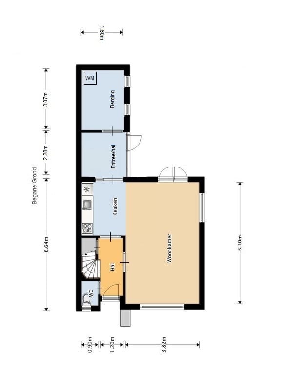
Indeling begane grond
Entree/hal, meterkast, trapopgang, kelder op stahoogte, toiletruimte en toegang naar de keuken en woonkamer.
De lichte en keurig afgewerkte doorzon woonkamer is voorzien van een dubbele deur aan de tuinzijde en een extra zijraam. Zowel aan de voor- als achterzijde is er vrij uitzicht en biedt het ieder deel van het jaar weer andere vergezichten.
De open keuken heeft een nette, moderne en complete inbouwkeuken met inbouwapparatuur, o.a.: koelkast,
afzuigkap, elektrische kookplaat, afwasmachine en combi-magnetron/oven. Een deur naar de achterentree met toegang naar de fietsenberging. Hier bevindt zich de aansluiting voor de wasmachine. Deze ruimte is overigens verwarmd.
De achtertuin is ruim, heeft diverse terrassen, groenborders, gazon, plantenkas, volop privacy en zonnige plekken om heerlijk te kunnen genieten.
1e Verdieping
Overloop, vaste kastruimte en toegang naar alle slaapkamers en vaste trap naar de 2e verdieping.
Slaapkamer 1 bevindt zich aan de voorzijde, heeft een oppervlakte van 10 m2 (3.80m x 2.50m) en mooi uitzicht over de weilanden.
Slaapkamer 2 en 3 bevinden zich aan de achterzijde, hebben een oppervlakte van 13 (3.80m x 3.45m) en 4 m2 (1.80m x 2.16m). De grote slaapkamer heeft een zijraam alsmede een dubbele deur naar het balkon. Beide kamers hebben een fraai uitzicht over de achtertuin & de Hollandse IJssel.
De nette, doch eenvoudige badkamer heeft een wastafel en ligbad/douchecombinatie.
Een vaste trap naar…..
2e Verdieping
Een ruime voorzolder met opstelplaats voor de cv-combiketel (vernieuwd in 2022).
Een ruime 4e slaapkamer met dakraam aan de achterzijde en een grote berging/opslagruimte. Een dakkapel plaatsen behoort tot de mogelijkheden.
Oplevering: in overleg.
Kenmerken
Overdracht
- Laatste vraagprijs
- € 525.000 kosten koper
- Vraagprijs per m²
- € 7.095
- Status
- Verkocht
Bouw
- Soort woonhuis
- Eengezinswoning, 2-onder-1-kapwoning
- Soort bouw
- Bestaande bouw
- Bouwjaar
- 1949
- Specifiek
- Gestoffeerd
- Soort dak
- Zadeldak bedekt met pannen
Oppervlakten en inhoud
- Gebruiksoppervlakten
- Wonen
- 74 m²
- Overige inpandige ruimte
- 20 m²
- Gebouwgebonden buitenruimte
- 2 m²
- Externe bergruimte
- 6 m²
- Perceel
- 306 m²
- Inhoud
- 365 m³
Indeling
- Aantal kamers
- 5 kamers (4 slaapkamers)
- Aantal badkamers
- 1 badkamer en 1 apart toilet
- Badkamervoorzieningen
- Ligbad en wastafel
- Aantal woonlagen
- 3 woonlagen
- Voorzieningen
- Buitenzonwering, dakraam, en natuurlijke ventilatie
Energie
- Energielabel
- F
- Isolatie
- Dubbel glas
- Verwarming
- Cv-ketel
- Warm water
- Cv-ketel
- Cv-ketel
- HR (gas gestookt combiketel uit 2022, eigendom)
Kadastrale gegevens
- LINSCHOTEN G 1154
- Kadastrale kaart
- Oppervlakte
- 290 m²
- Eigendomssituatie
- Volle eigendom
- LINSCHOTEN G 1706
- Kadastrale kaart
- Oppervlakte
- 16 m²
- Eigendomssituatie
- Volle eigendom
Buitenruimte
- Ligging
- Aan drukke weg, aan vaarwater, aan water, buiten bebouwde kom, open ligging en vrij uitzicht
- Tuin
- Achtertuin, voortuin en zijtuin
- Achtertuin
- 153 m² (18,00 meter diep en 8,50 meter breed)
- Ligging tuin
- Gelegen op het noorden bereikbaar via achterom
- Balkon/dakterras
- Balkon aanwezig
Bergruimte
- Schuur/berging
- Aangebouwde stenen berging
- Voorzieningen
- Elektra en verwarming
Garage
- Soort garage
- Parkeerplaats
Parkeergelegenheid
- Soort parkeergelegenheid
- Op eigen terrein
Foto's 35
© 2001-2025 funda


































