Dit huis op Funda: https://www.funda.nl/detail/koop/muiden/huis-kruitmolen-29/43277404/

Omschrijving
Een comfortabele en stijlvolle tussenwoning in het geliefde De Krijgsman Muiden, waar modern wooncomfort en een groene, waterrijke omgeving samenkomen. Deze woning uit 2022 is duurzaam gebouwd en voorzien van een warmtepomp en vloerverwarming, waardoor je het hele jaar door geniet van een ideaal binnenklimaat.
De woning is gelegen op loopafstand van de basisschool, diverse winkels en een gezellige horeca locatie aan een haventje waar je een sloepje kunt huren.
Met 6 slaapkamers, een ruime lichte woonkamer, luxe keuken, 1 moderne badkamer en een breed balkon heeft deze woning alles in huis voor wie zoekt naar ruimte en rust. De achtertuin, de berging en de eigen parkeerplaatsen maken het compleet. Dat alles op een paar minuten van Amsterdam – hier woon je ontspannen én centraal.
Je komt binnen via de brede hal met modern toilet. Vanuit hier stap je de tuingerichte woonkamer in, waar grote raampartijen en openslaande deuren zorgen voor een prachtige lichtinval. De fraaie lichte gietvloer met vloerverwarming geeft warmte en sfeer, terwijl de individuele thermostaten in elke ruimte zorgen voor perfect comfort op maat.
Aan de voorzijde ligt de moderne open keuken, voorzien van luxe inbouwapparatuur en veel werk- en opbergruimte. Dankzij de openslaande deuren naar de zonnige voortuin geniet je hier ’s ochtends van de eerste zonnestralen en het vrije zicht.
Op de eerste verdieping vind je drie ruime slaapkamers met een lichte gietvloer en vloerverwarming. De luxe badkamer is compleet uitgerust met een inloopdouche, dubbel wastafelmeubel en toilet. Ook hier stel je in elke kamer eenvoudig de gewenste temperatuur in.
De tweede verdieping verrast met nog drie volwaardige slaapkamers, perfect als kinder-, werk- of logeerkamer. In de separate berging bevinden zich de warmtepomp, WTW-installatie en aansluitingen voor wassen en drogen.
De voor- en achtertuin versterken het fijne woongevoel. De zonnige achtertuin op het zuiden is sfeervol ingericht met een terras en achterom, waar je geniet van rust en privacy. De berging met elektra is ideaal voor fietsen en tuinspullen.
Let op! De foto's die zijn gebruikt kunnen betrekking hebben op een andere woning in de straat met gelijkwaardige plattegrond en afwerkingsniveau. De makelaar zal u hierover voorlichten.
Bijzonderheden:
- Bouwjaar 2022
- Energiezuinig: warmtepomp, WTW en vloerverwarming
- 6 ruime slaapkamers
- Huis volledig voorzien van gietvloeren
- Vloerverwarming in alle ruimtes, per kamer regelbaar
- Luxe keuken met openslaande deuren naar voortuin
- Moderne badkamer met inloopdouche, dubbel wastafelmeubel en toilet
- Balkon over volledige breedte van de woning
- Berging met elektra
- 2 eigen parkeerplaatsen dichtbij de woning
- Kindvriendelijke wijk met voorzieningen om de hoek
- Mogelijkheid tot aankoop ligplaats in de omgeving
- Projectnotaris: CMS notarissen
- Deelauto’s (VLOTO) beschikbaar binnen De Krijgsman
Wijk info
Op loopafstand van de historische stadskern van Muiden is een nieuw stuk van de Productielijn ontstaan. Dit stukje Krijgsman omvat strak geschakelde villa-gebouwen met veel leefruimte, en zonnige tuinen. Abbink X Co en Faro Architecten hebben met deze villa-gebouwen mooi de industriële architectuur gevolgd van het eerdere deel van de Productielijn. Elk op hun eigen manier geven ze net weer een nieuwe ‘twist’ aan het ontwerp waardoor ook dit deel van De Krijgsman een eigen ‘look and feel’ krijgt.
De Krijgsman Muiden
Aan de rand van de oude vesting van Muiden is een nieuw woongebied gerealiseerd: De Krijgsman Muiden. Gelegen op loopafstand van diverse winkelvoorzieningen, cafés, restaurants, de jachthavens en de sluis in de oude charmante kern van Muiden. Ook binnen De Krijgsman zijn inmiddels volop voorzieningen zoals een Albert Heijn, een basisschool, diverse winkeltjes en een restaurant en vele speelvoorzieningen en wandelroutes. Ook aan openbaar vervoer geen tekort; er rijden af en aan diverse bussen op verschillende routes en naar het dichtstbijzijnde treinstation is het 10 minuten fietsen. Kortom, een uitstekend gelegen woonwijk in de natuur, tussen het IJmeer en de Vecht, en historische gebouwen van de Stelling van Amsterdam en de kruitfabriek. Op een steenworp afstand van Amsterdam.
‘’Deze informatie is door ons met de nodige zorgvuldigheid samengesteld. Onzerzijds wordt echter geen enkele aansprakelijkheid aanvaard voor enige onvolledigheid, onjuistheid of anderszins, dan wel de gevolgen daarvan. Alle opgegeven maten en oppervlakten zijn.
Kenmerken
Overdracht
- Aangeboden sinds
- Aanvaarding
- Per direct beschikbaar
- Vraagprijs
- € 875.000 kosten koper
- Vraagprijs per m²
- € 6.250
- Status
- Verkocht onder voorbehoud
Bouw
- Soort woonhuis
- Eengezinswoning, tussenwoning
- Soort bouw
- Nieuwbouw
- Bouwjaar
- 2022
Oppervlakten en inhoud
- Gebruiksoppervlakten
- Wonen
- 140 m²
- Gebouwgebonden buitenruimte
- 17 m²
- Externe bergruimte
- 6 m²
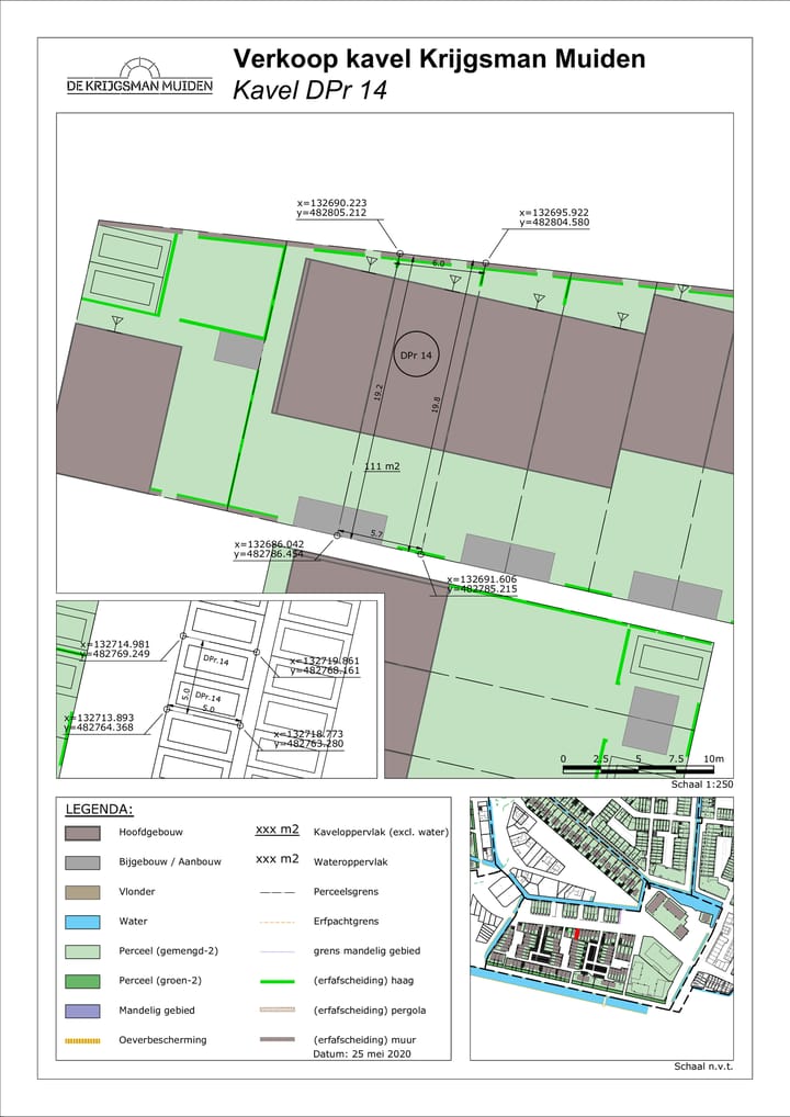
- Perceel
- 111 m²
- Inhoud
- 495 m³
Indeling
- Aantal kamers
- 8 kamers (5 slaapkamers)
- Aantal badkamers
- 1 badkamer en 1 apart toilet
- Badkamervoorzieningen
- Inloopdouche, toilet, wastafel, en wastafelmeubel
- Aantal woonlagen
- 3 woonlagen
- Voorzieningen
- Glasvezelkabel, mechanische ventilatie, schuifpui, en TV kabel
Energie
- Energielabel
- Isolatie
- Driedubbel glas, HR-glas en volledig geïsoleerd
- Verwarming
- Warmtepomp
- Warm water
- Elektrische boiler
Kadastrale gegevens
- MUIDEN A 2522
- Kadastrale kaart
- Oppervlakte
- 111 m²
- Eigendomssituatie
- Volle eigendom
Buitenruimte
- Ligging
- In woonwijk
- Tuin
- Achtertuin
- Achtertuin
- 38 m² (6,60 meter diep en 5,70 meter breed)
- Ligging tuin
- Gelegen op het zuiden bereikbaar via achterom
- Balkon/dakterras
- Balkon aanwezig
Bergruimte
- Schuur/berging
- Vrijstaande houten berging
- Voorzieningen
- Elektra
Parkeergelegenheid
- Soort parkeergelegenheid
- Op eigen terrein en openbaar parkeren
Foto's 43
Plattegronden 4
© 2001-2026 funda














































