
Omschrijving
UITSTEKEND ONDERHOUDEN - ENERGIELABEL A - FRAAIE LOCATIE NABIJ DE NAARDER ENG EN HET OUDE DORP VAN HUIZEN
Zeer smaakvol gemoderniseerde 2-onder-1 kapvilla met carport, berging, tuin en houten buitenveranda in mooie woonomgeving! Gelegen op de grens met Huizen in kindvriendelijke doodlopende straat en met eigen oprit voor meerdere auto’s. Voortuin en achtertuin met veel privacy, zon en vrij uitzicht! De woning is in 2017 hoogwaardig verbouwd.
Het huis is centraal gelegen nabij de hockeyvelden van de Huizer Hockey Club, de voetbalvelden, skibaan de Wolfskamer, basis en middelbare scholen en op loopafstand van het gezellige oude dorp van Huizen met een groot aanbod van winkels en restaurants. Kinderen kunnen hier veilig op straat spelen! Verder heeft de gemeente Huizen alle faciliteiten zoals openlucht en overdekt zwembad, bioscoop, water (Gooimeer en haven) en bossen (Goois natuurreservaat) op korte loop-/fietsafstand. Openbaar vervoer op loopafstand waardoor steden als Amsterdam en Hilversum binnen een half uur te bereiken zijn. Snelwegen A1 en A27 op slechts enkele autominuten afstand. De ring van Amsterdam is binnen 20 minuten te bereiken.
Indeling:
Begane grond:
• Entree, hal, garderobe
• Modern toilet
• Gezellige woonkamer met massief eiken vloer, moderne gashaard en openslaande deuren naar het terras, zijkamer te gebruiken als werk-/eet- of televisiekamer
• Ruime moderne woonkeuken voorzien van hoogwaardige inbouwapparatuur en openslaande deuren naar voortuin
• Deur naar inpandige berging/bijkeuken
• Carport
1e Verdieping:
• Via de trap in de hal naar overloop
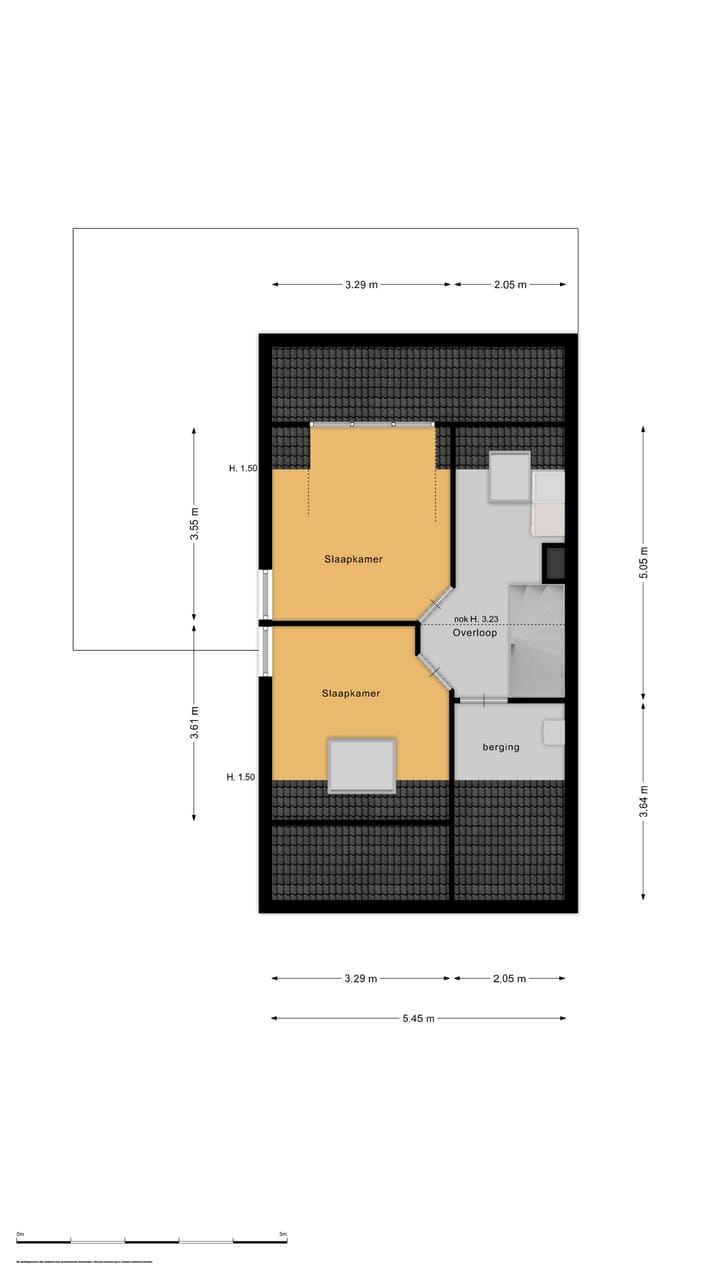
• 3 Ruime slaapkamers
• Moderne badkamer met inloopdouche, toilet en wastafelmeubel met dubbele wastafel
2e Verdieping:
• 2 Ruime slaapkamers waarvan 1 met dakkapel en 1 met velux dakraam
• Wasruimte, grote berging met opstelling cv ketel
• Extra bergruimte achter diverse schotten
• Mogelijkheid voor 2e badkamer
Bijzonderheden:
• De woning is uitstekend onderhouden en volledig geïsoleerd. ENERGIELABEL A
• Massief eiken vloer door nagenoeg de gehele woning. In 2017 geschuurd en in de olie gezet
• Gezellige voortuin met terras en oprit voor meerdere auto's
• Fraai aangelegde achtertuin met buitenveranda, berging en diverse terrassen
• Gehele buitenschilderwerk in 2024 gedaan
• Alarminstallatie
• Zeer recent zijn er 13 zonnepanelen geplaatst
• Ideaal gezinshuis met 5 slaapkamers
• Openbaar vervoer op loopafstand
Gebruiksoppervlakte woonruimte: 179 m²
Gebouw gebonden buitenruimte: 16 m²
Externe bergruimte: 4 m²
Inhoud: 620 m³
Kadastrale oppervlakte: 356 m²
Kortom een fantastisch familiehuis in een prachtige omgeving met alle faciliteiten binnen handbereik.
Kenmerken
Overdracht
- Laatste vraagprijs
- € 995.000 kosten koper
- Vraagprijs per m²
- € 5.559
- Status
- Verkocht
Bouw
- Soort woonhuis
- Eengezinswoning, 2-onder-1-kapwoning
- Soort bouw
- Bestaande bouw
- Bouwjaar
- 1999
- Soort dak
- Zadeldak bedekt met pannen
Oppervlakten en inhoud
- Gebruiksoppervlakten
- Wonen
- 179 m²
- Gebouwgebonden buitenruimte
- 16 m²
- Externe bergruimte
- 4 m²
- Perceel
- 356 m²
- Inhoud
- 611 m³
Indeling
- Aantal kamers
- 7 kamers (5 slaapkamers)
- Aantal badkamers
- 1 badkamer en 1 apart toilet
- Badkamervoorzieningen
- Dubbele wastafel, inloopdouche, toilet, en wastafelmeubel
- Aantal woonlagen
- 3 woonlagen
- Voorzieningen
- Dakraam, mechanische ventilatie, natuurlijke ventilatie, TV kabel, en zonnepanelen
Energie
- Energielabel
- A
- Isolatie
- Volledig geïsoleerd
- Verwarming
- Cv-ketel
- Warm water
- Cv-ketel
- Cv-ketel
- ATAG (gas gestookt combiketel uit 2007, eigendom)
Kadastrale gegevens
- NAARDEN B 1574
- Kadastrale kaart
- Oppervlakte
- 356 m²
- Eigendomssituatie
- Volle eigendom
Buitenruimte
- Ligging
- Aan rustige weg en in woonwijk
- Tuin
- Achtertuin, voortuin en zijtuin
- Achtertuin
- 145 m² (14,50 meter diep en 10,00 meter breed)
- Ligging tuin
- Gelegen op het oosten bereikbaar via achterom
Bergruimte
- Schuur/berging
- Vrijstaande houten berging
- Voorzieningen
- Elektra
Garage
- Soort garage
- Carport
Parkeergelegenheid
- Soort parkeergelegenheid
- Op eigen terrein
Foto's 32
© 2001-2025 funda































