
Omschrijving
Leuke 2/1-kapwoning met aangebouwde garage, aangebouwde overkapping en vrijstaande houten schuur/praktijkruimte, gelegen op fraaie locatie.
Indeling begane grond:
- hal/entree met toilet, meterkast en trapopgang;
- L-woonkamer;
- werk-/slaapkamer;
- open keuken met keurige keukenopstelling voorzien van enige inbouwapparatuur;
- bijkeuken;
- garage/berging;
- veranda.
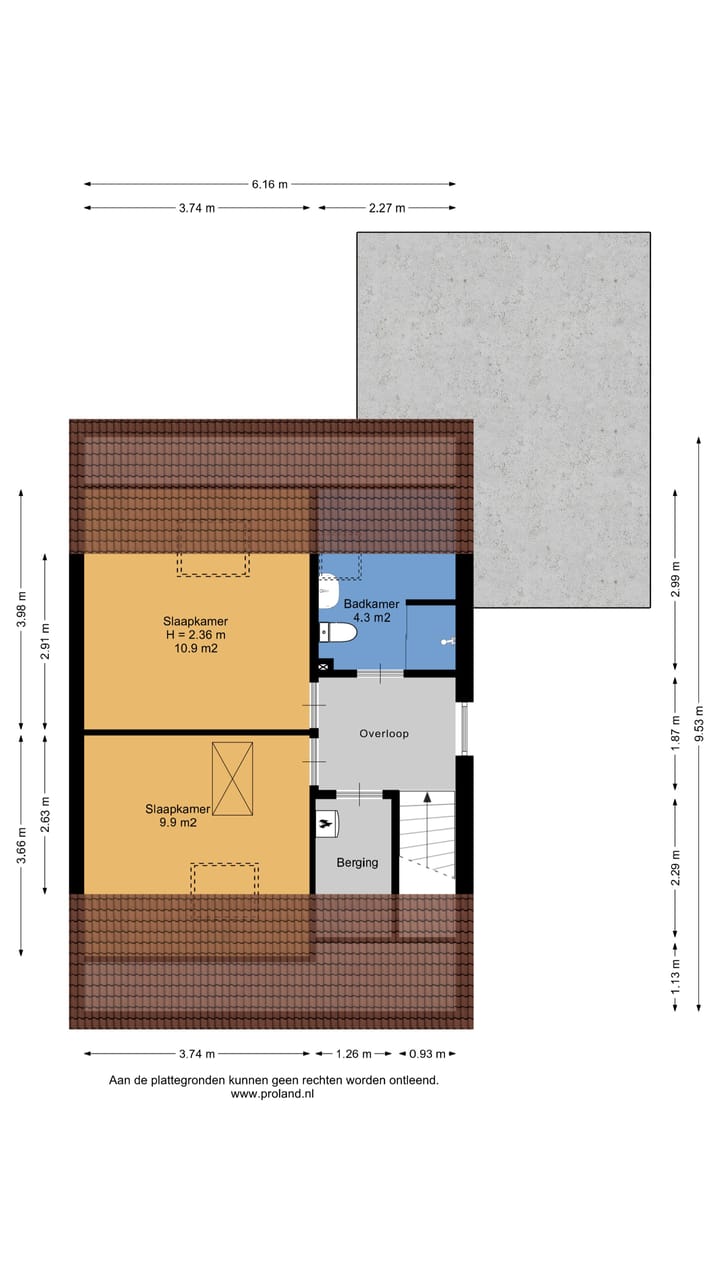
Indeling verdieping:
- overloop met berging;
- 2 royale slaapkamers waarvan 1 is uitgevoerd met een luik naar de zolderberging;
- keurige badkamer met douche, toilet en wastafel.
Algemene informatie.
Deze woning is oorspronkelijk gebouwd omstreeks 1983. De woning is uitgevoerd met een extra kamer op de begane grond die dienst heeft gedaan als slaapkamer en later als werkkamer/kantoor. Deze ruimte is voorzien van een deur naar de aanbouwde veranda. De aangebouwde garage is zowel aan de voorzijde als aan de achterzijde voorzien van een kanteldeur. De woning is voorzien van dakisolatie en isolerende beglazing. Verwarming geschiedt d.m.v. radiatoren in combinatie met een aardgasgestookte HR-combiketel (2008). Keuken en sanitaire voorzieningen zijn niet luxe maar wel erg netjes en kunnen nog jaren mee. In de tuin bevindt zich een royaal houten bijgebouw (5,7 x 3,8 m, met aangebouwde overkapping en berging) dat in het verleden dienst heeft gedaan als praktijkruimte/leslokaal en nu in gebruik is als tuinhuis. Op eigen terrein is sprake van voldoende parkeergelegenheid. Grondoppervlakte 407 m2.
De woning is gelegen op een fraaie locatie in een geliefde woonwijk in Nieuw Amsterdam (gemeente Emmen). Deze wijk kenmerkt zich door de ruime opzet en de aanwezigheid van relatief veel "groen". Het levendige dorpscentrum van Nieuw Amsterdam, met een keur aan winkelvoorzieningen, gelegen aan vaar/viswater, ligt op loopafstand, evenals twee basisscholen en het NS-station. Ook sportvoorzieningen liggen op geringe afstand, evenals een waterplas met wandelmogelijkheden.
De ligging in Nieuw Amsterdam (gemeente Emmen) is, ten opzichte van Emmen, Coevorden, Hoogeveen en Duitsland zeer centraal te noemen. Door de ligging nabij op- en afritten van de A37 is de ook de bereikbaarheid uitstekend. Emmen met het eveneens vernieuwde centrum, het belevenispark- Wildlands, het nieuwe Atlas-theater, het Scheperziekenhuis etc. ligt op een steenworp afstand. Bovendien kan men daar ook terecht voor het voortgezet en hoger onderwijs in nagenoeg alle studierichtingen. In de omgeving is tevens sprake van diverse fiets- en wandelroutes en bossen.
KORTOM, EEN ERG LEUKE WONING OP EEN PRIMA LOCATIE
Disclaimer.
Bert Beukema Makelaardij BV streeft er naar de informatie zo actueel en nauwkeurig mogelijk te houden. Hoewel de informatie met de grootst mogelijke zorgvuldigheid is samengesteld, aanvaarden wij geen enkele aansprakelijkheid ten aanzien van enige onvolledigheid, onjuistheid of anderszins, dan wel de gevolgen daarvan. De opgegeven oppervlakten en/of maten zijn indicatief. De NVM-voorwaarden zijn van toepassing.
Bert Beukema Makelaardij BV is lid van de NVM (Nederlandse Vereniging van Makelaars en Taxateurs) en is tevens MMCEPI gecertificeerd door de overkoepelende Europese organisatie CEPI.
Kenmerken
Overdracht
- Laatste vraagprijs
- € 298.000 kosten koper
- Vraagprijs per m²
- € 3.041
- Status
- Verkocht
Bouw
- Soort woonhuis
- Eengezinswoning, 2-onder-1-kapwoning
- Soort bouw
- Bestaande bouw
- Bouwjaar
- 1983
- Soort dak
- Zadeldak
Oppervlakten en inhoud
- Gebruiksoppervlakten
- Wonen
- 98 m²
- Overige inpandige ruimte
- 20 m²
- Gebouwgebonden buitenruimte
- 14 m²
- Externe bergruimte
- 25 m²
- Perceel
- 407 m²
- Inhoud
- 453 m³
Indeling
- Aantal kamers
- 4 kamers (3 slaapkamers)
- Aantal badkamers
- 1 badkamer en 1 apart toilet
- Badkamervoorzieningen
- Douche, toilet, en wastafel
- Aantal woonlagen
- 2 woonlagen
- Voorzieningen
- Glasvezelkabel en mechanische ventilatie
Energie
- Energielabel
- C
- Isolatie
- Dakisolatie en dubbel glas
- Verwarming
- Cv-ketel
- Warm water
- Cv-ketel
- Cv-ketel
- Remeha Quinta (gas gestookt combiketel uit 2008, eigendom)
Kadastrale gegevens
- EMMEN G 9118
- Kadastrale kaart
- Oppervlakte
- 407 m²
- Eigendomssituatie
- Volle eigendom
Buitenruimte
- Ligging
- Aan rustige weg en in woonwijk
- Tuin
- Achtertuin, voortuin en zijtuin
- Achtertuin
- 11,00 meter diep en 11,00 meter breed
- Ligging tuin
- Gelegen op het noorden bereikbaar via achterom
Bergruimte
- Schuur/berging
- Vrijstaande houten berging
- Voorzieningen
- Elektra
Garage
- Soort garage
- Aangebouwde stenen garage
- Capaciteit
- 1 auto
- Voorzieningen
- Elektra
- Isolatie
- Dakisolatie
Parkeergelegenheid
- Soort parkeergelegenheid
- Op eigen terrein
Foto's 46
© 2001-2025 funda













































