Dit huis op Funda: https://www.funda.nl/detail/koop/nieuw-vennep/huis-wemmingen-20/43784821/

Omschrijving
Ruim en modern ingericht GEZINSHUIS met energielabel B.
Deze woning met kunststof kozijnen en HR++ glas kenmerkt zich door de uitstekende staat van onderhoud en de moderne keuken en badkamer.
Aan de voorzijde een stenen schuur en twee eigen parkeerplaatsen waarvan één parkeerplaats onder de carport. Aan de achterzijde de prachtige tuin met houten schuur en gezellige veranda.
Vanuit huis loop je binnen een paar minuten zo in natuurgebied ’t Venneperhout met wandelmogelijkheden tot in Hoofddorp.
Indeling
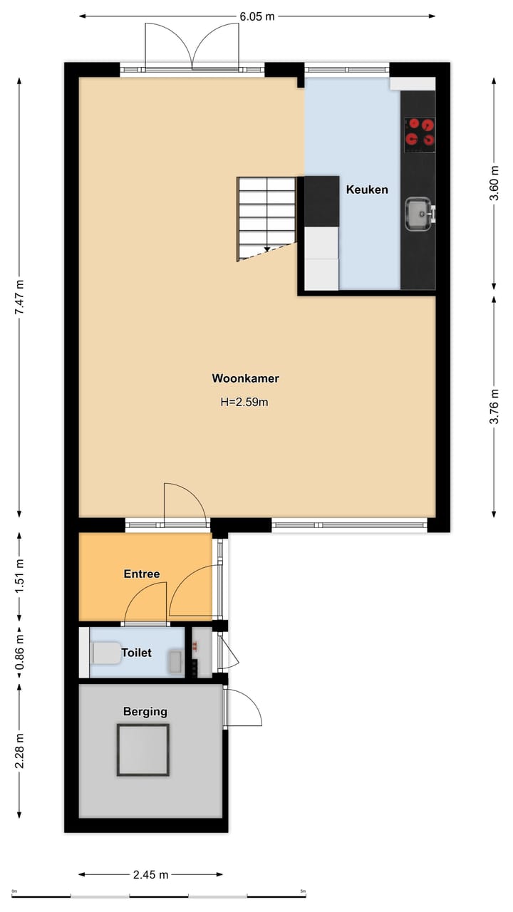
Entree, hal, modern toilet, garderobe en toegang tot de woonkamer.
Ruime woonkamer met aan de voorzijde de zitkamer en aan de achterzijde de moderne keuken. De woonkamer is voorzien van een lichte pvc-vloer.
De keuken is voorzien van een breed fornuis met oven en diverse andere inbouw-apparatuur.
Aan de achterzijde openslaande deuren naar de zonnige achtertuin. De achtertuin is onderhoudsvriendelijk aangelegd en goed verzorgd. Wat gelijk opvalt is het mooie nieuwe tuinhuis met veranda.
Eerste verdieping
Overloop, drie ruime slaapkamers trapkast en moderne badkamer.
De slaapkamer aan de voorzijde geeft toegang tot het balkon.
De prachtige badkamer (kleurstelling grijs – wit) met ruime inloopdouche is verder voorzien van een toilet en wastafelmeubel met spiegel.
Tweede verdieping
Ruime voorzolder met Velux dakraam en een grote zolderkamer met Velux dakraam en dakkapel.
Op de voorzolder hangt de centrale verwarmingsketel en tevens hier de aansluitingen voor een wasmachine en droger. Veel bergruimte achter de knieschotten.
Balkon
Klein balkon aan de voorzijde.
Tuin
Onderhoudsvriendelijke achtertuin met groot terras en een nieuw tuinhuis met veranda.
Bijzonderheden
• Instapklaar woonhuis
• Energiezuinige woning met energielabel B
• Kunststof kozijnen met HR++ glas
• Berging en carport aan de voorzijde.
• Houten tuinhuis en veranda aan de achterzijde.
• Ligging op 5 minuten loopafstand van wandelpark ’t Venneperhout.
Kenmerken
Overdracht
- Laatste vraagprijs
- € 525.000 kosten koper
- Vraagprijs per m²
- € 4.303
- Status
- Verkocht
Bouw
- Soort woonhuis
- Eengezinswoning, tussenwoning
- Soort bouw
- Bestaande bouw
- Bouwjaar
- 1973
- Specifiek
- Gestoffeerd
- Soort dak
- Zadeldak bedekt met pannen
- Keurmerken
- Energie Prestatie Advies
Oppervlakten en inhoud
- Gebruiksoppervlakten
- Wonen
- 122 m²
- Gebouwgebonden buitenruimte
- 5 m²
- Externe bergruimte
- 9 m²
- Perceel
- 180 m²
- Inhoud
- 417 m³
Indeling
- Aantal kamers
- 5 kamers (4 slaapkamers)
- Aantal badkamers
- 1 badkamer en 1 apart toilet
- Badkamervoorzieningen
- Inloopdouche, toilet, en wastafelmeubel
- Aantal woonlagen
- 3 woonlagen
- Voorzieningen
- Dakraam en mechanische ventilatie
Energie
- Energielabel
- B
- Isolatie
- Dakisolatie, HR-glas, muurisolatie en vloerisolatie
- Verwarming
- Cv-ketel
- Warm water
- Cv-ketel
- Cv-ketel
- NEFIT (gas gestookt combiketel uit 2019, eigendom)
Kadastrale gegevens
- HAARLEMMERMEER F 4793
- Kadastrale kaart
- Oppervlakte
- 180 m²
- Eigendomssituatie
- Volle eigendom
Buitenruimte
- Ligging
- In woonwijk
- Tuin
- Achtertuin
- Achtertuin
- 72 m² (12,00 meter diep en 6,00 meter breed)
- Ligging tuin
- Gelegen op het noordoosten
- Balkon/dakterras
- Balkon aanwezig
Bergruimte
- Schuur/berging
- Aangebouwde stenen berging
- Voorzieningen
- Elektra
Garage
- Soort garage
- Carport
Parkeergelegenheid
- Soort parkeergelegenheid
- Op eigen terrein
Foto's 49
© 2001-2025 funda
















































