
Omschrijving
Voormalige bedrijfsloods aan de Achterweg 50 abc met mogelijkheden voor herontwikkeling tot drie (starters)woningen, ieder met een eigen tuin en berging.
Huidige situatie
Het perceel wordt aangeboden in de huidige staat. Er is toestemming om hier drie woningen te bouwen. Het volledige plan is gereed: alle onderzoeken zijn al uitgevoerd en de omgevingsvergunning is verleend. Het perceel kan bijvoorbeeld gekocht worden door één koper die de drie woningen ontwikkelt, maar ook door bijvoorbeeld drie vrienden of familieleden die ieder een eigen woning willen realiseren.
Wat wordt er aan de koper overhandigd:
- Omgevingsvergunning, anterieure overeenkomst
- Bodem- en asbestonderzoeken, onderzoek geluidsbelasting wegverkeer en railverkeer, (offertes) saneringsplan, berekening spuiventilatie, statistische berekeningen, onderzoek constructiebureau
- Tekeningen
- Afdracht sociale woning bouw aan gemeente Kaag en Braassem
Wat wordt er niet aan de koper overhandigd:
- Sanering
Toekomstige situatie
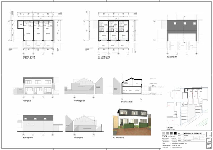
De drie woningen zullen naast elkaar onder één zadeldak worden gerealiseerd. Daarbij wordt tevens een dakkapel over bijna de gehele breedte van het dak gerealiseerd. De dakkapel blijft binnen de kaders van het bebouwde oppervlak en leidt bovendien niet tot overschrijding van de geldende bouwhoogte. Daarmee blijft het gebouw bestaan uit 1 bouwlaag met kap, met een bouwhoogte van ca. 6 m. De buitenruimtes van de starterswoningen worden in het voorerf, aansluitend op de woningen gerealiseerd. Het overgebleven deel van het voorerf wordt benut voor het realiseren van drie bergingen (één per woning) en het aanleggen van zes parkeervakken (twee per woning). De entree van het perceel blijft gesitueerd aan de Achterweg en bevindt zich tussen de parkeervakken.
Woonoppervlakte
Twee appartementen krijgen een woonoppervlakte van circa 53 m² en één appartement een woonoppervlakte van circa 58 m².
Ligging
Het pand bevindt zich tussen de voormalige bedrijfswoning Achterweg 50 en de woning Voorweg 89. Daarmee staat het pand ingeklemd tussen beide linten en wordt aan de zuidzijde ontsloten via een doorsteek tussen beide linten.
Bouwtekeningen
De beschikbare bouwtekeningen en overige documentatie kunnen wij desgewenst per e-mail toesturen. Laat het ons weten als hier interesse in is.
Visualisaties
Ter inspiratie zijn er in de toegevoegde media ook enkele artist impressions/visualisaties opgenomen van de mogelijke uitstraling van de woning, zodat je een idee krijgt van hoe het is om hier te wonen en hoe de ruimtes benut zouden kunnen worden.
Ligging & omgeving
Het winkelhart van Roelofarendsveen bevindt zich op slechts 10 minuten fietsafstand van Nieuwe Wetering. Hier tref je een winkelcentrum met diverse verswinkels, speciaalzaken en supermarkten. Tevens zijn hier diverse sportverenigingen, basisscholen, horecagelegenheden en meer. Nieuwe Wetering is als onderdeel van de gemeente Kaag en Braassem een mooie rustige woonomgeving centraal in het Groene Hart en Hollandse plassen. Maak een wandeling over de polderwegen in de om de hoek gelegen polder tussen Nieuwe Wetering en Rijpwetering. Of leg een bootje in een van de vele jachthavens en zoek de rust en ontspanning op van de Kagerplassen of Braassemermeer. En er is nog véél meer te doen in de omgeving. Daarnaast is door de ontsluitingen met bijv. de A4 en A44 de gemeente makkelijk aan te rijden vanuit de grote steden.
Bereikbaarheid
Vanuit Nieuwe Wetering rijd je met de auto in 2 minuten de rijksweg A4 op en sta je in ongeveer een kwartiertje op luchthaven Schiphol of in Leiden. De omliggende grote steden Amsterdam, Haarlem, Den Haag of de Noordzeestranden liggen op slechts 20 tot 30 minuten rijden vanaf Nieuwe Wetering. Op loopafstand ligt een bushalte met verbindingen naar Leiden en Schiphol. Tevens kun je in Nieuwe Wetering opstappen op de buurtbus, deze rijdt van Roelofarendsveen naar Lisse.
Bijzonderheden
- Voormalige bedrijfsloods
- Het object zal na verbouwing worden gesplitst in drie appartementen met de beoogde adressen Achterweg 50A, 50B en 50C
- Mogelijkheid tot het creëren van drie woningen
- Beschikbare bouwtekeningen en overige documentatie kan per mail worden toegestuurd
- Het volledige nieuwbouwplan is uitgewerkt: alle benodigde onderzoeken zijn afgerond en de omgevingsvergunning is verleend. Het enige wat nog rest, is dat de nieuwe eigenaar de uitvoering opstart. Dit kan door een aannemer in te schakelen en drie kopers te werven, maar het is ook mogelijk dat drie toekomstige eigenaren het project samen oppakken en ieder hun eigen woning realiseren.
Aanvaarding in overleg.
Kenmerken
Overdracht
- Oorspronkelijke vraagprijs
- € 550.000 kosten koper
- Aangeboden sinds
- Aanvaarding
- In overleg
- Vraagprijs
- € 500.000 kosten koper
- Status
- Verkocht onder voorbehoud
Bouw
- Soort parkeergelegenheid
- Garage
- Soort bouw
- Nieuwbouw
Indeling
- Perceel
- 360 m²
Kadastrale gegevens
- ALKEMADE B 4733
- Kadastrale kaart
- Oppervlakte
- 360 m²
- Eigendomssituatie
- Volle eigendom
Foto's 26
© 2001-2025 funda

























