Dit huis op Funda: https://www.funda.nl/detail/koop/nieuwegein/huis-koetsdrift-32/43860570/

Omschrijving
Voor gezinnen die op zoek zijn naar ruimte en een fijne leefomgeving, biedt deze woning in Batau-Zuid een uitstekende kans. De woning ligt gunstig ten opzichte van het stadscentrum en beschikt over een energielabel B. Met vijf slaapkamers en een tuin op het oosten is er volop ruimte voor het hele gezin om te genieten en te groeien. Lees verder en ontdek de vele mogelijkheden die dit huis te bieden heeft.
- Gunstige locatie dicht bij het stadscentrum;
- Energielabel B;
- Royale woonoppervlakte van 120 m² en perceel van 137 m²;
- Zonnige tuin op het oosten;
- Vijf ruime slaapkamers;
- Lichte woonkamer van 20 m².
Indeling:
Begane grond: De entree/hal biedt toegang tot het toilet, gevolgd door de lichte woonkamer. De woonkamer is ca. 48 m² en voorzien van veel lichtinval. Aansluitend bevindt zich de open inbouwkeuken met alle benodigde voorzieningen.
Ook de buitenruimte is verzorgd ingericht. Aan de voorzijde beschikt de woning over een royale oprit en aan de achterzijde een beschutte tuin gesitueerd op het oosten met stenen berging en achterom. In de stenen berging bevindt zich tevens nog een tweede keukenblok.
Eerste verdieping:
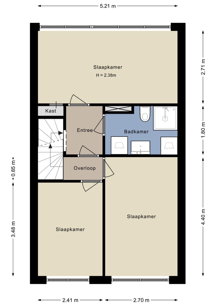
Via de overloop zijn een drietal goed bemeten slaapkamers te bereiken, alsmede de neutrale badkamer met douche, wastafel, toilet, wasmachine-aansluiting en radiator.
Tweede verdieping:
Hier bevinden zich nog een tweetal slaapkamers alsmede de cv-ketel.
Omgeving:
Batau-Zuid is een groene, kindvriendelijke buurt met tal van speelvoorzieningen. De nabijheid van het stadscentrum zorgt ervoor dat scholen, winkels en openbaar vervoer binnen handbereik zijn. Het is een rustige en veilige omgeving, ideaal voor jonge gezinnen.
Bijzonderheden:
- Vijf slaapkamers;
- Energielabel B;
- Tuin op het oosten;
- Gunstige ligging;
- Woonoppervlakte van 120 m²;
- Perceeloppervlakte van 137 m²;
- Lichte woonkamer;
- Kindvriendelijke buurt;
- Praktische indeling;
- Dichtbij voorzieningen;
- De gevelpanelen zijn asbesthoudend.
Neem je nvm makelaar mee naar de bezichtiging. Zeker weten dat je deze woning kunt betalen? Beumer Hypotheken kijkt graag met je mee!
Kenmerken
Overdracht
- Laatste vraagprijs
- € 400.000 kosten koper
- Vraagprijs per m²
- € 3.333
- Status
- Verkocht
Bouw
- Soort woonhuis
- Eengezinswoning, tussenwoning
- Soort bouw
- Bestaande bouw
- Bouwjaar
- 1975
- Soort dak
- Zadeldak bedekt met pannen
Oppervlakten en inhoud
- Gebruiksoppervlakten
- Wonen
- 120 m²
- Externe bergruimte
- 8 m²
- Perceel
- 137 m²
- Inhoud
- 407 m³
Indeling
- Aantal kamers
- 6 kamers (5 slaapkamers)
- Aantal badkamers
- 1 badkamer en 1 apart toilet
- Badkamervoorzieningen
- Douche, toilet, wastafel, en wastafelmeubel
- Aantal woonlagen
- 3 woonlagen
- Voorzieningen
- Dakraam en TV kabel
Energie
- Energielabel
- B
- Verwarming
- Cv-ketel
- Warm water
- Cv-ketel
- Cv-ketel
- Gas gestookt combiketel uit 2023, lease
Kadastrale gegevens
- JUTPHAAS B 11332
- Kadastrale kaart
- Oppervlakte
- 137 m²
- Eigendomssituatie
- Volle eigendom
Buitenruimte
- Ligging
- Aan rustige weg en in woonwijk
- Tuin
- Achtertuin en voortuin
Bergruimte
- Schuur/berging
- Vrijstaande houten berging
- Voorzieningen
- Elektra
Parkeergelegenheid
- Soort parkeergelegenheid
- Op eigen terrein en openbaar parkeren
Foto's 34
© 2001-2025 funda

































