Dit huis op Funda: https://www.funda.nl/detail/koop/nieuwegein/huis-lemmingweide-2/43710243/

Omschrijving
Op een fraaie en vrije locatie in de populaire wijk "Batau-Noord", bieden wij u aan deze royale en goed onderhouden 2 onder 1 kap woning met aangebouwde garage en fraaie 20 meter diepe achtertuin.
De woning bevindt zicht op een ruim perceel eigen grond van maar liefst 300 m2 en ligt direct aan het park.
In de nabije omgeving zijn winkels, scholen en openbaar vervoer (tram of bus) op loopafstand bereikbaar.
Woonoppervlakte 146 m²
Garage 21 m²
Houten bergingen 12 m²
Perceeloppervlakte 300 m²
Energielabel: D.
Indeling:
Garage: Ruime, aangebouwde garage van 21 m² met aan de achterzijde een deur naar de tuin.
Begane grond: Entree, hal met meterkast en toiletruimte. het woongedeelte is aan de voorzijde met zicht op het park, aan de achterzijde de tuingerichte eetkamer en nette keuken v.v. diverse apparatuur.
De begane grond vloer is voorzien van een laminaatvloer.
Achterdeur naar de fraaie groene, grote en zeer zonnige achtertuin van 20 meter diep met houten berging en kippenhok.
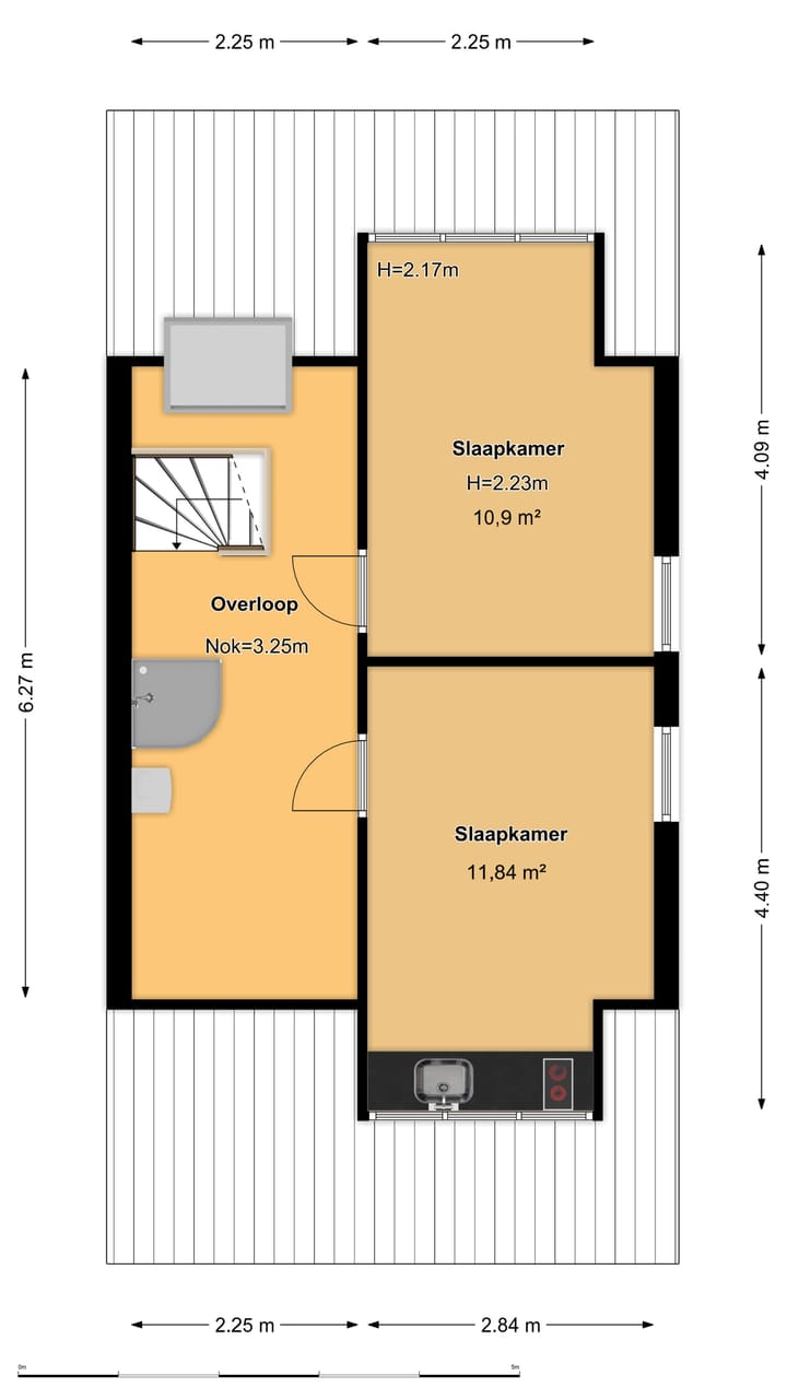
1e verdieping: Overloop, toegang tot 3 ruime slaapkamers van respectievelijk ca. 17 m², 11 m² en 9,5 m². Badkamer met douchecabine, toilet, wastafel en wasmachine aansluiting.
2e verdieping: Voorzolder met douchecabine, HR Combiketel Nefit Proline 2018 en bergruimte.
Voorslaapkamer met dakkapel en keukenblok, achterkamer met dakkapel.
Bijzonderheden:
- Royale 2 onder 1 kap woning met garage.
- Combiketel Nefit Proline HR geplaatst in 2018.
- Parkeren op eigen terrein (oprit) en in de garage.
- Winkelcentrum "Muntplein" met ruim winkelaanbod op loopafstand bereikbaar.
Oplevering begin maart 2025
Kenmerken
Overdracht
- Laatste vraagprijs
- € 595.000 kosten koper
- Vraagprijs per m²
- € 4.075
- Status
- Verkocht
Bouw
- Soort woonhuis
- Eengezinswoning, 2-onder-1-kapwoning
- Soort bouw
- Bestaande bouw
- Bouwjaar
- 1977
- Specifiek
- Gedeeltelijk gestoffeerd
- Soort dak
- Zadeldak bedekt met pannen
Oppervlakten en inhoud
- Gebruiksoppervlakten
- Wonen
- 146 m²
- Overige inpandige ruimte
- 21 m²
- Externe bergruimte
- 12 m²
- Perceel
- 300 m²
- Inhoud
- 547 m³
Indeling
- Aantal kamers
- 6 kamers (5 slaapkamers)
- Aantal badkamers
- 2 badkamers en 1 apart toilet
- Badkamervoorzieningen
- 2 douches, toilet, en wastafel
- Aantal woonlagen
- 3 woonlagen
- Voorzieningen
- Glasvezelkabel en mechanische ventilatie
Energie
- Energielabel
- D
- Isolatie
- Dakisolatie, dubbel glas en HR-glas
- Verwarming
- Cv-ketel
- Warm water
- Cv-ketel
- Cv-ketel
- Nefit Proline HR (gas gestookt combiketel uit 2018, eigendom)
Kadastrale gegevens
- JUTPHAAS B 3950
- Kadastrale kaart
- Oppervlakte
- 300 m²
- Eigendomssituatie
- Volle eigendom
Buitenruimte
- Ligging
- Aan park, aan rustige weg, in woonwijk en vrij uitzicht
- Tuin
- Achtertuin en voortuin
- Achtertuin
- 171 m² (20,10 meter diep en 8,52 meter breed)
- Ligging tuin
- Gelegen op het oosten bereikbaar via achterom
Bergruimte
- Schuur/berging
- Vrijstaande houten berging
- Voorzieningen
- Elektra
- Isolatie
- Geen isolatie
Garage
- Soort garage
- Aangebouwde stenen garage en parkeerplaats
- Capaciteit
- 1 auto
- Voorzieningen
- Elektra
- Isolatie
- Dakisolatie
Parkeergelegenheid
- Soort parkeergelegenheid
- Openbaar parkeren
Foto's 45
© 2001-2025 funda












































