
Omschrijving
KOOPVOORRANG
Voordat deze woning op de vrije markt wordt aangeboden, krijgen huurders van een sociale huurwoning van Portaal, Woonwaarts, Talis en SSH& in de gemeenten Nijmegen, Wijchen, Beuningen en Druten voorrang om deze woning te kopen. Wil je als huurder in aanmerking komen voor deze voorrangsregeling? Maak dan uiterlijk 25 augustus 2025 je interesse kenbaar bij de verkopende makelaar. Daarna is er geen garantie op bezichtigen en deelname.
In de rustige en ruim opgezette woonwijk Grootstal ligt dit lichte en verzorgde 3-kamerappartement met twee balkons en een praktische inpandige berging op de begane grond. Het appartement bevindt zich op de derde verdieping en heeft een gunstige ligging ten opzichte van diverse uitvalswegen. Op loopafstand vindt u aan de St. Jacobslaan een wijkwinkelcentrum met uiteenlopende voorzieningen en iets verderop in dezelfde straat een grote AH-XL. Ook de Radboud Universiteit, ziekenhuizen en diverse sport- en recreatiefaciliteiten zijn snel en eenvoudig per fiets bereikbaar.
Indeling:
Begane grond:
Centrale entree met intercominstallatie en brievenbussen. Vanuit hier zijn de bergingen en het trappenhuis bereikbaar.
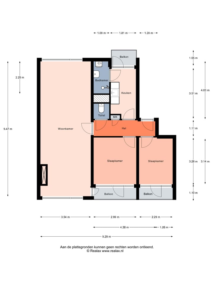
Appartement:
Via de centrale hal bereikt u alle vertrekken. De lichte woonkamer aan de voorzijde heeft een deur naar een ruim balkon. De separate, praktisch ingedeelde keuken biedt toegang tot een tweede balkon en grenst direct aan de badkamer, voorzien van douche en wastafel. In de hal vindt u tevens een separaat toilet en de meterkast. Er zijn twee slaapkamers, beide met toegang tot het balkon aan de achterzijde.
Bijzonderheden:
- Geheel voorzien van kunststof kozijnen met dubbel glas.
- Ruime en lichte woonkamer.
- Het appartement beschikt over 2 slaapkamers
- Gelegen nabij winkels, scholen en uitvalswegen.
- Parkeergelegenheid voor de deur.
- Op korte afstand van diverse winkelvoorzieningen, universiteit en de ziekenhuizen.
- Diverse sport- en recreatiemogelijkheden op korte afstand.
- Goede aansluiting via uitvalswegen op het landelijk wegennet (A73 en A50).
Notaris
Een goede notaris is belangrijk. Daarom werkt woningcorporatie Portaal met een vaste projectnotaris: LV-Notarissen in Nijmegen. Het is niet mogelijk de eigendomsoverdracht bij een andere notaris te regelen.
Zelf wonen
Woningcorporatie Portaal zet zich in voor goede woningen en wijken. De verkoop van deze woning zorgt voor een betere verdeling van koop- en huurwoningen in deze wijk. Als je deze woning koopt, dan bent je verplicht om er zelf te gaan wonen. Het is niet de bedoeling dat de woning door derden wordt bewoond en/of verhuurd. Deze voorwaarde wordt ook opgenomen in de akte van levering.
Kenmerken
Overdracht
- Servicekosten
- € 239 per maand
- Laatste vraagprijs
- € 295.000 kosten koper
- Vraagprijs per m²
- € 4.275
- Status
- Verkocht
Bouw
- Soort appartement
- Portiekflat
- Soort bouw
- Bestaande bouw
- Bouwjaar
- 1958
- Soort dak
- Plat dak bedekt met bitumineuze dakbedekking
Oppervlakten en inhoud
- Gebruiksoppervlakten
- Wonen
- 69 m²
- Gebouwgebonden buitenruimte
- 8 m²
- Externe bergruimte
- 6 m²
- Inhoud
- 231 m³
Indeling
- Aantal kamers
- 3 kamers (2 slaapkamers)
- Aantal badkamers
- 1 badkamer en 1 apart toilet
- Badkamervoorzieningen
- Douche en wastafel
- Aantal woonlagen
- 1 woonlaag
- Gelegen op
- 3e woonlaag
Energie
- Energielabel
- Isolatie
- Dubbel glas
- Verwarming
- Cv-ketel
- Warm water
- Cv-ketel
- Cv-ketel
- Nefit (gas gestookt combiketel, eigendom)
Kadastrale gegevens
- HATERT L 5183
- Kadastrale kaart
- Eigendomssituatie
- Volle eigendom
Buitenruimte
- Ligging
- Aan rustige weg en in woonwijk
Bergruimte
- Schuur/berging
- Inpandig
Parkeergelegenheid
- Soort parkeergelegenheid
- Openbaar parkeren
VvE checklist
- Inschrijving KvK
- Ja
- Jaarlijkse vergadering
- Ja
- Periodieke bijdrage
- Ja
- Reservefonds aanwezig
- Ja
- Onderhoudsplan
- Ja
- Opstalverzekering
- Ja
Foto's 25
© 2001-2026 funda
























