
Omschrijving
Tegenover het Wilhelminapark, op steenworp afstand van het centrum in Nijmegen-oost gelegen, verrassend ruime bovenwoning met balkon.
De ligging van dit vooroorlogse bovenhuis is super gunstig tussen Universiteit en centrum. Het centraal station bereik je in 10 minuutjes en door de ligging in het bruisende en super gewilde Nijmegen-oost ben je in een paar minuten bij de Albert Heijn en zit je in een mum van tijd op een terrasje van één van de gezellige kroegen, restaurants of eetcafés.
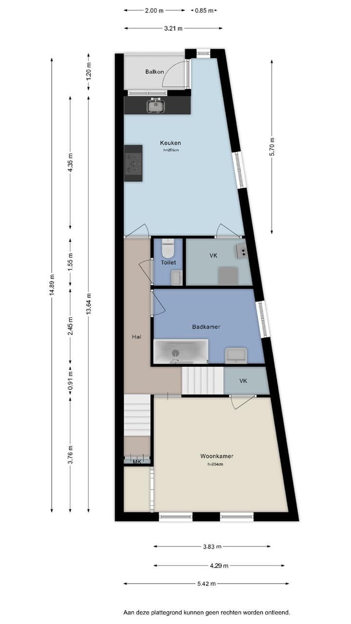
Het betreft een voormalig studentenhuis, dat praktisch is ingedeeld met op de woonverdieping een fijne woonkamer aan de voorzijde en woonkeuken aan de achterzijde met balkon. Op deze verdieping bevindt zich tevens een handige berging met aansluiting witgoed en CV-ketel en een badkamer met ligbad en wastafel. Op de slaapverdieping daarboven vind je drie ruime slaapkamers.
Het geheel heeft gezien de historie als studentenhuis liefde, aandacht en wat werk nodig.
Maar ben je bereid die investering te doen dan woon je straks in een pracht bovenwoning op een geweldige lokatie!
Kenmerken:
- bouwjaar 1920
- oppervlakte wonen: 117 m2
- HR-combiketel 2020
- geen actieve VVE
Omdat de eigenaren het appartement niet zelf hebben bewoond, zullen we naast een ouderdomsclausule eveneens een niet-zelf-bewoningsclausule opnemen.
Kenmerken
Overdracht
- Laatste vraagprijs
- € 375.000 kosten koper
- Vraagprijs per m²
- € 3.205
- Status
- Verkocht
Bouw
- Soort appartement
- Bovenwoning
- Soort bouw
- Bestaande bouw
- Bouwjaar
- 1920
- Soort dak
- Plat dak bedekt met bitumineuze dakbedekking en pannen
Oppervlakten en inhoud
- Gebruiksoppervlakten
- Wonen
- 117 m²
- Gebouwgebonden buitenruimte
- 2 m²
- Inhoud
- 397 m³
Indeling
- Aantal kamers
- 4 kamers (3 slaapkamers)
- Aantal badkamers
- 2 badkamers en 1 apart toilet
- Badkamervoorzieningen
- 2 ligbaden en wastafel
- Aantal woonlagen
- 2 woonlagen
- Voorzieningen
- Mechanische ventilatie en TV kabel
- Gelegen op
- 2e woonlaag
Energie
- Energielabel
- E
- Isolatie
- Dakisolatie en gedeeltelijk dubbel glas
- Verwarming
- Cv-ketel
- Warm water
- Cv-ketel
- Cv-ketel
- NEFIT Proline HR combi (gas gestookt combiketel uit 2020, eigendom)
Kadastrale gegevens
- HATERT A 8724
- Kadastrale kaart
- Eigendomssituatie
- Volle eigendom
Buitenruimte
- Ligging
- Aan park en in centrum
- Balkon/dakterras
- Balkon aanwezig
Parkeergelegenheid
- Soort parkeergelegenheid
- Betaald parkeren
VvE checklist
- Inschrijving KvK
- Nee
- Jaarlijkse vergadering
- Nee
- Periodieke bijdrage
- Nee
- Reservefonds aanwezig
- Nee
- Onderhoudsplan
- Nee
- Opstalverzekering
- Nee
Foto's 30
© 2001-2025 funda





























