
Omschrijving
Rustig gelegen / verkeersluw, een uiterst solide, uitstekend onderhouden volumineus vrijstaand woonhuis met o.a. fraaie tuin rondom, grote garage / berging / hobbyruimte en een carport.
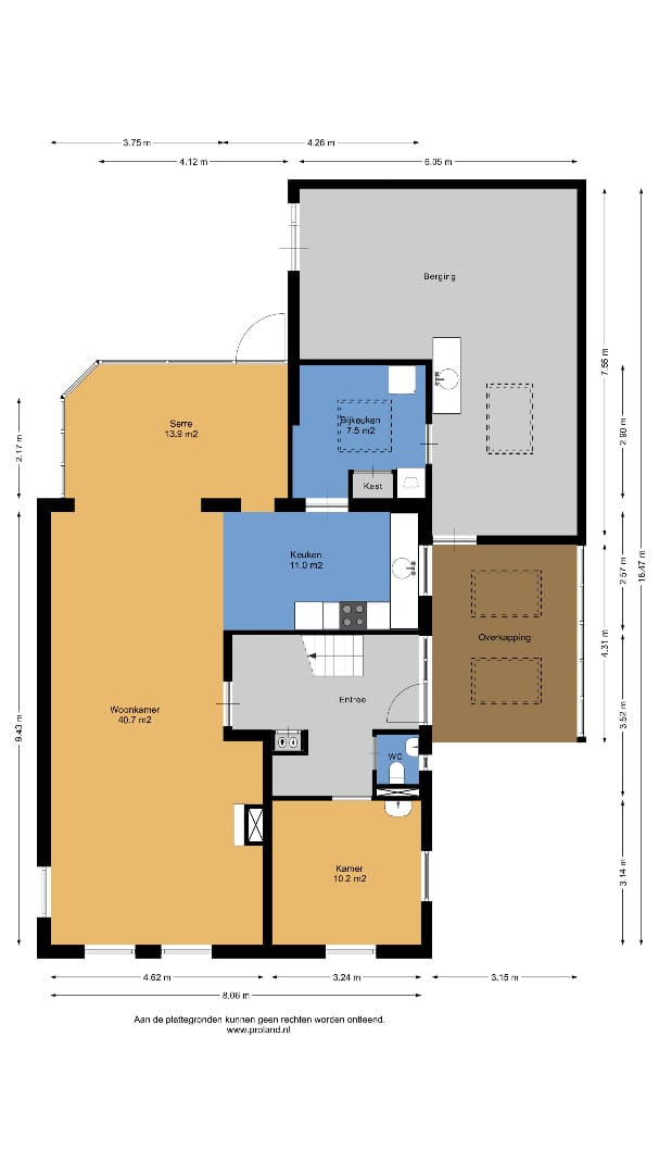
Indeling:
Parterre: entree/hal met vide, garderobenis en tegelvloer, hangtoilet met fontein, meterkast, prachtige royale living met open haard en pvc-vloer. Halfopen keuken v.z.v. installatie met halogeenkookplaat, oven, koelkast, afzuigkap, granietenblad en boilertje (10 ltr). Voorts prachtige tuingerichte serre, slaapkamer / kantoor, bijkeuken / berging (betegeld en met voorraadkast), inpandig bereikbare garage (in spouw uitgevoerd met cv, 2 loopdeuren en dubbele deur t.b.v. auto.
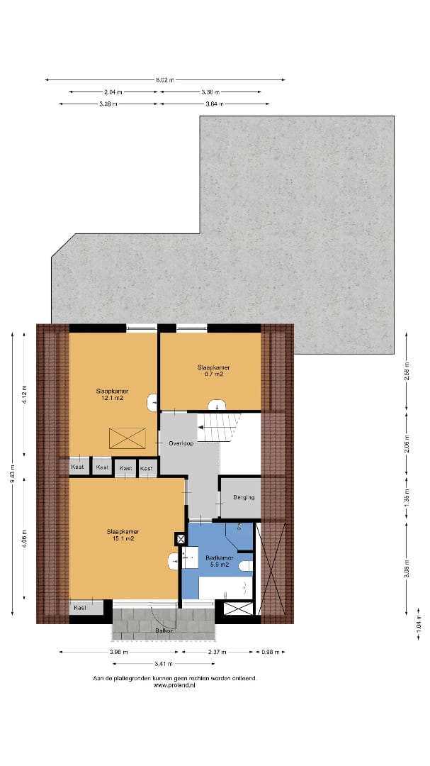
1e Verdieping: overloop / vide, 3 grote slaapkamers (waarvan 2 met vaste kasten, alle 3 met wastafel en 1 met deur naar groot balkon), grote badkamer met bubbelbad, inloopdouche, wastafelmeubel, hangtoilet en designradiator. Bergruimte met o.a. cv-ketel; Intergas HR combi, balkon op zuiden.
2e Verdieping: vlizotrap naar heel grote zolder / berging.
Bijzonderheden:
- bouwjaar 1981, serre 2003
- perceeloppervlakte 511 m², woonoppervlakte ca 160 m², garage ca 37 m²
- vloerverwarming in keuken, serre en bijkeuken
- pvc-vloer op parterre, 1e verdieping v.z.v. mozaïekparketvloer
- inhoud ca 590 m³
- markiezen aan voorzijde met zondetectie
- prachtige tuin met o.a. vijverpartij, terrassen, tuinhuis en overkapping
** prachtige woning, moet beslist gezien worden! **
Kenmerken
Overdracht
- Laatste vraagprijs
- € 675.000 kosten koper
- Vraagprijs per m²
- € 4.219
- Status
- Verkocht
Bouw
- Soort woonhuis
- Eengezinswoning, vrijstaande woning
- Soort bouw
- Bestaande bouw
- Bouwjaar
- 1981
Oppervlakten en inhoud
- Gebruiksoppervlakten
- Wonen
- 160 m²
- Gebouwgebonden buitenruimte
- 18 m²
- Externe bergruimte
- 7 m²
- Perceel
- 511 m²
- Inhoud
- 590 m³
Indeling
- Aantal kamers
- 5 kamers (4 slaapkamers)
- Aantal badkamers
- 2 aparte toiletten
- Aantal woonlagen
- 3 woonlagen
Energie
- Energielabel
- C
- Isolatie
- Dakisolatie, gedeeltelijk dubbel glas en muurisolatie
- Verwarming
- Cv-ketel en open haard
- Warm water
- Cv-ketel
- Cv-ketel
- 2024
Kadastrale gegevens
- HELLENDOORN N 6588
- Kadastrale kaart
- Oppervlakte
- 511 m²
- Eigendomssituatie
- Volle eigendom
Buitenruimte
- Ligging
- Aan rustige weg
- Tuin
- Tuin rondom
Garage
- Soort garage
- Aangebouwde stenen garage
- Capaciteit
- 1 auto
Foto's 54
© 2001-2025 funda





















































