Dit huis op Funda: https://www.funda.nl/detail/koop/nistelrode/bouwgrond-laar-76/43642521/

Omschrijving
Deze bouwkavel van 325 m² aan Laar 76 in Nistelrode biedt de perfecte kans om jouw droomhuis te realiseren. Geschikt voor de bouw van een mooie twee-onder-een-kapwoning, biedt deze kavel volop mogelijkheden voor zowel starters als gezinnen die op zoek zijn naar een “eigen” nieuwbouwproject in een rustige en groene omgeving.
De kavel ligt op een prachtige locatie in een kindvriendelijke buurt met scholen, winkels en sportvoorzieningen op korte afstand. Het bouwen van een twee-onder-een-kapwoning op deze kavel biedt niet alleen volop ruimte voor een comfortabele familiewoning, maar ook voor een ruime tuin waar je optimaal van de omgeving kunt genieten.
Deze kavel is een fantastische mogelijkheid voor zelfbouwers die op korte termijn willen starten met bouwen, en de ontwerpfase van een woning liever overslaan.
Te bouwen woning
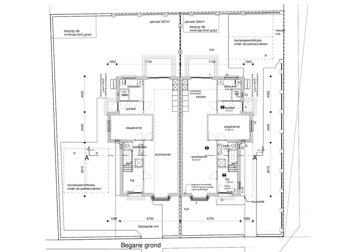
De bouwkavel is voorzien van een goedgekeurde tekening voor het realiseren van een nieuwe twee-onder- een-kapwoning. De te bouwen woning wordt identiek aan de bestaande woning (Laar 74), maar is uiteraard het spiegelbeeld hiervan.
Het nieuwe woonhuis krijgt een woonoppervlakte van circa 143 m² en heeft een inhoud van
circa 579 m³.
De indeling van de woning, zoals die nu op tekening staat, is op de begane grond een hal met garderobe en meterkast, woonkamer met openslaande tuindeuren, open keuken, slaapkamer met badkamer, portaal met toegang tot de bijkeuken, toilet. Op de eerste verdieping is een overloop, twee slaapkamers, twee bergingen en een badkamer. De tweede verdieping is een bergzolder.
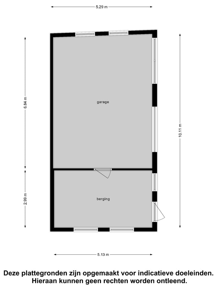
Bijgebouw
De garage, achter op het perceel, is voorbestemd te worden gesloopt. Het betreft een garage die ruimte biedt aan één auto en een berging heeft. Tijdens de bouwwerkzaamheden kan het prima dienst doen als “bouwkeet” en opslagruimte.
Energie en duurzaamheid
Een nieuwbouwwoning biedt grote voordelen op het gebied van duurzaamheid en energieprestatie. Door moderne bouwtechnieken zijn nieuwbouwwoningen beter geïsoleerd, wat resulteert in lagere energiekosten. Ze voldoen aan de nieuwste bouwnormen, zoals de Energieprestatie van Gebouwen (EPG), en zijn vaak voorzien van energiezuinige installaties zoals warmtepompen, zonnepanelen, en ventilatiesystemen met warmteterugwinning (WTW).
Nieuwbouwwoningen hebben doorgaans een energielabel A+++, of zijn zelfs energieneutraal, wat ze aantrekkelijker maakt in een wereld met steeds striktere energieregels.
Bovendien hebben nieuwbouwwoningen door het gebruik van duurzame materialen en moderne technieken een langere levensduur, wat toekomstige onderhouds- en reparatiekosten vermindert. Dit maakt een nieuwbouwwoning een slimme en milieuvriendelijke keuze voor de toekomst.
Locatie en Omgeving
De kavel ligt op een prachtige locatie aan de doorgaande weg door Nistelrode. De buurt is kindvriendelijk met scholen, winkels en sportvoorzieningen op korte afstand.
Nistelrode is een sfeervol dorp gelegen in de gemeente Bernheze, nabij natuurgebied De Maashorst. Hier geniet je van een landelijke omgeving met een prettige balans tussen rust en gezelligheid. De nabijheid van steden als Oss en 's-Hertogenbosch zorgt ervoor dat je alle benodigde voorzieningen binnen handbereik hebt, terwijl je toch in een serene woonomgeving verblijft. Nistelrode biedt bovendien goede bereikbaarheid via de A50, waardoor woon-werkverkeer moeiteloos verloopt.
Wij nodigen u van harte uit om deze prachtige woning met eigen ogen te komen bekijken en de unieke sfeer zelf te ervaren. Neem contact met ons op voor een bezichtiging en ontdek de mogelijkheden die deze woning u te bieden heeft. We kijken ernaar uit u te ontmoeten!
Kenmerken
Overdracht
- Laatste vraagprijs
- € 200.000 kosten koper
- Status
- Verkocht
Bouw
- Soort object
- Bouwgrond
- Bouwrijp
- Ja
Indeling
- Perceel
- 325 m²
Kadastrale gegevens
- NISTELRODE B 2515
- Kadastrale kaart
- Oppervlakte
- 325 m² (deelperceel)
- Eigendomssituatie
- Volle eigendom
Buitenruimte
- Ligging
- Aan drukke weg en in centrum
Foto's 15
© 2001-2026 funda














