Dit huis op Funda: https://www.funda.nl/detail/koop/noordwijk-zh/huis-koepelweg-6/43842968/

Omschrijving
KOEPELWEG 6 - ZUIDDUINEN - NOORDWIJK AAN ZEE
Op unieke locatie in de Zuidduinen gelegen goed onderhouden charmante vrijstaande villa met oprijpad en vrijstaande garage op ca. 501 m2 eigen grond. Zonnige tuin met terras op het zuidwesten. Bouwjaar ca.1918 en in 2022 gemoderniseerd en gerenoveerd. Woonoppervlakte ca. 129 m2 en inhoud ca. 567 m3. De ligging in het duin waarborgt privacy terwijl dorpskern, boulevard, strand en duinen zich op vijf minuten loopafstand bevinden.
De indeling is als volgt:
Begane grond: entree, vestibule met garderobe, vaste kast en vernieuwde meterkast. Hal met kelderkast, vernieuwde toiletruimte met vrijdragend toilet en fontein. Keuken met authentieke servieskast, granito aanrecht, 4 pits gaskookplaat met afzuigschouw. De vestibule, hal en keuken zijn nog voorzien van de originele granito vloer. Bijkeuken met vaatwasser, koel-vriescombinatie, aansluitingen voor de wasapparatuur, Remeha Calenta cv-combiketel (2018) en deur naar de tuin. Royale lichte woonkamer ensuite met parketvloer, vaste kasten, dubbele openslaande deuren naar de zonnige tuin en terras op het zuidwesten. De gehele begane grond is voorzien van glad stucwerk wanden en dubbel glas.
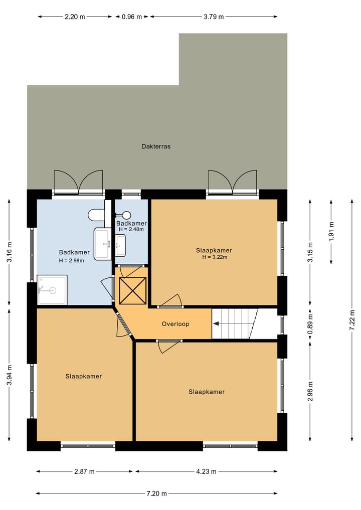
Eerste verdieping: overloop, 3 ruime slaapkamers waarvan een slaapkamer met dubbele openslaande deuren naar royaal dakterras van circa 30 m2. Moderne badkamer met vloerverwarming, 2e toilet, douche, wastafelmeubel met spiegel en verlichting. Vanuit de badkamer dubbele openslaande deuren naar het dakterras. 2e badkamer voorzien van wastafel, douche, design radiator en vloerverwarming. Airconditioning aanwezig ten behoeve van de gehele eerste verdieping.
Tweede verdieping: Via vlizotrap naar zolderverdieping met 2x Velux dakvenster en dakisolatie.
De gehele woning is in 2022 gemoderniseerd, gerenoveerd en o.a. voorzien van nieuwe badkamers, stucwerk, elektrische bedrading, schakelmateriaal, etc.
Parkeergelegenheid voor meerdere auto’s op eigen terrein. Vrijstaande stenen garage met elektriciteit. Zonnige achtertuin met achterom en voorzien van bosschages. Deze villa is eventueel ook te koop inclusief al het aanwezige meubilair.
Aanvaarding: in overleg.
Vraagprijs: € 1.395.000 kosten koper.
Disclaimer:
Deze informatie is door ons met de nodige zorgvuldigheid samengesteld. Onzerzijds wordt echter geen enkele aansprakelijkheid aanvaard voor enige onvolledigheid, onjuistheid of anderszins, dan wel de gevolgen daarvan.
Kenmerken
Overdracht
- Laatste vraagprijs
- € 1.395.000 kosten koper
- Vraagprijs per m²
- € 10.814
- Status
- Verkocht
Bouw
- Soort woonhuis
- Villa, vrijstaande woning
- Soort bouw
- Bestaande bouw
- Bouwjaar
- 1918
- Soort dak
- Zadeldak bedekt met pannen
Oppervlakten en inhoud
- Gebruiksoppervlakten
- Wonen
- 129 m²
- Overige inpandige ruimte
- 8 m²
- Gebouwgebonden buitenruimte
- 29 m²
- Externe bergruimte
- 15 m²
- Perceel
- 501 m²
- Inhoud
- 567 m³
Indeling
- Aantal kamers
- 6 kamers (3 slaapkamers)
- Aantal badkamers
- 2 badkamers en 1 apart toilet
- Badkamervoorzieningen
- 2 inloopdouches, vloerverwarming, 2 wastafels, toilet, en wastafelmeubel
- Aantal woonlagen
- 2 woonlagen en een vliering
- Voorzieningen
- Airconditioning, dakraam, mechanische ventilatie, natuurlijke ventilatie, en TV kabel
Energie
- Energielabel
- F
- Isolatie
- Dakisolatie en dubbel glas
- Verwarming
- Cv-ketel
- Warm water
- Cv-ketel
- Cv-ketel
- Remeha Calenta (gas gestookt combiketel uit 2018, eigendom)
Kadastrale gegevens
- NOORDWIJK A 3106
- Kadastrale kaart
- Oppervlakte
- 501 m²
- Eigendomssituatie
- Volle eigendom
Buitenruimte
- Ligging
- Beschutte ligging, in centrum en in woonwijk
- Tuin
- Tuin rondom
- Balkon/dakterras
- Dakterras aanwezig
Garage
- Soort garage
- Vrijstaande stenen garage
- Capaciteit
- 1 auto
- Voorzieningen
- Elektra
Parkeergelegenheid
- Soort parkeergelegenheid
- Op eigen terrein
Foto's 48
© 2001-2025 funda















































