Dit huis op Funda: https://www.funda.nl/detail/koop/nuth/huis-pommer-6/43019788/

Omschrijving
MOOIE RUIME, GOED GELEGEN, 2 ONDER 1 KAPWONING MET 5 SLAAPKAMERS, ENERGIELABEL A, GARAGE, ONDERHOUDSVRIENDELIJKE TUIN MET GROTE OVERKAPPING
Modern wooncomfort, energiezuinig én instapklaar wonen in Nuth!
Ben je op zoek naar een ruime, perfect onderhouden en energiezuinige woning met alles erop en eraan? Deze stijlvolle twee-onder-een-kapwoning met garage uit 2005, gelegen in het gewilde en kindvriendelijke woonpark De Eijken, biedt je het beste van comfortabel wonen in een groene en centrale omgeving.
Duurzaam & energiezuinig
Met energielabel A, 19 zonnepanelen (hoogwaardig Zweedse 405 Pw per paneel), vloerverwarming, HR++ beglazing in hardhouten kozijnen, volledige dak-, spouw- en vloerisolatie, en airco op elke verdieping (inverter) is deze woning helemaal klaar voor de toekomst. Rolluiken (grotendeels elektrisch) en horren zorgen voor extra comfort én privacy. Dit geldt ook voor het alarmsysteem met camerabewaking.
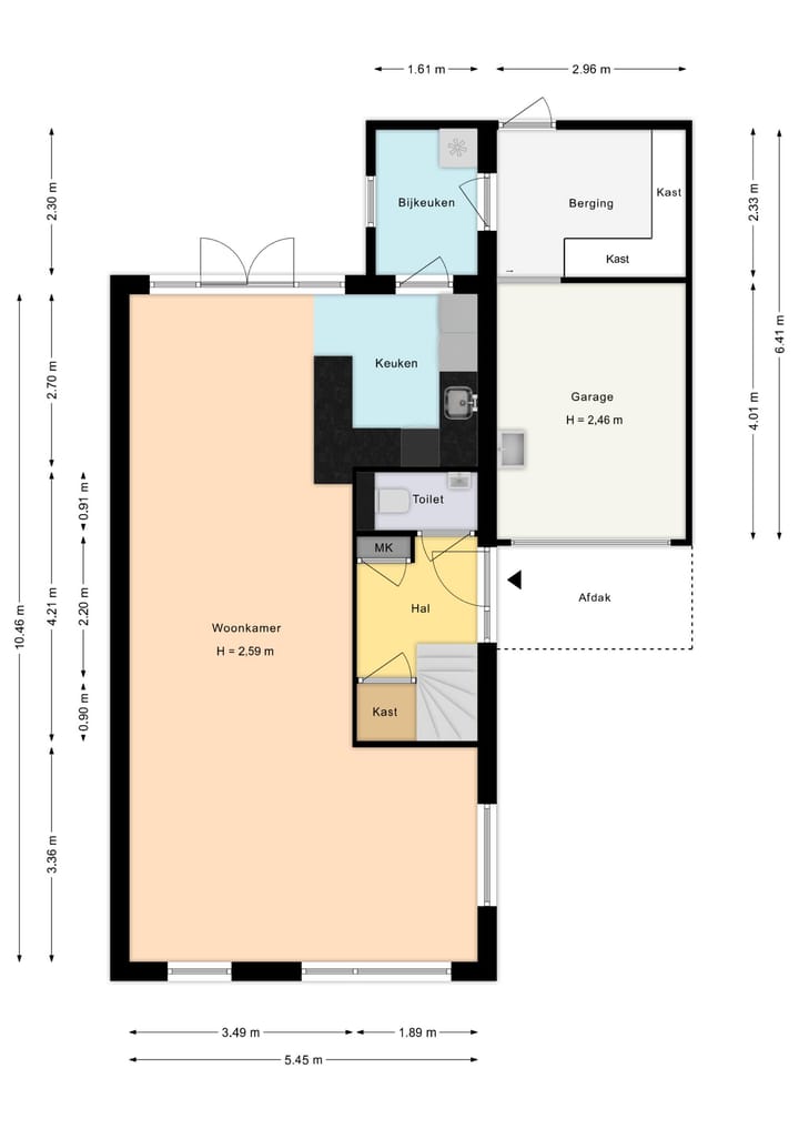
Wonen in ruimte en stijl
De royale doorzonwoonkamer is afgewerkt met een moderne plavuizenvloer (vloerverwarming) en beschikt over dubbele openslaande tuindeuren naar een luxe aluminium overkapping met lichtkoepel, elektrische screens, een zonneluifel en terrasheater – perfect voor lange zomeravonden!
Moderne leefkeuken & praktische bijruimten
De U-vormige inbouwkeuken is een waar kookparadijs, met een granieten werkblad en hoogwaardige apparatuur waaronder een inductiekookplaat (2023), wasemkap (2024), vaatwasser (2018), combi-oven/magnetron (2022) en Amerikaanse koel-vriescombinatie. Praktisch is de aanwezigheid van een bijkeuken, separate berging en een ruime garage met plavuizenvloer en elektrische poort. De garage en berging zijn gescheiden door een vaste kastenwand. Door verwijderen van de kastenwand loopt de vloer en de garage volledig door. In de voortuin is een dubbele wcd met klik aan/uitsysteem en de oprit is voorzien van grondspots.
Slaapcomfort en comfortabele badkamer
Op de verdieping vind je drie volwaardige slaapkamers, waaronder een royale ouderslaapkamer met inloopkast en een tweede slaapkamer met grote inbouwkast met schuifwanden. De luxe badkamer is compleet uitgerust met 2 persoons hoekbad, inloopdouche, dubbele wastafel in meubel, tweede zwevend toilet, vloerverwarming en infraroodpaneel. Op de overloop is ingebouwde vaste kastenwand (schuifdeuren) gerealiseerd.
Extra ruimte op zolder
De tweede verdieping biedt nog twee slaapkamers (waarvan één met inloopkast), een wasruimte met ATAG HR-combiketel (2023), aansluitingen voor wasmachine en droger, én toegang tot een vliering voor extra bergruimte. Alle verdiepingen zijn voorzien van extra UTP en CAI-aansluitingen, en LED-verlichting. De vliering is via de overloop middels vliezotrap toegankelijk en kan dienst doen als extra bergruimte en is voorzien van verlichting, wcd en novilonvloer.
Onderhoudsarme tuin op het zuidwesten
De fraai aangelegde tuin is onderhoudsarm met keramische tegels, verlichte borders, meerdere wcd (rondom), 4 grondspots en sfeerverlichting in de borders/bloembakken en via meerdere deuren bereikbaar vanuit woonkamer én berging. Genieten van de zon, privacy en rust is hier vanzelfsprekend.
Ligging
Deze woning is ideaal gelegen nabij het centrum van Nuth, met supermarkten, basisscholen, sportfaciliteiten en uitvalswegen en treinstation op korte afstand.
Samengevat: een instapklare, energiezuinige gezinswoning op toplocatie – klaar voor een nieuwe toekomst met jou!
Interesse? Neem contact met ons op voor een bezichtiging en laat je verrassen door de ruimte, kwaliteit en ligging.
De waarborgsom/bankgarantie is 10% van de koopsom. De koper dient deze binnen 2 weken nadat het financieringsvoorbehoud is verlopen bij de desbetreffende notaris te deponeren.
Ter bescherming van de belangen van zowel koper als ook verkoper wordt uitdrukkelijk gesteld dat een koopovereenkomst met betrekking tot deze onroerende zaak eerst dan tot stand komt nadat koper en verkoper de koopovereenkomst hebben getekend (schriftelijkheidsvereiste).
Alle door ons kantoor verstrekte informatie omtrent onroerende zaken, moet beschouwd worden als een uitnodiging om in onderhandeling te treden, en is geheel vrijblijvend! Aangegeven maten zijn slechts bij benadering. Aan deze beperkte info kunnen geen rechten worden ontleend. Indien c.v.ketel en/of warmwatervoorziening een huurtoestel is, dient koper de huurovereenkomst over te nemen.
Een (eventueel) bijgevoegde plattegrond dient uitsluitend als globale indicatie/visualisatie. Hieraan kunnen uitdrukkelijk tevens geen rechten worden ontleend.
Kenmerken
Overdracht
- Laatste vraagprijs
- € 480.000 kosten koper
- Vraagprijs per m²
- € 2.909
- Status
- Verkocht
Bouw
- Soort woonhuis
- Eengezinswoning, 2-onder-1-kapwoning
- Soort bouw
- Bestaande bouw
- Bouwjaar
- 2005
- Soort dak
- Zadeldak bedekt met pannen
Oppervlakten en inhoud
- Gebruiksoppervlakten
- Wonen
- 165 m²
- Overige inpandige ruimte
- 12 m²
- Gebouwgebonden buitenruimte
- 39 m²
- Perceel
- 220 m²
- Inhoud
- 615 m³
Indeling
- Aantal kamers
- 12 kamers (5 slaapkamers)
- Aantal badkamers
- 1 badkamer en 1 apart toilet
- Badkamervoorzieningen
- Dubbele wastafel, inloopdouche, ligbad, toilet, vloerverwarming, en wastafelmeubel
- Aantal woonlagen
- 2 woonlagen en een zolder met een vliering
- Voorzieningen
- Airconditioning, alarminstallatie, buitenzonwering, dakraam, glasvezelkabel, rolluiken, TV kabel, en zonnepanelen
Energie
- Energielabel
- Isolatie
- Dakisolatie, dubbel glas, HR-glas, muurisolatie en vloerisolatie
- Verwarming
- Cv-ketel
- Warm water
- Cv-ketel
- Cv-ketel
- Atag (gas gestookt combiketel uit 2023, eigendom)
Kadastrale gegevens
- NUTH C 5417
- Kadastrale kaart
- Oppervlakte
- 220 m²
- Eigendomssituatie
- Volle eigendom
Buitenruimte
- Ligging
- Aan rustige weg en in woonwijk
- Tuin
- Achtertuin en voortuin
- Achtertuin
- 73 m² (8,00 meter diep en 9,11 meter breed)
- Ligging tuin
- Gelegen op het zuidwesten
Bergruimte
- Schuur/berging
- Aangebouwde stenen berging
- Voorzieningen
- Elektra en stromend water
Garage
- Soort garage
- Aangebouwde stenen garage
- Capaciteit
- 1 auto
- Voorzieningen
- Elektrische deur, elektra en stromend water
- Isolatie
- Dakisolatie
Parkeergelegenheid
- Soort parkeergelegenheid
- Op eigen terrein en openbaar parkeren
Foto's 43
© 2001-2026 funda










































