Dit huis op Funda: https://www.funda.nl/detail/koop/odijk/huis-abdijgaarde-22/43727388/

Omschrijving
Deze rustig gelegen, lichte eengezinswoning met aangebouwde berging, voortuin, achtertuin en achterom, ligt op loopafstand van het dorpscentrum van Odijk. De woning heeft een fraaie ligging aan een plantsoen in een kindvriendelijke woonomgeving met een speeltuin om de hoek.
Het landelijke, groene Odijk, ligt centraal in het land op circa 20 autominuten van Utrecht, vlakbij de snelwegen A-12 en A-27. In het dorp tref je de dagelijks benodigde voorzieningen zoals supermarkten, diverse winkels, basisscholen, kinderopvang, sportgelegenheden en openbaar vervoer. Op fietsafstand liggen onder andere N.S.-station Driebergen-Zeist en Bunnik, De Uithof en het UMC Utrecht. De landelijke omgeving leent zich uitstekend voor mooie wandel- en fietstochten.
Begane grond:
Hal/entree met toilet met fonteintje, meterkast, trapopgang en trapkast. Lichte doorzonkamer met eiken vloerdelen en deur naar de achtertuin. Dichte keuken aan de achterzijde, met eveneens toegang tot de achtertuin op het zuidoosten. De achtertuin beschikt over een aangebouwde stenen berging en achterom.
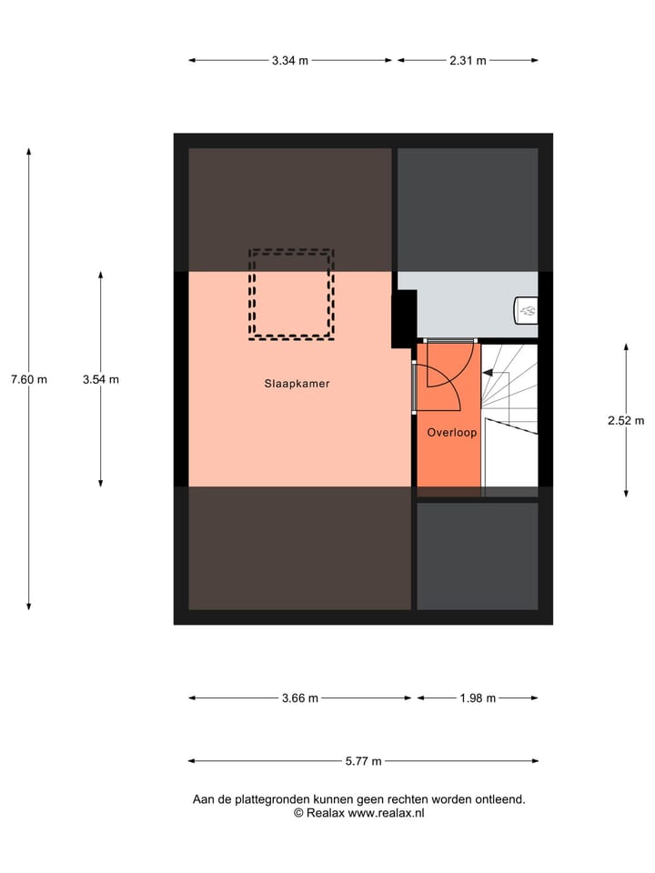
1e Verdieping:
Overloop met vaste kast en toegang tot alle vertrekken. Drie slaapkamers van resp. 11, 11 en 7 m2. Twee slaapkamers beschikken over vaste kasten. Eenvoudige badkamer met douchecabine en vaste wastafel.
2e Verdieping:
Via een vaste trap bereikbare ruime zolderverdieping. Overloop met C.V.-/bergruimte. Ruime 4e slaapkamer met dakraam.
Bijzonderheden:
- woonoppervlakte 108 m2
- perceeloppervlakte 131 m2
- energielabel B (voorzien van dubbel glas, vloer en spouw zijn nageïsoleerd)
- bouwkundige keuring beschikbaar
- zelfbewoningsplicht gedurende 5 jaar
- notaris ter keuze verkoper
Kenmerken
Overdracht
- Laatste vraagprijs
- € 425.000 kosten koper
- Vraagprijs per m²
- € 3.935
- Status
- Verkocht
Bouw
- Soort woonhuis
- Eengezinswoning, tussenwoning
- Soort bouw
- Bestaande bouw
- Bouwjaar
- 1969
- Soort dak
- Zadeldak bedekt met pannen
Oppervlakten en inhoud
- Gebruiksoppervlakten
- Wonen
- 108 m²
- Overige inpandige ruimte
- 7 m²
- Perceel
- 131 m²
- Inhoud
- 396 m³
Indeling
- Aantal kamers
- 5 kamers (4 slaapkamers)
- Aantal badkamers
- 1 badkamer en 1 apart toilet
- Badkamervoorzieningen
- Douche en wastafel
- Aantal woonlagen
- 2 woonlagen en een zolder
- Voorzieningen
- Dakraam en TV kabel
Energie
- Energielabel
- B
- Isolatie
- Dubbel glas, muurisolatie en vloerisolatie
- Verwarming
- Cv-ketel
- Warm water
- Cv-ketel
- Cv-ketel
- Intergas (gas gestookt combiketel, eigendom)
Kadastrale gegevens
- ODIJK A 3329
- Kadastrale kaart
- Oppervlakte
- 131 m²
- Eigendomssituatie
- Volle eigendom
Buitenruimte
- Ligging
- Aan rustige weg, in woonwijk en vrij uitzicht
- Tuin
- Achtertuin en voortuin
- Achtertuin
- 52 m² (8,60 meter diep en 6,00 meter breed)
- Ligging tuin
- Gelegen op het zuidoosten bereikbaar via achterom
Bergruimte
- Schuur/berging
- Aangebouwde stenen berging
Parkeergelegenheid
- Soort parkeergelegenheid
- Openbaar parkeren
Foto's 29
© 2001-2025 funda




























