
Omschrijving
Een comfortabel en energiezuinig (A+) drie-kamer appartement gelegen in de natuurrijke en duurzame wijk Poelgeest. Het appartement ligt op de derde verdieping van een kleinschalig appartementencomplex en beschikt over twee slaapkamers, badkamer, eigen parkeerplaats en berging in de kelder en een heerlijk balkon op het zuiden.
In de directe nabijheid treft u instellingen en bedrijven aan zoals het Bio Science Park, de Universiteit van Leiden, Akzo Nobel, Avery en ESTEC/ESA. Ook diverse jachthavens liggen op loopafstand, waardoor u de Kagerplassen en de binnenstad van Leiden eenvoudig per boot kunt bereiken.
Het gezellige historische centrum van Leiden, ziekenhuizen (Alrijne en LUMC) en het centraal station van Leiden zijn op fietsafstand. Ook is de woning gunstig gesitueerd ten opzichte van uitvalswegen N-206 en A-44. Door de Rijnlandroute zal o.a. de A4 nog beter bereikbaar worden en in ongeveer 20 minuten autorijden, bereikt u Den Haag, Schiphol Airport en boulevard, duinen, zee en strand van de badplaatsen Katwijk, Noordwijk en Wassenaar.
Indeling
Begane grond:
Centrale entree met bellentableau met camerasysteem, postbussen, hal met lift en trappenhuis naar parkeerkelder en het appartement.
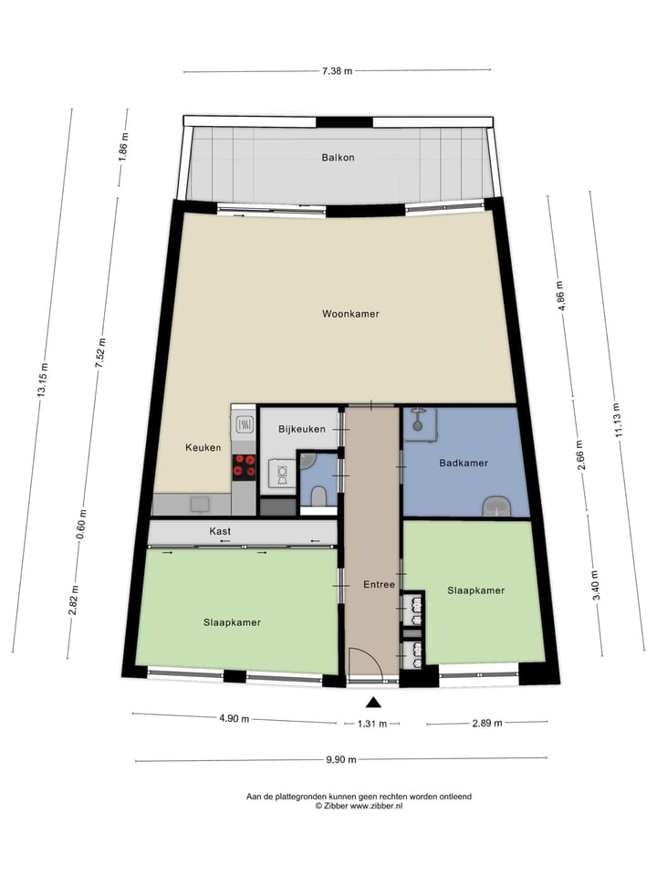
Derde verdieping:
Entree; gang met toegang tot alle vertrekken. Aan het begin van deze gang bevinden zich twee meterkasten. De eerste bevat de warmtewisselaar van het stadsverwarmingssysteem, de tweede de groepenkast. Separaat toilet met wandcloset en fonteintje. L-vormige berging met aansluiting voor wasmachine en droger en de unit van de mechanische ventilatie. De ruime badkamer is voorzien van een wastafel en douche. Aan de galerijkant bevinden zich de twee slaapkamers. Beide kamers hebben praktische draai-kiepramen. De bijzonder lichte, ruime woonkamer heeft een dubbele schuifpui die toegang geeft tot het zonnige en overdekte balkon op het zuiden. De halfopen keuken is voorzien van diverse inbouwapparatuur, zoals vaatwasmachine, combi oven, koelkast en 4-pits inductie kookplaat.
Bijzonderheden
- Bouwjaar 2007
- Gebruiksoppervlakte wonen 95 m2
- Overige inpandige ruimte 0 m2
- Gebouw gebonden buitenruimte 13 m2
- Externe bergruimte 7 m2
- Energielabel A+
- Volledig geïsoleerd
- Zonnig balkon met zonnescherm op het zuiden
- VvE-kosten € 208,80 per maand
- Oplevering in overleg
Koopakte
- niet-zelfbewoningsclausule van toepassing
Kenmerken
Overdracht
- Laatste vraagprijs
- € 499.000 kosten koper
- Vraagprijs per m²
- € 5.253
- Status
- Verkocht
Bouw
- Soort appartement
- Galerijflat (appartement)
- Soort bouw
- Bestaande bouw
- Bouwjaar
- 2007
- Soort dak
- Plat dak
Oppervlakten en inhoud
- Gebruiksoppervlakten
- Wonen
- 95 m²
- Gebouwgebonden buitenruimte
- 13 m²
- Externe bergruimte
- 7 m²
- Inhoud
- 313 m³
Indeling
- Aantal kamers
- 3 kamers (2 slaapkamers)
- Aantal badkamers
- 1 badkamer en 1 apart toilet
- Badkamervoorzieningen
- Douche en wastafel
- Aantal woonlagen
- 1 woonlaag
- Voorzieningen
- Buitenzonwering, mechanische ventilatie, en schuifpui
- Gelegen op
- 3e woonlaag
Energie
- Energielabel
- A+
- Isolatie
- Volledig geïsoleerd
- Verwarming
- Stadsverwarming
- Warm water
- Stadsverwarming
Kadastrale gegevens
- OEGSTGEEST D 907
- Kadastrale kaart
- Eigendomssituatie
- Volle eigendom
Buitenruimte
- Ligging
- Aan rustige weg en in woonwijk
Bergruimte
- Schuur/berging
- Box
- Voorzieningen
- Elektra
Parkeergelegenheid
- Soort parkeergelegenheid
- Openbaar parkeren en parkeergarage
VvE checklist
- Inschrijving KvK
- Ja
- Jaarlijkse vergadering
- Ja
- Periodieke bijdrage
- Ja
- Reservefonds aanwezig
- Ja
- Onderhoudsplan
- Ja
- Opstalverzekering
- Ja
Foto's 22
© 2001-2025 funda





















