
Westelbeersedijk 955091 SL Oost West en MiddelbeersVerspreide huizen Middelbeers
Verkocht
€ 895.000 k.k.
Omschrijving
Op een prachtige locatie gelegen vrijstaande bungalow met 3 (mogelijkheid voor 4) ruime slaapkamers, een vrijstaande dubbele garage en een heerlijke omliggende groene tuin. En dat alles op een perceel van maar liefst 2.503 vierkante meter!! Deze verzorgde woning ligt op een toplocatie aan de Westelbeersedijk in Middelbeers, gemeente Oirschot met aan de overzijde van de straat landerijen en aan de achterkant van het perceel fraai zicht op de bossen, grenzend aan natuurgebied “de Landschotse Heide”. Het geheel is gelegen op een privacy biedend perceel in het buitengebied. Op slechts een paar minuten rijden (2 kilometer) vindt u de dorpskern van Middelbeers waar alle voorzieningen voor handen zijn. Kortom! Een heerlijke plek om te kunnen genieten van de rust en de natuur maar ook dichtbij het bourgondische leven!
Bouwjaar huidige woning eind jaren 60
Inhoud woning ca. 821 m³
Gebruiksoppervlakte wonen ca. 218 m²
Overige inpandige ruimte ca. 3 m²
Gebouw gebonden buitenruimte ca. 64 m²
Externe bergruimte ca. 71 m²
Perceel 2.503 m²
Energielabel D
Begane grond:
Middels een smeedijzeren, elektrisch bedienbare poort met gemetselde penanten bereikt men de fraaie, door veel groen omgeven oprijlaan naar de woning. De pilaren met verlichting, audiofoon installatie en brievenbus geven de entree een luxe uitstraling. Zodra men de oprit oprijdt valt meteen de hoeveelheid natuurschoon en volwassen groen in deze bosrijke omgeving op. Tegen dit fraaie volwassen groen steekt het wit van deze vrijstaande bungalow erg mooi af. Nabij de entree van de woning bevindt zich ruim voldoende parkeerruimte voor het parkeren van meerdere voertuigen op eigen terrein, direct voor de dubbele garage.
Middels een charmante overdekte woningentree betreedt men de zeer ruime ontvangsthal van de woning. De royale hal is keurig afgewerkt met een gemêleerde keramische tegelvloer, spachtelputz op de wanden en een schuurwerk plafond met fraaie sierlijst. Dit alles in een frisse lichte kleurstelling. De ontvangsthal heeft door de grote raampartijen om de voordeur een fijne lichtinval. De hal biedt toegang tot de woonkamer, de vernieuwde, moderne meterkast, een afsluitbare garderobekast met hang- en legmogelijkheden, de gang naar de keuken en tot een centrale gang welke leidt naar de slaapvertrekken en de sanitaire ruimtes. Tenslotte biedt de ontvangsthal ook nog toegang tot de wijnkelder.
De woonkamer heeft een sfeervolle uitstraling en is royaal van opzet. Het is tevens een fijne lichte ruimte met een driezijdige lichtinval die de ruimte van heel wat natuurlijk daglicht voorziet. De ruimte is verzorgd en smaakvol afgewerkt met lamel parket in visgraatmotief, spachtelputz in lichte kleurtelling op de wanden en een wit schuurwerk plafond met sierlijst en gipsen ornamenten. Door de grote raampartijen heeft men vanuit alle zijden fraai zicht op het omliggende groen. De woonkamer is onder te verdelen in een riante zit- en eethoek. De fraaie schouw met open haard en natuurstenen haardbank zorgt met name in de koude wintermaanden voor een aangename stralingswarmte en sfeer. De woonkamer biedt toegang tot de gang naar de keuken en middels een loopdeur tot het terras aan de achterzijde van de woning.
Zowel vanuit de hal als vanuit de woonkamer is middels een deur met glas in roedeverdeling de hal of tussenruimte naar de keuken bereikbaar. Deze ruimte is afgewerkt met een gemêleerde keramische tegelvloer, spachtelputz en houten delen tegen de wanden en een schuurwerk plafond in lichte kleurstelling. Vanuit hier is middels een deur met glas in roedeverdeling de keuken toegankelijk.
Aan de achterzijde van de woning bevindt zich de riante woonkeuken. Het brede raamkozijn biedt vanuit hier zicht op de groen aangelegde tuin. De keuken, met keukeninrichting in een hoekopstelling en in een lichte kleurstelling, beschikt over veel kastruimte met witte, vlakke deuren en lades en over een donker kunststof werkblad en aanrechtverlichting. De keuken is ingericht met een dubbele rvs gootsteen, met één greeps mengkraan, een Aga kookfornuis met dubbele kookplaat, 4 ovens en bakplaat, een koel- vriescombinatie en een vaatwasser. Vanuit de keuken is middels een gang het terras aan de achterzijde te bereiken. Ook komt men vanuit de keuken in de gang welke toegang biedt tot alle slaapvertrekken en de sanitaire ruimtes.
De centrale gang biedt toegang naar 3 ruime slaapkamers, 2 toiletruimtes en de badkamer. De gang is afgewerkt met een gemêleerde keramische tegelvloer, spachtelputz op de wanden en een houten delen plafond met sfeervolle inbouwverlichting.
De volledig betegeld toiletruimte (1) is afgewerkt met lichte, gemêleerde wand- en vloertegels en voorzien van een duoblok en fontein. De toiletruimte beschikt daarbij over natuurlijk daglicht.
De ruime en keurig afgewerkte ouderslaapkamer is zeer zeker royaal te noemen met een oppervlakte van ca. 30 vierkante meter. Op vrij eenvoudige wijze is het mogelijk van deze ruimte twee slaapkamers te creëren waardoor een 4e slaapkamer ontstaat. De twee grote raamkozijnen brengen hier heel wat prettig daglicht binnen en bieden goed zicht op de overkapping in de tuin. De ouderslaapkamer is voorzien van een kastenwand over de gehele breedte van de kamer met praktische hang- en legmogelijkheden achter fraai geprofileerde deuren. De ruimte is afgewerkt met een laminaatvloer in houtlook, spachtelputz op de wanden en een mdf-delen plafond.
Slaapkamer 2 is tevens ruim en licht van opzet. Deze ruimte heeft evenals de ouderslaapkamer mooi zicht op de overkapping en de tuin. Een nette kamer, afgewerkt met een laminaatvloer in houtlook, spachtelputz wanden in lichte tint en een plafond van mdf delen. De ruimte is bovendien voorzien van wastafel met mengkraan in meubel met veel bergruimte, een spiegel en verlichting.
Slaapkamer 3 heeft door de twee grote raampartijen een fijne lichtinval en middels een loopdeur toegang tot de heerlijk groene bostuin. Deze slaapkamer is afgewerkt van een laminaatvloer in houtlook, behangen wanden en een mdf delen plafond.
Vanuit de gang is een 2e toiletruimte toegankelijk. Deze ruime, volledig betegelde toiletruimte is afgewerkt met gemêleerde, keramische wand- en vloertegels en voorzien van een duoblok, een keramische wastafel met planchet, spiegel en verlichting en natuurlijk daglicht.
De badkamer is volledig betegeld met keramische wand- en vloertegels, een houten delen plafond met inbouwverlichting en beschikt over prettig natuurlijk daglicht en mechanische ventilatie. Vanuit de badkamer is middels een luik de ruime bergzolder toegankelijk. Ook is vanuit hier een cv-ruimte te bereiken met daarin de cv-combiketel (Itho Climax, plaatsingsjaar 2005). Verder is de ruimte compleet ingericht met een radiator, een ligbad met thermostaatkraan en handdouche, een dubbele wastafel met mengkranen planchet en grote spiegel en een douchcabine met thermostaatkraan en glazen deur.
Buitenruimte:
De woning is gelegen op een ruim perceel met een heerlijk groene bostuin rondom. De tuin is voorzien van diverse terrassen, gazon, vaste beplanting en volwassen bomen. Zowel vanuit de keuken als vanuit de woonkamer is een heerlijk ruim terras in siertegel bestrating toegankelijk. Hier is het heerlijk genieten van het omliggende groen! Niet alleen de tuin zelf is voorzien van prachtig groen en grote bomen. Ook in de omgeving bevindt zich veel hoog groen. Aan de achterzijde van de woning bevindt zich een riante, royale overkapping/veranda. De veranda is een fantastische plek om te genieten van het natuurschoon in de tuin. De gehele veranda is begroeid met fraaie druivenranken waardoor hier een hele fijne mediterrane sfeer is ontstaan. Het terras is bestraat met een keramische tegel in warme tint. De veranda is afgedekt met een houten constructie met licht doorlatende platen. Vanuit de veranda heeft men mooi zicht op een groot gedeelte van de tuin.
Ook de voortuin van de woning is mooi groen aangelegd met vaste beplanting en volwassen bomen. Direct aan de voordeur bevindt zich meer dan voldoende parkeerruimte voor het parkeren van meerdere voertuigen op eigen terrein.
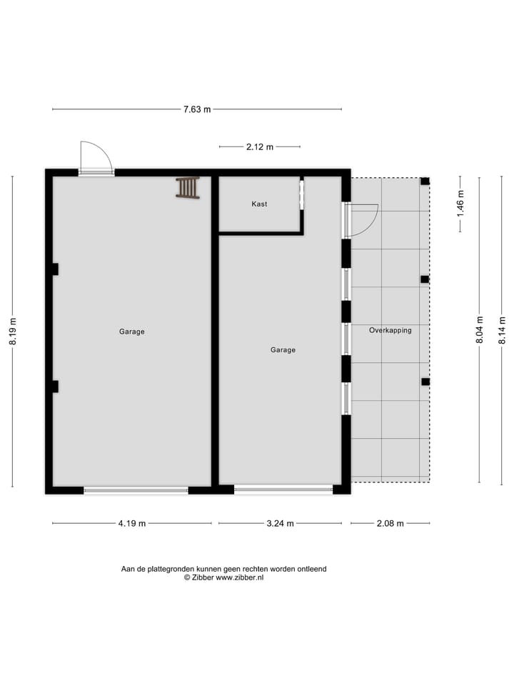
Vanuit de oprit is de vrijstaande dubbele garage bereikbaar. De garage is onderverdeel in twee delen, beide toegankelijk middels een elektrisch bedienbare sectionaaldeur. De garages zijn verder voorzien van een bergzolder, koud water voorziening en twee loopdeuren naar de tuin. Deze ruimte biedt volop mogelijkheden zoals een B&B, mantelzorgwoning of werkruimte aan huis.
De woning is heerlijk gelegen in een bosrijke en landelijke omgeving aan de doorgaande weg van Middelbeers naar Westelbeers. Aan de achterzijde van het perceel zijn uitgestrekte bossen. Aan de voorzijde van het perceel weidse landerijen.
Algemeen:
- Bouwjaar huidige woning eind jaren 60, inhoud woning ca. 821 m³, gebruiksoppervlakte wonen ca. 218 m², overige inpandige ruimte ca. 3 m², gebouw gebonden buitenruimte ca. 64 m², externe bergruimte ca. 71 m², perceel 2.503 m².
In de jaren 70 is de woning uitgebouwd (keuken).
- Op een prachtige locatie gelegen vrijstaande bungalow met 3 (mogelijkheid voor 4) ruime slaapkamers, een vrijstaande dubbele garage en een heerlijke omliggende groene tuin. En dat alles op een perceel van maar liefst 2.503 vierkante meter!!
- Deze verzorgde woning ligt op een toplocatie aan de Westelbeersedijk in Middelbeers, gemeente Oirschot met aan de overzijde van de straat landerijen en aan de achterkant van het perceel fraai zicht op de bossen, grenzend aan natuurgebied “de Landschotse Heide”.
- Het geheel is gelegen op een privacy biedend perceel in het buitengebied.
- Op slechts een paar minuten rijden (2 kilometer) vindt u de dorpskern van Middelbeers waar alle voorzieningen voor handen zijn. Kortom! Een heerlijke plek om te kunnen genieten van de rust en de natuur maar ook dichtbij het bourgondische leven!
- Rondom de gemeente zijn prachtige natuurgebieden te vinden met vele fiets- en wandelroutes
- De gemeente Oirschot, waar “de Beerzen” onderdeel van zijn, heeft een centrale ligging ten opzichte van Den Bosch, Eindhoven, Eindhoven Airport en Tilburg. Binnen ca. 20 minuten rijden zijn de binnensteden hiervan bereikbaar.
- Ruim voldoende parkeergelegenheid op eigen terrein.
- Centrale verwarming en warm water middels HR combiketel, type Itho, plaatsingsjaar 2005.
- Energielabel D.
- Vernieuwde meterkast (2014): voldoende groepen, aardlekvoorzieningen en 2 slimme meters.
- De gehele woning is voorzien van houten kozijnen, grotendeels met dubbele beglazing.
- Woning is voorzien van dak-, muurisolatie.
- In 2010 is het gehele dak gerenoveerd en zijn ook de dakpannen vernieuwd.
- Betonnen begane grond vloer.
- Mechanische ventilatie: badkamer (2018) en keuken.
- Buitenkozijnen geschilderd in 2024.
- Rookmelders aanwezig (2022).
- Glasvezelvoorziening dubbel aanwezig (Kempenglas en KPN).
Deze informatie is door ons met de nodige zorgvuldigheid samengesteld. Onzerzijds wordt echter geen enkele aansprakelijkheid aanvaard voor enige onvolledigheid, onjuistheid of anderszins, dan wel de gevolgen daarvan. Alle opgegeven maten en oppervlakten zijn indicatief.
Kenmerken
Overdracht
- Laatste vraagprijs
- € 895.000 kosten koper
- Vraagprijs per m²
- € 4.106
- Status
- Verkocht
Bouw
- Soort woonhuis
- Bungalow, vrijstaande woning
- Soort bouw
- Bestaande bouw
- Bouwjaar
- 1958
- Soort dak
- Zadeldak bedekt met pannen
Oppervlakten en inhoud
- Gebruiksoppervlakten
- Wonen
- 218 m²
- Overige inpandige ruimte
- 3 m²
- Gebouwgebonden buitenruimte
- 64 m²
- Externe bergruimte
- 71 m²
- Perceel
- 2.503 m²
- Inhoud
- 821 m³
Indeling
- Aantal kamers
- 4 kamers (3 slaapkamers)
- Aantal badkamers
- 1 badkamer en 1 apart toilet
- Badkamervoorzieningen
- Douche, dubbele wastafel, en ligbad
- Aantal woonlagen
- 1 woonlaag, een vliering, en een kelder
- Voorzieningen
- Glasvezelkabel, mechanische ventilatie, natuurlijke ventilatie, rookkanaal, en TV kabel
Energie
- Energielabel
- Isolatie
- Dakisolatie, grotendeels dubbelglas en muurisolatie
- Verwarming
- Cv-ketel
- Warm water
- Cv-ketel
- Cv-ketel
- Itho (gas gestookt combiketel uit 2005, eigendom)
Kadastrale gegevens
- OOST-, WEST- EN MIDDELBEERS H 292
- Kadastrale kaart
- Oppervlakte
- 1.423 m²
- Eigendomssituatie
- Volle eigendom
- OOST-, WEST- EN MIDDELBEERS H 291
- Kadastrale kaart
- Oppervlakte
- 242 m²
- Eigendomssituatie
- Volle eigendom
- OOST-, WEST- EN MIDDELBEERS H 331
- Kadastrale kaart
- Oppervlakte
- 838 m²
- Eigendomssituatie
- Volle eigendom
Buitenruimte
- Ligging
- Aan bosrand, buiten bebouwde kom, in bosrijke omgeving en landelijk gelegen
- Tuin
- Tuin rondom
Garage
- Soort garage
- Vrijstaande stenen garage
- Capaciteit
- 4 auto's
- Voorzieningen
- Vliering, elektra en stromend water
Parkeergelegenheid
- Soort parkeergelegenheid
- Op eigen terrein
Foto's 64
© 2001-2026 funda































































