
Giethuiserf 224901 NA Oosterhout (NB)Centrum
€ 295.000 k.k.
Omschrijving
Op leuke locatie, in het centrum van Oosterhout gelegen, 2-kamer appartement met extra bergzolder, balkon op het zuiden en berging op de begane grond. Het appartement ligt bijzonder centraal en alle voorzieningen zijn op loopafstand bereikbaar.
Bijzonderheden:
- Appartement met balkon op het zuiden;
- Op de tweede verdieping gelegen;
- Laminaatvloer in het gehele appartement.
- Rond om het appartementen complex zijn openbare parkeerplaatsen. Hier is een parkeervergunning vereist.
- De kosten voor een parkeervergunning bedraagt thans (2025) circa € 60-- per jaar voor één auto. Het aanvragen van deze vergunning is voor rekening en risico van koper.
- Indicatie bijdrage servicekosten € 175,-- per maand.
- Keuze notaris is voorbehouden aan de verkopende partij, zijnde VAD Notarissen N.V. te Rotterdam.
De indeling is als volgt:
Centrale toegang, aan de zij-kant van het complex, met belplateau, brievenbussen en de trapopgang.
De indeling van het appartement is als volgt:
In het portaal van de tweede verdieping is een kast waarin de cv-ketel en geiser is gesitueerd.
Entree met laminaatvloer, meterkast en betegeld toilet met fontein.
Vanuit de entree zijn de diverse vertrekken toegankelijk.
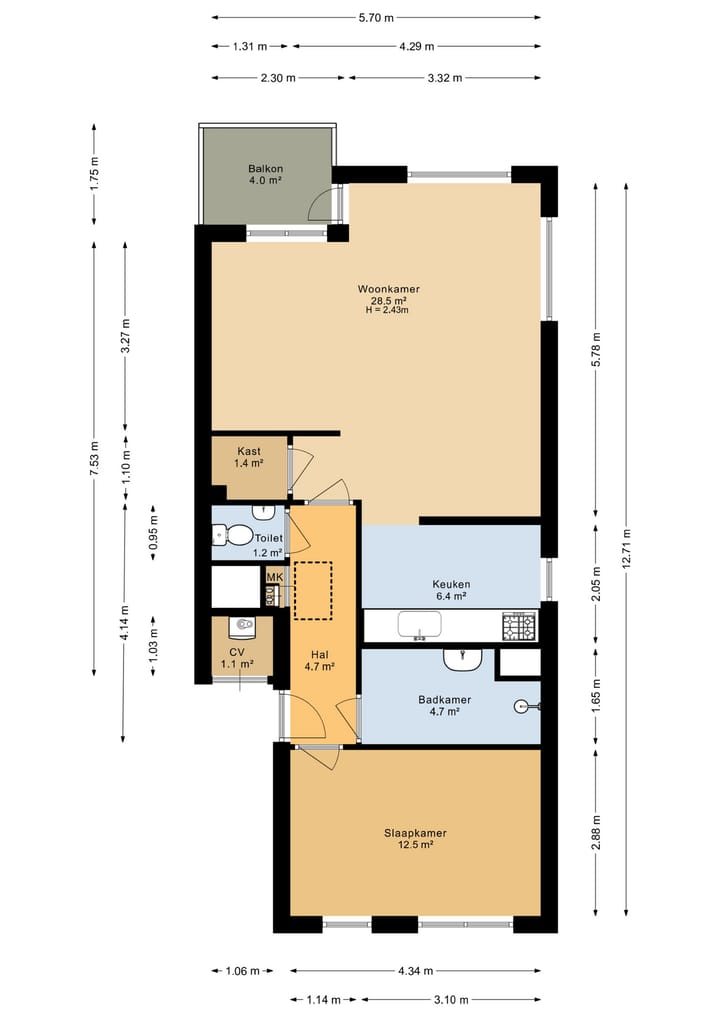
Woon/eetkamer afmeting circa 5.76 x 3.46 m. en 3.22 x 2.24 m. met laminaatvloer, toegang tot het balkon op het zonnige zuiden en in open verbinding met de keuken. De keuken is uitgerust met een eenvoudig keukenblok voorzien van wasemkap. De keuken heeft een afmeting van circa 3.10 x 2.17 m.
Aan de achterzijde is de slaapkamer gelegen met een afmeting van circa 4.32 x 2.93 m. Eveneens met laminaatvloer.
Gedeeltelijk betegelde badkamer met douche, vaste wastafel en aansluiting ten behoeve van de wasautomaat.
Bergzolder:
Vanuit de entree is middels een vlizotrap toegang tot een bergzolder.
Berging:
Op de begane grond is een eigen stenen berging aanwezig.
Parkeren:
Rondom het appartementen complex zijn openbare parkeerplaatsen. Hier is een parkeervergunning vereist.
De kosten voor een parkeervergunning bedraagt thans (2025) circa € 60,-- per jaar voor één auto. Het aanvragen van deze vergunning is voor rekening en risico van eigenaar.
De ligging is op loopafstand van het gezellige centrum met zijn winkelstraten en het overdekt winkelcentrum "Arendshof". Voorts vele restaurants op- en rondom "de Markt" en "de Heuvel" en uitgaansgelegenheden. Voor de rust kunt u vertoeven in de gezellige stadsparken welke eveneens op loopafstand bereikbaar zijn.
Daarnaast zijn ook de uitvalswegen snel en eenvoudig bereikbaar. Oosterhout heeft een gunstige ligging ten opzichte van de A27 (Utrecht-Breda), de A58 (Bergen op Zoom – Eindhoven) en de A59 (Zonzeel – ‘s-Hertogenbosch).
Hartje Breda is binnen een kwartier met de auto of met de bus te bereiken.
Deze informatie is geheel vrijblijvend, uitsluitend voor geadresseerde bestemd en niet bedoeld als aanbod. Ten aanzien van de juistheid van de vermelde informatie kan door makelaarskantoor Biemans B.V. geen aansprakelijkheid worden aanvaard, noch kan aan de vermelde informatie enig recht worden ontleend.
Kenmerken
Overdracht
- Aangeboden sinds
- Aanvaarding
- In overleg
- Vraagprijs
- € 295.000 kosten koper
- Vraagprijs per m²
- € 4.683
- Status
- Beschikbaar
- Bijdrage VvE
- € 175,00 per maand
Bouw
- Soort appartement
- Portiekflat
- Soort bouw
- Bestaande bouw
- Bouwjaar
- 1986
Oppervlakten en inhoud
- Gebruiksoppervlakten
- Wonen
- 63 m²
- Overige inpandige ruimte
- 21 m²
- Gebouwgebonden buitenruimte
- 4 m²
- Externe bergruimte
- 4 m²
- Inhoud
- 306 m³
Indeling
- Aantal kamers
- 1 kamer (1 slaapkamer)
- Aantal badkamers
- 1 badkamer en 1 apart toilet
- Badkamervoorzieningen
- Douche en wastafel
- Aantal woonlagen
- 3 woonlagen en een vliering
- Voorzieningen
- Natuurlijke ventilatie
- Gelegen op
- 3e woonlaag
Energie
- Energielabel
- D
- Isolatie
- Dubbel glas
- Verwarming
- Cv-ketel
- Warm water
- Geiser
- Cv-ketel
- Gas gestookt combiketel, eigendom
Kadastrale gegevens
- OOSTERHOUT S 5154
- Kadastrale kaart
- Eigendomssituatie
- Volle eigendom
Buitenruimte
- Ligging
- Aan rustige weg, in centrum en in woonwijk
- Balkon/dakterras
- Balkon aanwezig
Bergruimte
- Schuur/berging
- Vrijstaande stenen berging
- Voorzieningen
- Elektra
Parkeergelegenheid
- Soort parkeergelegenheid
- Openbaar parkeren en parkeervergunningen
VvE checklist
- Inschrijving KvK
- Nee
- Jaarlijkse vergadering
- Nee
- Periodieke bijdrage
- Nee
- Reservefonds aanwezig
- Nee
- Onderhoudsplan
- Nee
- Opstalverzekering
- Nee
Foto's 34
© 2001-2025 funda

































