Dit huis op Funda: https://www.funda.nl/detail/koop/oosterhout-nb/huis-poolster-35/43895910/

Omschrijving
In de wijk "Dommelbergen" gelegen, in de gewilde sterrenbuurt: tussenwoning met totale nokverhoging en uitgebouwde entree, garage, berging, overkapping, 5 ruime slaapkamers en onderhoudsarme tuin. De woning is gesitueerd in een rustige straat zonder doorgaand verkeer, met voor de deur een speeltuintje. Basisscholen, middelbaar onderwijs, speeltuinen en winkel- en sportvoorzieningen liggen op slechts enkele minuten loopafstand. Ook uitvalswegen zoals de A59 en A27 zijn binnen enkele minuten bereikbaar.
INDELING
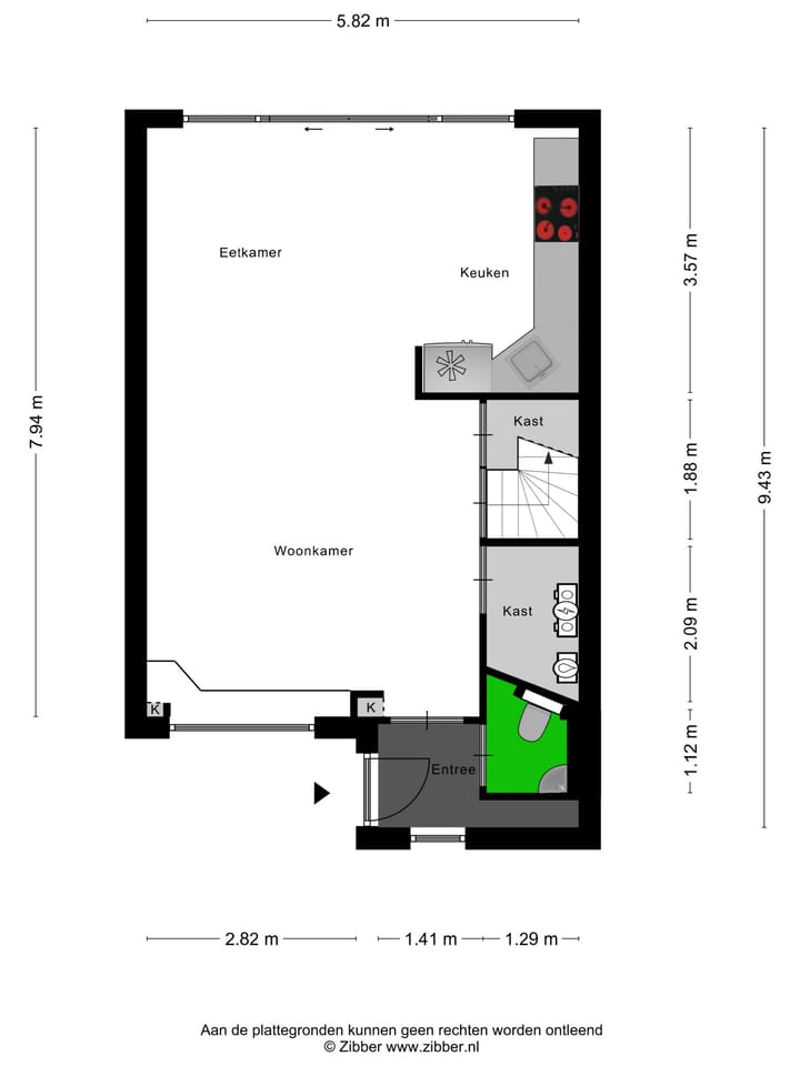
Begane grond
Via de uitgebouwde entree bereikt u de hal. Via hier is de ruime woonkamer bereikbaar. Deze is bijzonder groot en comfortabel, doordat de voormalige hal nu bij de woonkamer is gevoegd.
Via de woonkamer is er toegang tot de meterkast (vervangen in 2022) en trapkast. De wanden in de woonkamer zijn voorzien van glad pleisterwerk. De vloer is voorzien van een massief eiken vloer.
De open keuken aan de achterzijde van de woning is gebouwd in een hoekopstelling. De apparatuur bestaat uit een inductiekookplaat, Amerikaanse koelkast, elektrische oven, afzuigkap, onder- en bovenkasten.
Doorgang naar buiten gaat via een grote dubbele schuifpui. In combinatie met de op zuidoosten georiënteerde tuin maakt dit een zeer prettige overgang van woning naar tuin. De onderhoudsarme tuin is voorzien van bestrating, een overkapping en biedt veel privacy.
Men bereikt de garage (afmeting ca. 5.00m x 6.00m) en berging (afmeting ca. 2.00m x 2.00m) via de tuin.
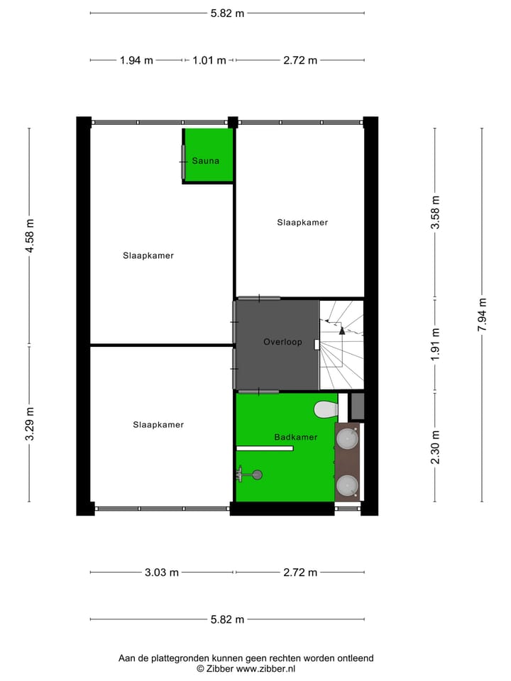
Eerste verdieping:
De overloop geeft toegang tot drie slaapkamers en een karakteristieke badkamer. De overloop is voorzien van een lichtgrijze houten vloer en gestucte wanden.
Slaapkamer I afmeting circa. 13,51m² aan de achterzijde gelegen.
Slaapkamer II afmeting circa. 9,97m² aan de voorzijde gelegen.
Slaapkamer III afmeting circa. 9,74m² aan de achterzijde gelegen.
De karakteristieke badkamer is voorzien van een zwevend toilet, twee wasbakken en een inloop regendouche.
Tweede verdieping:
Deze verdieping kan als volwaardige verdieping worden gezien door de totale nokverhoging en is te bereiken via de overloop met vaste trap. Via de overloop bereikt u de aansluiting voor de wasapparatuur, cv-ketel, berging en twee ruime slaapkamers.
Slaapkamer IV afmeting circa. 10,07m² aan de voorzijde gelegen en is voorzien van opbergruimte achter de knieschotten. Deze slaapkamer is eveneens voorzien van ruime entresol, geschikt als (extra) slaap- of opbergruimte.
Slaapkamer V afmeting circa. 10,07m² aan de achterzijde gelegen en is voorzien van opbergruimte achter de knieschotten. Deze slaapkamer is eveneens voorzien van ruime entresol, geschikt als (extra) slaap- of opbergruimte.
ALGEMEEN:
* Energielabel C
* 5 Ruime Slaapkamers
* Gelegen op een goede/kindervriendelijke locatie
* Ruime garage met veel bergruimte
* Onderhoudsarme achtertuin
* Uitgebouwde entree
* Nokverhoging
Deze presentatie geeft slechts een globale indruk van de werkelijkheid en sfeer van deze ruime tussenwoning. Graag nodigen wij u uit voor een bezichtiging!
Bij verkoop wordt gebruik gemaakt van het model koopovereenkomst vastgesteld door de Nederlandse Vereniging van Makelaars in onroerende goederen NVM, de Consumentenbond en de Vereniging Eigen Huis.
Aan de inhoud van deze brochure en de daarin vermelde gegevens, welke slechts als informatief bedoeld zijn, kunnen geen rechten worden ontleend. Wij houden ons het recht voor om deze brochure te wijzigen en/of aan te passen. Hierover kan niet gereclameerd worden.
Indelingstekeningen en maatvoeringen zijn slechts indicatief, kunnen afwijken van de werkelijke situatie en zijn uitsluitend bedoeld om een indruk te geven van de indeling. De Meetinstructie is gebaseerd op de NEN2580. De Meetinstructie is bedoeld om een meer eenduidige manier van meten toe te passen voor het geven van een indicatie van de gebruiksoppervlakte. De Meetinstructie sluit verschillen in meetuitkomsten niet volledig uit, door bijvoorbeeld interpretatieverschillen, afrondingen of beperkingen bij het uitvoeren van de meting.
Kenmerken
Overdracht
- Laatste vraagprijs
- € 375.000 kosten koper
- Vraagprijs per m²
- € 2.863
- Status
- Verkocht
Bouw
- Soort woonhuis
- Eengezinswoning, tussenwoning
- Soort bouw
- Bestaande bouw
- Bouwjaar
- 1974
Oppervlakten en inhoud
- Gebruiksoppervlakten
- Wonen
- 131 m²
- Overige inpandige ruimte
- 1 m²
- Perceel
- 168 m²
- Inhoud
- 465 m³
Indeling
- Aantal kamers
- 6 kamers (5 slaapkamers)
- Aantal badkamers
- 1 badkamer en 1 apart toilet
- Badkamervoorzieningen
- Sauna, dubbele wastafel, inloopdouche, toilet, en wastafelmeubel
- Aantal woonlagen
- 3 woonlagen
- Voorzieningen
- Mechanische ventilatie, sauna, en TV kabel
Energie
- Energielabel
- C
- Isolatie
- HR-glas
- Verwarming
- Cv-ketel
- Warm water
- Cv-ketel
- Cv-ketel
- Remeha HRE Intergas (gas gestookt combiketel uit 2012, eigendom)
Kadastrale gegevens
- OOSTERHOUT R 6174
- Kadastrale kaart
- Oppervlakte
- 168 m²
Buitenruimte
- Ligging
- In woonwijk
- Tuin
- Achtertuin en voortuin
- Achtertuin
- 75 m² (15,00 meter diep en 5,00 meter breed)
- Ligging tuin
- Gelegen op het zuidoosten bereikbaar via achterom
Garage
- Soort garage
- Vrijstaande stenen garage
- Capaciteit
- 1 auto
- Voorzieningen
- Elektra
Parkeergelegenheid
- Soort parkeergelegenheid
- Openbaar parkeren
Foto's 39
© 2001-2025 funda






































