Dit huis op Funda: https://www.funda.nl/detail/koop/oostvoorne/huis-slotlaan-39/43732864/

Omschrijving
Nabij het dorpscentrum van Oostvoorne in de wijk "Voorhof IV" ligt deze ruime tussenwoning met eigen oprit en fijne tuin. Vermeldenswaardig zijn ondermeer de ruime woonkamer, 3 goede slaapkamers en de ruime studio op de tweede verdieping met aangrenzend dakterras. De volledig geïsoleerde woning is gebouwd in 2001 en heeft 165 m2 eigen grond. Het woonoppervlak is ca. 116 m2. Verwarming is middels c.v. combiketel (Vaillant HR 2016) en de woning heeft 9 zonnepanelen. Er is parkeerplek voor 2 auto's op de eigen oprit. Kortom een fijne gezinswoning op loopafstand van winkels, scholen, openbaar vervoer en bos!
Begane grond
Hal met betegeld toilet met fonteintje, moderne meterkast en trapopgang naar de eerste verdieping.
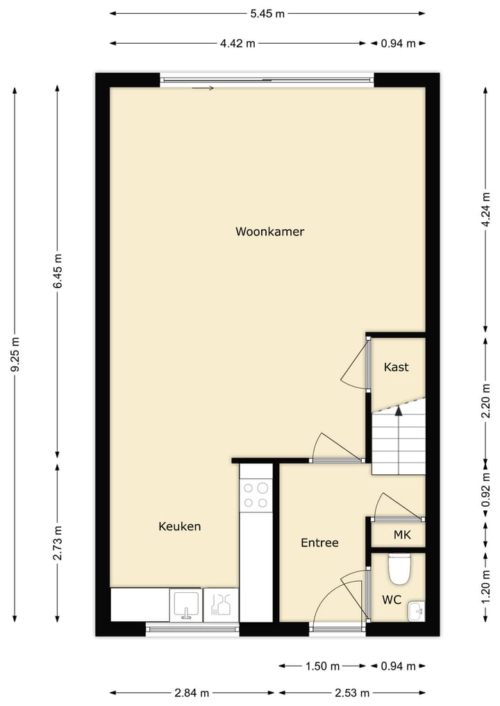
Woonkamer - ca. 6.45 x 5.45 m
Ruime, lichte woonkamer met schuifpui naar de tuin en trapkast. De vloer is v.v. laminaat.
Keuken - ca. 2.84 x 2.73 m
De open keuken in witte hoekopstelling is v.v. een spoelunit, kookplaat, afzuigkap, vaatwasmachine en close-in boiler.
Eerste verdieping
De overloop geeft toegang tot 3 slaapkamers en de badkamer. De gehele verdieping is v.v. laminaatvloer.
Slaapkamer I - ca. 3.83 x 3.32 m
Ruime slaapkamer gelegen aan de voorzijde en voorzien van een vaste kast.
Slaapkamer II - ca. 5.35 x 3.08 m
Slaapkamer gelegen aan de achterzijde. Ook deze kamer heeft een vaste kast.
Slaapkamer III - ca. 4.24 x 2.29 m
Ook deze slaapkamer is gelegen aan de achterzijde.
Badkamer - ca. 2.86 x 2.05 m
De geheel betegelde badkamer in neutrale kleurstelling is v.v. een wastafel, douchecabine, ligbad, 2e toilet, en designradiator.
Tweede verdieping
Studio/ werkkamer - ca. 4.95 x 3.20 m
De ruimte heeft een vaste kast met de opstelplaats voor de CV-ketel, mechanische ventilatie unit en de wasmachineaansluiting. Ideaal als werkplek, hobbyruimte of toch de vierde slaapkamer. Aan de achterzijde is het dakterras bereikbaar.
Dakterras - ca. 33 m2
Betegeld dakterras.
Tuin
De volledige betegelde achtertuin is keurig onderhouden en heeft een royaal terras, houten berging en achterom.
Bijzonderheden:
- ruime tussenwoning met dubbele oprit en ruime slaapkamers;
- bouwjaar 2001, volledig geïsoleerd;
- woonoppervlakte ca. 116 m2;
- perceel eigen grond 165 m2;
- lichte woonkamer v.v. schuifpui;
- open zolder/ studio met vliering;
- verwarming en warmwater middels c.v.-combiketel (Vaillant 2016);
- 9 zonnepanelen;
- gelegen nabij dorpskern met supermarkt, openbaar vervoer en bos.
In de koopovereenkomst wordt de volgende clausule opgenomen;
- niet zelf bewoondclausule.
Wij behartigen de belangen van de verkopende partij. Neem uw eigen aankoopmakelaar mee!
Disclaimer:
Deze informatie is door De Vreij Makelaardij met de nodige zorgvuldigheid samengesteld. De informatie is echter van algemene aard en niet meer dan een uitnodiging om in onderhandeling te treden. Onzerzijds en verkoper wordt echter geen enkele aansprakelijkheid aanvaard door enige onvolledigheid, onjuistheid of anderszins, dan wel de gevolgen daarvan. De meetinstructie is gebaseerd op de NEN2580. De meetinstructie is bedoeld om een meer eenduidige manier van meten toe te passen voor het geven van een indicatie van de gebruiksoppervlakte. De meetinstructie sluit verschillen in meetuitkomsten niet volledig uit, door bijvoorbeeld interpretatieverschillen, afrondingen of beperkingen bij het uitvoeren van de meting. Van toepassing zijn de VBO voorwaarden.
Kenmerken
Overdracht
- Oorspronkelijke vraagprijs
- € 525.000 kosten koper
- Laatste vraagprijs
- € 495.000 kosten koper
- Vraagprijs per m²
- € 4.267
- Status
- Verkocht
Bouw
- Soort woonhuis
- Eengezinswoning, tussenwoning
- Soort bouw
- Bestaande bouw
- Bouwjaar
- 2001
- Soort dak
- Lessenaardak bedekt met pannen
Oppervlakten en inhoud
- Gebruiksoppervlakten
- Wonen
- 116 m²
- Overige inpandige ruimte
- 1 m²
- Gebouwgebonden buitenruimte
- 33 m²
- Externe bergruimte
- 8 m²
- Perceel
- 165 m²
- Inhoud
- 406 m³
Indeling
- Aantal kamers
- 5 kamers (4 slaapkamers)
- Aantal badkamers
- 1 badkamer
- Badkamervoorzieningen
- Douche, ligbad, toilet, en wastafel
- Aantal woonlagen
- 3 woonlagen
- Voorzieningen
- Mechanische ventilatie, schuifpui, en zonnepanelen
Energie
- Energielabel
- A
- Isolatie
- Dakisolatie, dubbel glas, muurisolatie en vloerisolatie
- Verwarming
- Cv-ketel
- Warm water
- Cv-ketel
- Cv-ketel
- Vaillant HR (gas gestookt combiketel uit 2016, eigendom)
Kadastrale gegevens
- OOSTVOORNE D 3171
- Kadastrale kaart
- Oppervlakte
- 165 m²
- Eigendomssituatie
- Volle eigendom
Buitenruimte
- Ligging
- In woonwijk
- Tuin
- Achtertuin en voortuin
- Achtertuin
- 78 m² (13,00 meter diep en 6,00 meter breed)
- Ligging tuin
- Gelegen op het noordwesten bereikbaar via achterom
Bergruimte
- Schuur/berging
- Vrijstaande houten berging
- Voorzieningen
- Elektra
Parkeergelegenheid
- Soort parkeergelegenheid
- Op eigen terrein en openbaar parkeren
Foto's 35
© 2001-2025 funda


































