Dit huis op Funda: https://www.funda.nl/detail/koop/oostzaan/huis-de-haal-72/43093241/

De Haal 721511 AT OostzaanDe Haal en De Heul en Noordeinde
€ 3.975.000 k.k.
BlikvangerSfeervol landhuis, met zwembad,gastenverblijf op 15 min van Amsterdam
Omschrijving
Wonen in de rust. Dit sfeervolle landhuis, gebouwd in 2000 is gelegen in het natuurgebied het Twiske, 15 minuten rijden naar het centrum van Amsterdam. De perfecte harmonie tussen de natuurlijke omgeving en moderne architectuur komt hier samen.
Binnen en buiten lopen naadloos in elkaar over, met twee beschutte terrassen die uitzicht bieden op een zwembad welke, dankzij zijn natuurlijke kleur, opgaat in het groen van de tuin. De luxe van het woonhuis wordt benadrukt door de royale leefkeuken, een verwarmde veranda, vijf sfeervolle open haarden en de fitnessruimte met bioscoop. Het landhuis is uitgebreid met een zelfvoorzienend bijgebouw, perfect geschikt als au-pair- of gastenverblijf.
De begane grond biedt een overvloed aan ruimte en comfort. Bij binnenkomst via de ruime entree vindt u toegang tot de woonkamer die overloopt in de royale leefkeuken, met grote eettafel bij de openhaard. Zowel de keuken als de woonkamer zijn voorzien van openslaande deuren naar het terras met uitzicht over de infinity pool met overloop in de groene weide.
De begane grond biedt een speelkamer voor de kinderen en een praktische wasruimte. Verder vindt u hier een werkkamer voor thuiswerk of studie. De master bedroom is voorzien van twee inloopkasten en een luxe uitgeruste badkamer. Ook deze slaapkamer heeft openslaande deuren naar het terras. Alle vertrekken op de begane grond bieden een adembenemend vrij uitzicht over de rustige groene weides.
De gekozen kleuren en materialen, zoals hout en natuursteen, zijn zorgvuldig geselecteerd om de serene sfeer van buiten naar binnen te brengen.
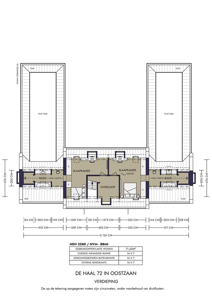
Op de eerste verdieping bevinden zich twee ruime slaapkamers, elk met een eigen badkamer. Daarnaast zijn er twee studeerkamers die flexibel gebruikt kunnen worden als kantoor, hobbyruimte of extra slaapkamers. In het souterrain vindt u een fitnessruimte en een speelruimte die ook als recreatieruimte gebruikt kan worden naast de wijnkelder.
De tuin is ontworpen door de bekende landschapsarchitect Piet Oudolf. Oudolf heeft met grote zorgvuldigheid nagedacht over het gebruik van groen en hoe dit door de seizoenen wordt beïnvloed. Deze prachtige tuin is dan ook geselecteerd als een van de 80 mooiste tuinen ter wereld in het BBC-programma van Monty Don.
Het huis is voorzien van moderne gemakken zoals een geavanceerd domotica systeem, beton-kernverwarming en koeling met aardwarmte, deze is per ruimte instelbaar. Daarnaast is er een volledig geïntegreerd geluidssysteem door het hele huis.
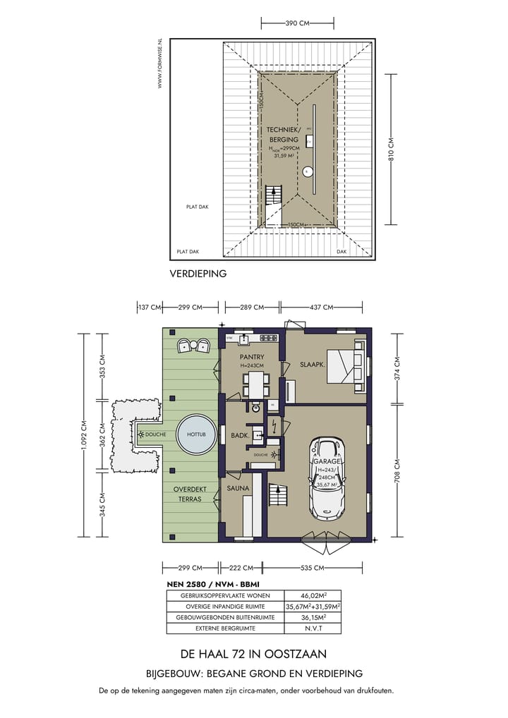
Het volledig zelfvoorzienende gastenverblijf biedt een eigen keuken, sauna, stoomdouche en Hot tub. Vanzelfsprekend is er ruime parkeergelegenheid op eigen terrein en tevens een afsluitbare garage in het gastenverblijf.
In het botenhuis is plek voor een sloep om heerlijk naar Amsterdam te varen.
Bijzonderheden:
- Vrijstaand modern luxe woonhuis
- Ontworpen en gebouwd door Studio Piet Boon
- 15 minuten rijden vanaf Amsterdam
- Zwembad, gastenverblijf, hot tub, fitnessruimte en sauna
- Carport en parkeergarage
- Botenhuis voor een sloep
-- ENGLISH TEXT BELOW
Living in tranquillity. This attractive country house, built in 2000, is located in the Twiske nature reserve, a 15-minute drive to the centre of Amsterdam. The perfect harmony between natural surroundings and modern architecture comes together here.
Inside and outside blend seamlessly, with two sheltered terraces overlooking a swimming pool which, thanks to its natural colour, blends into the green of the garden. The luxury of the house is emphasised by the spacious kitchen, a heated veranda, five cosy fireplaces and the gym with cinema. The mansion has been extended with a self-contained outbuilding, perfectly suited as au-pair or guest accommodation.
The ground floor offers an abundance of space and comfort. Upon entering through the spacious entrance hall, you will find access to the living room, which flows into the spacious living kitchen, with large dining table by the fireplace. Both the kitchen and the living room have French doors to the terrace overlooking the infinity pool with overflow into the green meadow.
The ground floor offers a children's playroom and a practical laundry room. Furthermore, you will find a study for homework or study. The master bedroom has two walk-in closets and a luxuriously equipped bathroom. This bedroom also has French doors to the terrace. All rooms on the ground floor offer breathtaking unobstructed views over the peaceful green meadows.
The chosen colours and materials, such as wood and natural stone, have been carefully selected to bring the serene atmosphere of the outdoors inside.
On the first floor are two spacious bedrooms, each with its own bathroom. In addition, there are two study rooms that can be used flexibly as offices, hobby rooms or additional bedrooms. In the basement you will find a gym and a games room that can also be used as a recreation room in addition to the wine cellar.
The garden was designed by renowned landscape architect Piet Oudolf. Oudolf has thought with great care about the use of greenery and how it is influenced by the seasons. Consequently, this beautiful garden was selected as one of the 80 most beautiful gardens in the world in Monty Don's BBC programme. The house is equipped with modern conveniences such as an advanced home automation system, concrete core heating and cooling with geothermal heat, which is adjustable per room. There is also a fully integrated sound system throughout the house.
The fully self-sufficient guesthouse offers its own kitchen, sauna, steam shower and hot tub. Naturally, there is ample parking space on site and also a lockable garage in the guest house.
The boathouse has space for a nice open boat to enjoy sailing to Amsterdam.
Details:
- Detached modern luxury residence
- Designed and built by Studio Piet Boon
- 15-minute drive from Amsterdam
- Swimming pool, guest house, hot tub, gym and sauna
- Carport and parking garage
- Boathouse for a boat
Kenmerken
Overdracht
- Aangeboden sinds
- Aanvaarding
- In overleg
- Vraagprijs
- € 3.975.000 kosten koper
- Vraagprijs per m²
- € 9.510
- Status
- Beschikbaar
Bouw
- Soort woonhuis
- Landhuis, vrijstaande woning
- Soort bouw
- Bestaande bouw
- Bouwjaar
- 2001
- Soort dak
- Zadeldak
Oppervlakten en inhoud
- Gebruiksoppervlakten
- Wonen
- 418 m²
- Overige inpandige ruimte
- 88 m²
- Gebouwgebonden buitenruimte
- 195 m²
- Externe bergruimte
- 27 m²
- Perceel
- 10.000 m²
- Inhoud
- 1.463 m³
Indeling
- Aantal kamers
- 10 kamers (5 slaapkamers)
- Aantal badkamers
- 4 badkamers en 1 apart toilet
- Badkamervoorzieningen
- Sauna, dubbele wastafel, 4 inloopdouches, 3 ligbaden, 4 toiletten, vloerverwarming, 4 wastafelmeubels, en 3 wastafels
- Aantal woonlagen
- 4 woonlagen
- Voorzieningen
- Alarminstallatie, domotica, mechanische ventilatie, sauna, TV kabel, zonnepanelen, en zwembad
Energie
- Energielabel
- Isolatie
- Dubbel glas en volledig geïsoleerd
- Verwarming
- Aardwarmte, open haard en gehele vloerverwarming
- Warm water
- Aardwarmte
Kadastrale gegevens
- OOSTZAAN L 412
- Kadastrale kaart
- Oppervlakte
- 10.000 m²
- Eigendomssituatie
- Volle eigendom
Buitenruimte
- Ligging
- Aan park, aan rustige weg, aan water, in bosrijke omgeving, landelijk gelegen, open ligging en vrij uitzicht
- Tuin
- Achtertuin en tuin rondom
Bergruimte
- Schuur/berging
- Inpandig
- Voorzieningen
- Elektra en stromend water
Garage
- Soort garage
- Carport
- Isolatie
- Dubbel glas en volledig geïsoleerd
Parkeergelegenheid
- Soort parkeergelegenheid
- Op afgesloten terrein en op eigen terrein
Foto's 45
Plattegronden 5
© 2001-2026 funda

















































