Dit huis op Funda: https://www.funda.nl/detail/koop/ophemert/huis-de-ganzenhof-20/89427293/

Omschrijving
Welkom aan De Ganzenhof 20! Deze fijne eengezinswoning biedt verrassend veel ruimte, een heerlijke tuin op het noordwesten en een rustige ligging in een kindvriendelijke wijk. Met drie volwaardige slaapkamers, een ruime zolderverdieping en een praktische bijkeuken is dit de ideale gezinswoning. En dat alles op korte afstand van natuur, uitvalswegen én de Waal.
Omgeving en uitvalswegen
De woning ligt in een rustige hof in Ophemert, een gemoedelijk dorp in de Betuwe, met basisschool, supermarkt en sportfaciliteiten op loopafstand. Voor meer voorzieningen ben je zo in Tiel of Geldermalsen. Via de N833 en N320 zijn de A15 en A2 uitstekend bereikbaar. Je bent binnen 25 minuten in ’s-Hertogenbosch of Utrecht. De landelijke omgeving is perfect voor wandel- en fietstochten langs de Waal en door de omliggende natuur.
kenmerken:
Woonoppervlakte: 91 m2
Perceel: 140 m2
Energielabel B
3 Slaapkamers
Indeling van de woning
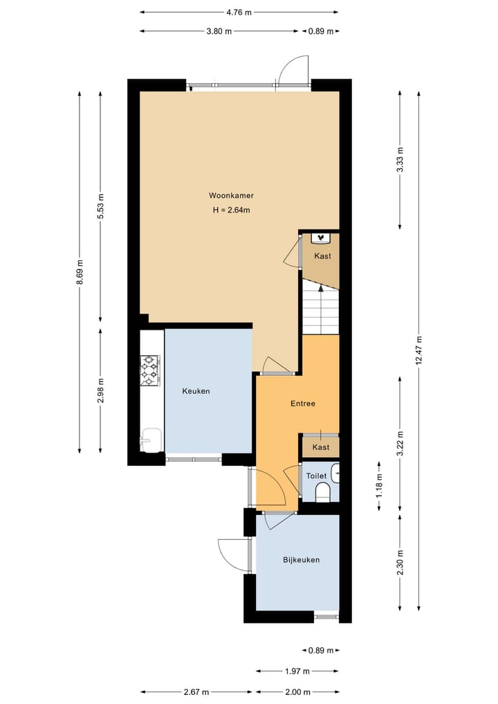
Begane grond
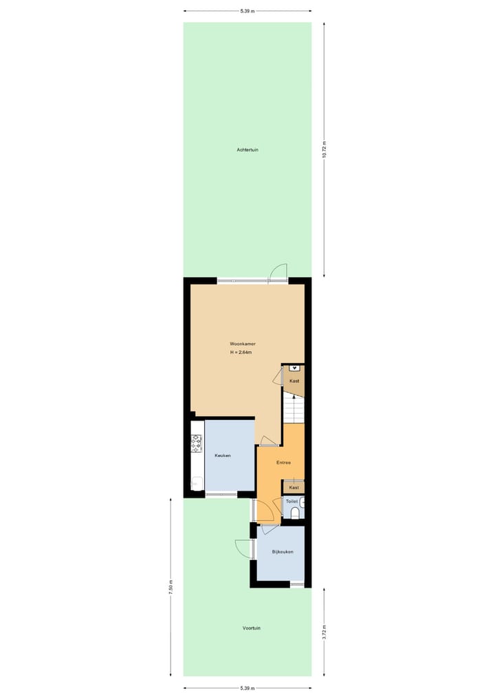
Via de voortuin bereik je de entree. In de hal bevinden zich het toilet, een trapkast en de trapopgang. De doorzonwoonkamer is heerlijk licht en kijkt uit op de diepe achtertuin. De keuken bevindt zich aan de voorzijde van de woning, met directe toegang tot de praktische bijkeuken. Hier is ruimte voor wasmachine, voorraad en extra bergruimte. De tuin is via de woonkamer bereikbaar en is diep, zonnig en voorzien van een achterom.
Eerste verdieping
Op de eerste verdieping bevinden zich drie goed bemeten slaapkamers. De grootste slaapkamer ligt aan de voorzijde van de woning en biedt voldoende ruimte voor een tweepersoonsbed en een grote kledingkast. De twee overige slaapkamers bevinden zich aan de achterzijde en zijn ideaal te gebruiken als kinderkamer, werkkamer of logeerkamer. Dankzij de rechte gevels is er nauwelijks ruimteverlies en voelt elke kamer prettig aan. De badkamer is functioneel ingericht en beschikt over een douche, wastafel en tweede toilet. Via de centrale overloop heb je toegang tot alle vertrekken.
Zolderverdieping
Een vaste trap leidt naar de ruime zolder met een dakraam en opstelling voor de cv-ketel en wasapparatuur. Deze ruimte is uitermate geschikt als vierde slaapkamer, werkkamer of hobbyruimte.
Buiten
Zowel de voor- als achtertuin zijn verzorgd aangelegd. De achtertuin biedt volop privacy en ruimte om te genieten van het buitenleven. Dankzij de ligging op het noordoosten heb je in de middag en avond zon.
-------
Deze informatie is door ons met de nodige zorgvuldigheid samengesteld. Onzerzijds wordt echter geen enkele aansprakelijkheid aanvaard voor enige onvolledigheid, onjuistheid of anderszins, dan wel de gevolgen daarvan. Alle opgegeven maten en oppervlakten zijn indicatief.
Toelichtingsclausule NEN2580: De Meetinstructie is gebaseerd op de NEN2580. De Meetinstructie is bedoeld om een meer eenduidige manier van meten toe te passen voor het geven van een indicatie van de gebruiksoppervlakte. De Meetinstructie sluit verschillen in meetuitkomsten niet volledig uit, door bijvoorbeeld interpretatieverschillen, afrondingen of beperkingen bij het uitvoeren van de meting.
Kenmerken
Overdracht
- Laatste vraagprijs
- € 350.000 kosten koper
- Vraagprijs per m²
- € 3.846
- Status
- Verkocht
Bouw
- Soort woonhuis
- Eengezinswoning, tussenwoning
- Soort bouw
- Bestaande bouw
- Bouwjaar
- 1984
- Soort dak
- Zadeldak bedekt met pannen
Oppervlakten en inhoud
- Gebruiksoppervlakten
- Wonen
- 91 m²
- Overige inpandige ruimte
- 18 m²
- Perceel
- 140 m²
- Inhoud
- 391 m³
Indeling
- Aantal kamers
- 4 kamers (3 slaapkamers)
- Aantal badkamers
- 1 badkamer en 1 apart toilet
- Badkamervoorzieningen
- Inloopdouche, toilet, wastafel, en wastafelmeubel
- Aantal woonlagen
- 2 woonlagen en een zolder
- Voorzieningen
- Dakraam, natuurlijke ventilatie, en TV kabel
Energie
- Energielabel
- B
- Isolatie
- Dubbel glas
- Verwarming
- Cv-ketel
- Warm water
- Cv-ketel
- Cv-ketel
- Remeha Tzerra 28C CW4 (gas gestookt combiketel uit 2021, eigendom)
Kadastrale gegevens
- OPHEMERT C 1082
- Kadastrale kaart
- Oppervlakte
- 140 m²
- Eigendomssituatie
- Volle eigendom
Buitenruimte
- Ligging
- Aan rustige weg en in woonwijk
- Tuin
- Achtertuin en voortuin
- Achtertuin
- 58 m² (10,72 meter diep en 5,39 meter breed)
- Ligging tuin
- Gelegen op het noordoosten bereikbaar via achterom
Parkeergelegenheid
- Soort parkeergelegenheid
- Openbaar parkeren
Foto's 40
© 2001-2025 funda







































