Dit huis op Funda: https://www.funda.nl/detail/koop/oss/huis-medaille-19/43115837/

BlikvangerVrijstaande droomwoning 250m², gasloos en naar wens af te maken!
Omschrijving
Prachtige splinternieuwe vrijstaande gasloze woning van meer dan 250m2 ( incl. garage) gelegen in jonge woonwijk nabij vele voorzieningen
Een vrijstaande villa die nog volledig naar eigen smaak kan worden ingericht: dát is wat deze moderne gezinswoning gebouwd in 2024 te bieden heeft. Met een royale benedenverdieping en maar liefst vier slaapkamers is er ruimte in overvloed. De woning is strak afgewerkt met oog voor stijl en detail, maar wacht nog op de persoonlijke finishing touch van de nieuwe bewoners. Denk aan het kiezen van de vloeren en een keuken, waardoor je hier écht je eigen droomhuis kunt creëren.
Wat direct opvalt zijn de hoogwaardige keuzes die al gemaakt zijn. Zo heeft de woning een gloednieuwe houten voordeur, een stijlvolle eiken trap, binnendeuren in staal-look en donkere kozijnen die voor een luxe uitstraling zorgen. De woonkamer met dubbele schuifpui biedt veel lichtinval en een prachtig zicht op de strakke achtertuin. Deze tuin is recent aangelegd met een fris gazon, een ruim terras, een overkapping met twee lichtstraten en een nieuw hekwerk. Bovendien is de woning gunstig gelegen op een hoek, waardoor je geniet van extra privacy en een vrij uitzicht.
De woning maakt deel uit van de moderne wijk Mettegeupel aan de rand van Oss. Dit is een rustige en kindvriendelijke buurt met veel groen en volop voorzieningen in de directe omgeving. Op loop- en fietsafstand vind je basisscholen, sportverenigingen en een groot sportcomplex. Het gezellige centrum van Oss ligt op slechts enkele minuten afstand en dankzij de goede verbinding naar de snelwegen zijn steden als Eindhoven, Nijmegen en ’s-Hertogenbosch ook uitstekend bereikbaar.
Pluspunten
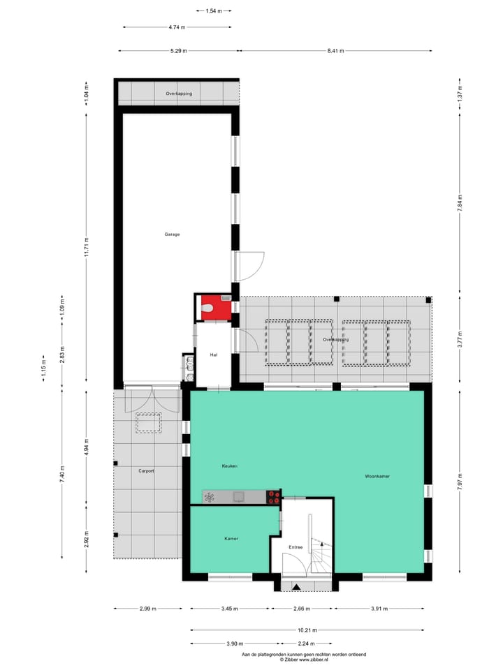
+ Parkeren doe je gemakkelijk op eigen oprit onder de carport met lichtkoepel. Daarnaast is parkeren mogelijk in de inpandige garage met openslaande garagedeuren in dezelfde stijl als de voordeur.
+ De entree maakt direct indruk met een eiken trap voorzien van trapverlichting. Vanuit de hal bereik je de praktische kantoorruimte én de royale woonkamer met open keuken.
+ De L-vormige woonkamer is erg ruim en licht te noemen, heeft een dubbele schuifpui naar de tuin en is voorzien van spotverlichting.
+ Daarnaast is hier alle ruimte voor het plaatsen van een droomkeuken met uitzicht op de tuin. Er zijn reeds diverse voorbereidingen getroffen voor onder andere een kookeiland.
+ De moderne toiletruimte met wandtoilet en fonteintje vind je in het halletje aan de achterzijde direct naast de inpandige garage.
+ De eerste verdieping bestaat uit de overloop, drie slaapkamers en een aparte waskamer, de luxe badkamer en een separate toiletruimte met wandtoilet en fonteintje.
+ De stijlvolle badkamer is compleet afgewerkt met een vrijstaand ligbad, een ruime inloopdouche met sunshower en een badkamermeubel met dubbele wastafel.
+ Ook de tweede verdieping is met een vaste trap bereikbaar. Hier heb je de optie voor het maken van een royale vierde slaapkamer met dakraam en daarnaast bevindt zich een enorme bergruimte/technischeruimte.
+ De tuin is strak aangelegd en voorzien van een groen gazon, terras, overkapping met twee lichtstraten en nieuw hekwerk met een directe achterom.
Bijzonderheden
+ De woning is volledig geïsoleerd (dak, muren, vloeren, triple glas) en voorzien van energielabel A+++.
+ De woning is uitgerust met aardwarmtepomp.
+ De woning is uitgerust met plafond koeling is de verdiepingsvloeren.
+ De gehele begane grond ( incl. garage) en 1e verdieping zijn voorzien van vloerverwarming.
+ De woning beschikt over 24 zonnepanelen.
+ De kozijnen zijn voorzien van alarmsensoren.
+ De woning is afgewerkt met hoogwaardige materialen.
+ De woning beschikt over zowel een carport als een zeer royle garage.
+ De woning is reeds voorzien van bedrading ten behoeve van plaatsen van camera's.
Aanvaarding
In nader overleg.
Kenmerken
Overdracht
- Aangeboden sinds
- Aanvaarding
- In overleg
- Vraagprijs
- € 925.000 kosten koper
- Vraagprijs per m²
- € 4.512
- Status
- Verkocht onder voorbehoud
Bouw
- Soort woonhuis
- Herenhuis, vrijstaande woning
- Soort bouw
- Bestaande bouw
- Bouwjaar
- 2024
- Soort dak
- Schilddak bedekt met pannen
Oppervlakten en inhoud
- Gebruiksoppervlakten
- Wonen
- 205 m²
- Overige inpandige ruimte
- 49 m²
- Gebouwgebonden buitenruimte
- 60 m²
- Perceel
- 426 m²
- Inhoud
- 944 m³
Indeling
- Aantal kamers
- 7 kamers (4 slaapkamers)
- Aantal badkamers
- 1 badkamer en 2 aparte toiletten
- Badkamervoorzieningen
- Dubbele wastafel, inloopdouche, ligbad, en wastafelmeubel
- Aantal woonlagen
- 3 woonlagen
- Voorzieningen
- Alarminstallatie, balansventilatie, dakraam, mechanische ventilatie, rolluiken, TV kabel, en zonnepanelen
Energie
- Energielabel
- A+++
- Isolatie
- Dakisolatie, muurisolatie, vloerisolatie en volledig geïsoleerd
- Verwarming
- Gehele vloerverwarming en warmtepomp
- Warm water
- Aardwarmte en elektrische boiler
Kadastrale gegevens
- OSS A 5235
- Kadastrale kaart
- Oppervlakte
- 426 m²
- Eigendomssituatie
- Volle eigendom
Buitenruimte
- Ligging
- Aan rustige weg en in woonwijk
- Tuin
- Achtertuin, voortuin en zijtuin
- Achtertuin
- 151 m² (13,11 meter diep en 11,54 meter breed)
- Ligging tuin
- Gelegen op het noordoosten bereikbaar via achterom
Garage
- Soort garage
- Carport, garage met carport en parkeerplaats
- Capaciteit
- 3 auto's
- Voorzieningen
- Elektra
- Isolatie
- Dakisolatie, dubbel glas, muurisolatie, vloerisolatie en volledig geïsoleerd
Parkeergelegenheid
- Soort parkeergelegenheid
- Op eigen terrein en openbaar parkeren
Foto's 40
© 2001-2025 funda







































