Dit huis op Funda: https://www.funda.nl/detail/koop/ossendrecht/huis-molenstraat-6/43797403/

Omschrijving
De sfeervolle halfvrijstaande woning met berging, overkapping en 332 m² grond is centraal gelegen in het dorp Ossendrecht. De fraaie en ruime achtertuin op het zuidwesten biedt volop privacy.
De diverse kleinschalige voorzieningen van Ossendrecht, waaronder sportaccommodaties, huisartsenpraktijk, bibliotheek, basisschool, kinderopvang, supermarkten en enkele kleine winkeltjes, zijn in de directe nabijheid. De uitgebreide voorzieningen van Hoogerheide en Bergen op Zoom zijn binnen respectievelijk 5 en 15 autominuten te bereiken. Ossendrecht heeft een goede bereikbaarheid door de ligging nabij de N289 en de A4/ A58. De steden in de omgeving zoals Antwerpen, Goes, Roosendaal, Breda en Rotterdam zijn prima bereikbaar.
Het oorspronkelijke bouwjaar van de woning is omstreeks 1920 (omstreeks 1986 aan de achterzijde uitgebouwd). De woning heeft een gedegen traditionele bouwconstructie, gedeeltelijk betonnen (begane grond), gedeeltelijk houten (eerste en tweede verdieping) vloeren, stenen buitengevels en zadeldak gedekt met pannen. De woning is voorzien van muur- en dakisolatie en houten kozijnen met dubbele beglazing (gedeeltelijk HR++).
De woning heeft een inhoud van circa 385 m³ en een woonoppervlakte van circa 115 m².
De halfvrijstaande woning wordt gekenmerkt door de lichte en sfeervolle woonkamer met schouw met sierkachel, dubbele openslaande tuindeuren en niveauverschil, de dichte keuken met keukeninrichting in hoekopstelling, de recente badkamer en praktisch bijkeuken in het souterrain, de drie slaapkamers op de eerste verdieping, de ruime berging in de achtertuin, de sfeervolle, ruime en privacy biedende achtertuin op het zuidwesten met fraaie houten overkapping, terras, vijverpartij, gazon, plantenborders en achterom en de centrale ligging.
Indeling
Begane grond: de hal/ entree aan de voorzijde van de woning is vernieuwd in 2022 en heeft een tegelvloer, spachtelputz wanden, stucwerk plafond met sierlijsten en niveauverschil en biedt toegang tot de moderne meterkast (9 groepen inclusief kookgroep, 2 aardlekschakelaars), de woonkamer, de trapkast, de toiletruimte, de kastruimte, de dichte keuken, de inbouwkast, het souterrain en de trapopgang naar de eerste verdieping.
De lichte en sfeervolle woonkamer (circa 36,5 m²) heeft een laminaat vloer, spachtelputz wanden, gedeeltelijk panelen, gedeeltelijk stucwerk plafond en niveauverschil met drie treden. Het lagere zitgedeelte aan de voorzijde van de woning heeft een schouw met sierkachel. Het hogere en tuingerichte eetgedeelte is voorzien van dubbele openslaande tuindeuren. De woonkamer biedt zowel aan de voor- als achterzijde toegang tot de hal/ entree.
De moderne toiletruimte (vernieuwd in 2022) heeft een tegelvloer, gedeeltelijk betegelde, gedeeltelijk stucwerk wanden en stucwerk plafond en is ingericht met een hangtoilet.
De kastruimte (circa 2 m²) heeft een laminaat vloer, gedeeltelijk betegelde, gedeeltelijk behang wanden en stucwerk plafond en is voorheen in gebruik geweest als badkamer.
De dichte keuken (circa 9,5 m²) aan de achterzijde van de woning heeft een laminaat vloer, gedeeltelijk betegelde, gedeeltelijk spachtelputz wanden en stucwerk plafond met spotlights. De keuken is voorzien van een keukeninrichting in hoekopstelling en met kastenwand met natuurstenen aanrechtblad, spoelbak, losstaand 5-pits gasfornuis met oven, RVS afzuigkap, magnetron, koelkast en vaatwasser. In de kastenwand is de CV-installatie (Intergas, bouwjaar 2010) opgesteld. De dichte keuken biedt toegang tot de fraaie houten overkapping en de achtertuin.
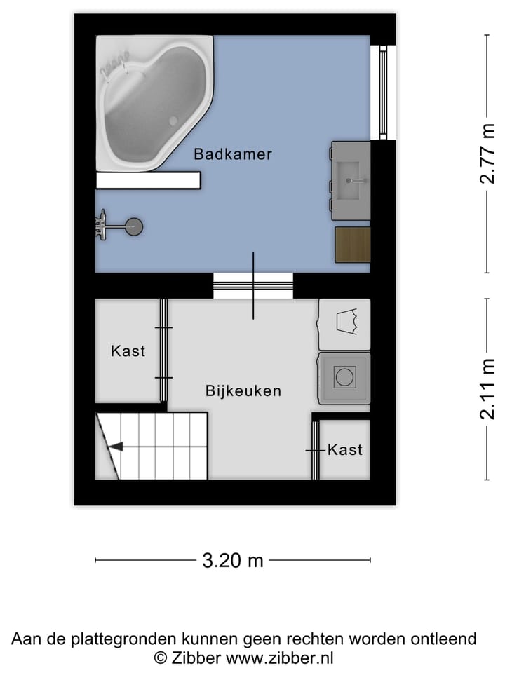
Souterrain: recente en moderne bijkeuken (circa 7 m², stahoogte circa 1,85 meter) met tegelvloer, betegelde wanden, kunststof panelen plafond, kastenwand met opstelplaats voor een (extra) koel- en/ of vrieskast, inbouwkast en de aansluitingen voor de wasmachine en droger. De moderne bijkeuken biedt toegang tot de moderne badkamer.
De recente en moderne badkamer (ruim 4 m², stahoogte circa 1,94 meter) heeft een tegelvloer, betegelde wanden, kunststof panelen plafond met spotlights en mechanische ventilatie en is ingericht met een badkamermeubel met wastafel, ligbad met jetstreams, ruime inloopdouche en designradiator.
In het souterrain is een dompelpomp aanwezig.
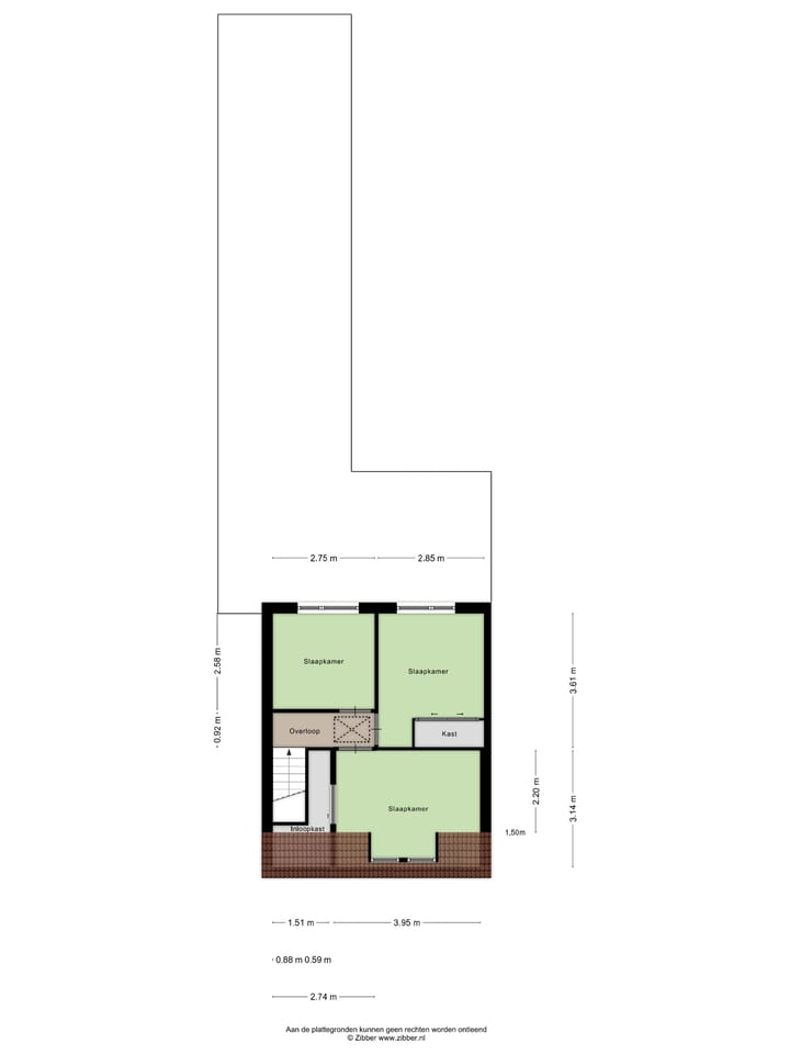
Eerste verdieping: de overloop is voorzien van een laminaat vloer, spachtelputz wanden en gipsplaten plafond en biedt toegang tot de drie slaapkamers en middels een vlizotrap de bergzolder.
De eerste slaapkamer (circa 12 m²) aan de voorzijde van de woning heeft een laminaat vloer, gedeeltelijk stucwerk, gedeeltelijk behang wanden, stucwerk plafond, dakkapel, bergruimte onder het schuine dakvlak en middels een schuifdeur bereikbare inloopkast.
De tweede slaapkamer (ruim 10 m²) aan de achterzijde van de woning heeft een laminaat vloer, behang wandafwerking, gipsplaten plafond en kastenwand met schuifdeuren.
De derde slaapkamer (circa 7 m²) aan de achterzijde van de woning heeft een laminaat vloer, behang wandafwerking en gipsplaten plafond.
Tweede verdieping: middels vlizotrap bereikbare bergzolder met houten vloer en de dakconstructie in het zicht.
Tuin en verdere inrichting
De sfeervolle en privacy biedende achtertuin op het zuidwesten is voorzien van een terras, sierbestrating, fraaie houten overkapping, stenen berging, houtopslag, siergrind, gazon, plantenborders, vijverpartij en achterom.
De fraaie houten overkapping (circa 25 m²) tussen de keuken en de stenen berging heeft een tegelvloer, plat dak met EPDM dakbedekking en wateraansluiting. Vanuit deze houten overkapping kan er volop genoten worden van het buitenleven.
De ruime stenen berging (circa 15 m²) heeft een tegelvloer, stenen gevels (aan de buitenzijde sfeervol gepotdekseld) en lessenaarsdak gedekt met pannen en is voorzien van elektriciteit. Achter de stenen berging is een kleine houten overkapping (ruim 3 m²) gesitueerd.
Bijzonderheden
- Gunstig gelegen sfeervolle halfvrijstaande woning;
- Lichte en sfeervolle woonkamer met schouw met sierkachel, dubbele openslaande tuindeuren en niveauverschil;
- Dichte keuken met keukeninrichting in hoekopstelling en kastenwand;
- Recente, moderne en complete badkamer en praktische bijkeuken in het souterrain;
- Drie slaapkamers op de eerste verdieping;
- De woning is voorzien van muur- en dakisolatie en houten kozijnen met dubbele beglazing (gedeeltelijk HR++);
- De woning is voorzien van een glasvezelaansluiting;
- Het buitenschilderwerk heeft in 2023/ 2024 plaats gevonden;
- Sfeervolle en privacy biedende achtertuin op het zuidwesten met terras, fraaie houten overkapping, ruime stenen berging, gazon, plantenborders, vijverpartij, houtopslag en achterom;
- De stenen berging heeft een oppervlakte van circa 15 m²;
- Centrale ligging, nabij voorzieningen en uitvalswegen;
- Bij verkoop zal een ouderdomsclausule en asbestclausule in de koopovereenkomst worden opgenomen;
- Om een goede indruk te krijgen van de woning is een bezichtiging aan te bevelen!
Kenmerken
Overdracht
- Laatste vraagprijs
- € 325.000 kosten koper
- Vraagprijs per m²
- € 2.826
- Status
- Verkocht
Bouw
- Soort woonhuis
- Eengezinswoning, halfvrijstaande woning
- Soort bouw
- Bestaande bouw
- Bouwjaar
- 1920
- Soort dak
- Zadeldak bedekt met pannen
Oppervlakten en inhoud
- Gebruiksoppervlakten
- Wonen
- 115 m²
- Gebouwgebonden buitenruimte
- 25 m²
- Externe bergruimte
- 15 m²
- Perceel
- 332 m²
- Inhoud
- 385 m³
Indeling
- Aantal kamers
- 4 kamers (3 slaapkamers)
- Aantal badkamers
- 1 badkamer en 1 apart toilet
- Badkamervoorzieningen
- Inloopdouche, ligbad, en wastafelmeubel
- Aantal woonlagen
- 2 woonlagen, een zolder, en een kelder
- Voorzieningen
- Glasvezelkabel
Energie
- Energielabel
- D
- Isolatie
- Dakisolatie, dubbel glas, HR-glas en muurisolatie
- Verwarming
- Cv-ketel
- Warm water
- Cv-ketel
- Cv-ketel
- Intergas (gas gestookt combiketel uit 2010, eigendom)
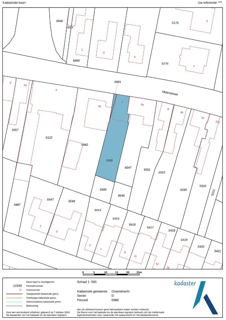
Kadastrale gegevens
- OSSENDRECHT D 5988
- Kadastrale kaart
- Oppervlakte
- 325 m²
- Eigendomssituatie
- Volle eigendom
- OSSENDRECHT D 6981
- Kadastrale kaart
- Oppervlakte
- 7 m²
- Eigendomssituatie
- Volle eigendom
Buitenruimte
- Ligging
- In centrum
- Tuin
- Achtertuin
- Achtertuin
- 221 m² (26,00 meter diep en 8,50 meter breed)
- Ligging tuin
- Gelegen op het zuidwesten bereikbaar via achterom
Bergruimte
- Schuur/berging
- Vrijstaande stenen berging
- Voorzieningen
- Elektra
Parkeergelegenheid
- Soort parkeergelegenheid
- Openbaar parkeren
Foto's 45
© 2001-2025 funda












































