
Omschrijving
Welkom in een van de meest energiezuinige woningen in de regio, gelegen in het leuke dorp Oud-Alblas. Deze nieuwbouw woning is niet alleen modern, maar ook ontzettend duurzaam. Dankzij de geavanceerde bodemwarmtepomp ben je verzekerd van een comfortabele temperatuur, het hele jaar door. In de winter geniet je van vloerverwarming in elk vertrek, terwijl de zomermaanden koel blijven dankzij de vloerkoeling. Daarnaast is de woning voorzien van maar liefst 11 zonnepanelen. Dit resulteert in een indrukwekkend energielabel A+++. De woning is in 2021 gebouwd en biedt daarmee de voordelen van recente bouw, in een gebied waar weinig nieuwbouw te vinden is. Het is een unieke kans om te wonen in een duurzame en moderne woning met alle gemakken van vandaag. Je komt binnen via een nette hal die toegang biedt tot een luxe toilet. De tuingerichte woonkamer geniet van veel lichtinval, met ramen tot de vloer. Het is een fijne ruimte waar je heerlijk kunt ontspannen. De ruimte biedt daarnaast de mogelijkheid om een aanbouw te plaatsen, mocht je behoefte hebben aan extra vierkante meters. De tuin is groot genoeg voor jouw wensen. De moderne keuken is voorzien van diverse inbouwapparatuur en biedt een leuk uitzicht. Op de eerste verdieping vind je een overloop die toegang biedt tot drie goed onderhouden slaapkamers en een ruime, nette badkamer. Alle slaapkamers zijn voorzien van elektrisch bedienbare rolluiken en hebben een lichte, neutrale uitstraling. Via een vaste trap bereik je de tweede verdieping, waar je een grote open ruimte hebt die nog verder afgewerkt kan worden. Hier kun je bijvoorbeeld een dakkapel plaatsen en zo twee extra slaapkamers creëren. Ook op deze verdieping vind je de wasruimte met aansluitingen voor de wasmachine, de omvormer voor de zonnepanelen en de WTW-installatie. De voortuin is netjes aangelegd met sierbestrating en mooie beplanting. De achtertuin op het westen heeft een gezellige pergola, tegels en groen. Een zonnescherm biedt schaduw en de houten schuur met elektra is perfect voor extra opslag. Kortom, deze woning biedt alles wat je zoekt: duurzaamheid, ruimte, luxe en comfort. Maak snel een afspraak voor een bezichtiging en ontdek zelf de voordelen van wonen in deze unieke woning!
Indeling
Entree: Keurige hal geeft toegang tot de meterkast, stookruimte, toiletruimte, woonkamer en trapopgang naar de eerste verdieping. De ruimte is afgewerkt met een PVC-vloer, gestuukte wanden en een spuitwerk plafond.
Meterkast: Meterkast met 7 elektrische groepen, 3-FASE aansluiting, twee aardlekschakelaars en een hoofdaardlekschakelaar.
Toiletruimte: De toiletruimte is luxe uitgevoerd vanuit de bouw (Villeroy & Boch) en voorzien van een zwevend closet, fonteintje en mechanische ventilatie. De ruimte is volledig betegeld.
Woonkamer: De tuingerichte woonkamer is een fijne, lichte ruimte door de ramen tot de vloer. Dankzij de vloerverwarming is het in de winter heerlijk comfortabel en in de zomer houdt de vloer de ruimte lekker koel. Mocht je meer woonoppervlakte willen, dan is er ruimte om de woonkamer uit te breiden met een aanbouw. De tuin biedt voldoende plek hiervoor. De gave railspots (o.a.) zijn ter overname. De ruimte is afgewerkt met een PVC-vloer, gestuukte wanden en een spuitwerk plafond.
Keuken: De nette keuken biedt een prettig uitzicht en is uitgerust met moderne apparatuur: een oven, inductiekookplaat, afzuigkap, koel/vriescombinatie, vaatwasser en magnetron. Daarnaast is er veel opbergruimte en volop werkruimte, ideaal voor het bereiden van maaltijden. De ruimte is afgewerkt met een PVC-vloer, gestuukte wanden en een spuitwerk plafond.
Eerste verdieping
Overloop: De overloop geeft toegang tot de slaapkamers, badkamer en trapopgang naar de tweede verdieping. De gehele verdieping is afgewerkt met een PVC-vloer, gestuukte wanden en een spuitwerk plafond.
Slaapkamer 1: Deze slaapkamer, gelegen aan de achterzijde van de woning, is keurig afgewerkt en voorzien van een elektrisch rolluik. De ruimte is licht en neutraal. Er past prima een eenpersoonsbed in.
Slaapkamer 2: De ouderslaapkamer, gelegen aan de achterzijde van de woning, is voorzien van een elektrisch rolluik voor extra privacy en comfort. De PVC-vloer is door de gehele verdieping gelegd, wat zorgt voor een mooie eenheid. Het is een royale kamer met veel ruimte voor een groot bed en eventuele extra meubels.
Slaapkamer 3: Deze slaapkamer aan de voorzijde van de woning is een gezellige ruimte, voorzien van een elektrisch rolluik voor extra comfort. Net als in de rest van de woning, is ook hier HR++ beglazing toegepast, wat zorgt voor goede isolatie en een prettig binnenklimaat.
Badkamer: De badkamer is vanaf de bouw en biedt veel ruimte. Het is een nette, moderne ruimte met een wastafel, toilet, design radiator en een douche (Villeroy & Boch). Alles is volledig betegeld, wat de badkamer een strakke en verzorgde uitstraling geeft.
Tweede verdieping
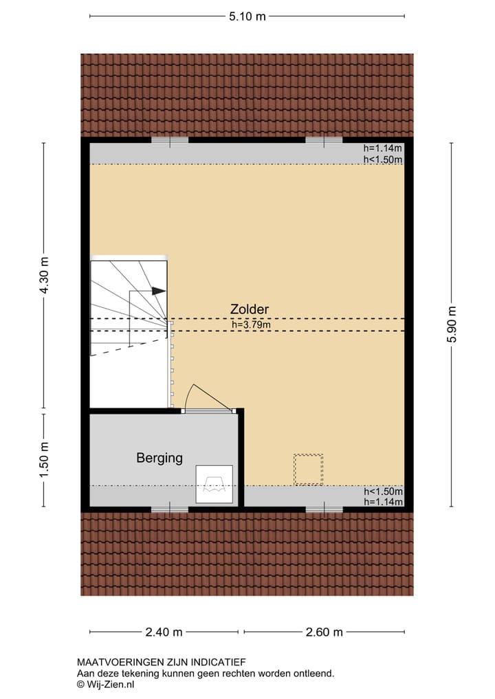
Zolder: De open ruimte op de tweede verdieping biedt volop mogelijkheden. Er is een dakraam aanwezig. Je kunt hier een dakkapel plaatsen en zo twee extra slaapkamers creëren. Op dit moment is het een royale ruimte, die na verdere afwerking perfect om te toveren is tot een fijne kamer. De verdieping is afgewerkt met een PVC-vloer, gestuukte wanden en geïsoleerde dakplaten.
Wasruimte: De wasruimte is een handige ruimte en biedt een wasmachineaansluiting, de omvormer voor de zonnepanelen en de WTW-installatie.
Tuin
Voortuin: De voortuin (afm. ca. 3.14 x 5.13) ligt op het oosten en is prima aangelegd, waardoor je altijd geniet van een verzorgde uitstraling. Het biedt een fijne entree naar de woning.
Achtertuin: De achtertuin (afm. ca. 10.15 x 5.13) ligt op het westen en is verzorgd aangelegd met sierbestrating en tuinborders. Een zonnescherm biedt schaduw voor de zonnige dagen. De tuin is achterom bereikbaar en heeft een gezellige pergola. Bij de achtergevel is ruimte voor een zitje om van de buitenruimte te genieten. Daarnaast is er een praktische schuur.
Schuur: De gefundeerde houten schuur is voorzien van elektra en geeft je de mogelijkheid om fietsen droog te stallen.
Bijzonderheden
De Dr. A. de Haanstraat ligt in een rustige en kindvriendelijke woonwijk in het pittoreske Oud-Alblas. Oud-Alblas is dorp in de Zuid-Hollandse gemeente Molenwaard. Het is een van de oudste dorpen in de Alblasserwaard. Je woont hier landelijk, maar toch centraal in de randstad. Je vindt op loopafstand een speelgelegenheid, de basisschool, kinderopvang en het buitengebied.
ALGEMEEN
Bouwjaar: 2021
Verwarming: Warmtepomp (aardwarmte) + vloerverwarming
Warmwatervoorziening: Warmtepomp (aardwarmte) + boiler Itho Daalderop (150 L)
Glas: Hr++ beglazing
Kozijnen: Hardhouten kozijnen
Wat deze woning echt uniek maakt, is de hoogwaardige en volledig geïntegreerde technische installatie. De warmtepomp met een 163 meter diepe verticale bodemwisselaar, in combinatie met WTW en volledige vloerverwarming en -koeling, zorgt voor een uiterst duurzame en energiezuinige leefomgeving. Dit resulteert in een uitzonderlijk lage EPC-waarde van slechts 0,04 (ter vergelijking: een EPC van 0,00 staat gelijk aan een energieneutrale woning).
Een warmtepomp zorgt in de woning voor de verwarming, koeling en het warme water. De hiervoor benodigde warmte en koude wordt aangevoerd door een systeem van bodemlussen en een warmtepomp. De woning heeft vloerverwarming en vloerkoeling (badkamer wordt niet voorzien van vloerkoeling). Een dergelijk stabiel systeem is gebaseerd op lage temperaturen voor verwarming en hoge temperaturen voor koelen.
De prestaties van dit systeem spreken voor zich. Bij een constant binnenklimaat van rond de 20 graden, normaal gebruik van huishoudelijke apparaten en warm tapwater is een energierekening tussen de 10 en 50 euro heel goed mogelijk.
De woning is volledig gasloos en vrijwel energieneutraal, biedt overal en altijd een constante temperatuur en heeft een verbeterde luchtkwaliteit dankzij de volledig mechanische WTW-ventilatie met fijnstoffilters. Deze kenmerken dragen niet alleen bij aan een hoger wooncomfort, maar ook aan een toekomstbestendige en duurzame manier van wonen.
Kenmerken
Overdracht
- Laatste vraagprijs
- € 465.000 kosten koper
- Vraagprijs per m²
- € 4.227
- Status
- Verkocht
Bouw
- Soort woonhuis
- Eengezinswoning, tussenwoning
- Soort bouw
- Bestaande bouw
- Bouwjaar
- 2021
- Soort dak
- Zadeldak bedekt met pannen
- Keurmerken
- Energie Prestatie Advies
Oppervlakten en inhoud
- Gebruiksoppervlakten
- Wonen
- 110 m²
- Externe bergruimte
- 6 m²
- Perceel
- 125 m²
- Inhoud
- 400 m³
Indeling
- Aantal kamers
- 5 kamers (4 slaapkamers)
- Aantal badkamers
- 1 badkamer en 1 apart toilet
- Badkamervoorzieningen
- Douche, toilet, en wastafel
- Aantal woonlagen
- 3 woonlagen
- Voorzieningen
- Buitenzonwering, glasvezelkabel, mechanische ventilatie, rolluiken, en zonnepanelen
Energie
- Energielabel
- A+++
- Isolatie
- Dakisolatie, HR-glas, muurisolatie en vloerisolatie
- Verwarming
- Gehele vloerverwarming en warmtepomp
Kadastrale gegevens
- OUD-ALBLAS C 612
- Kadastrale kaart
- Oppervlakte
- 125 m²
- Eigendomssituatie
- Volle eigendom
Buitenruimte
- Ligging
- Aan rustige weg en in woonwijk
- Tuin
- Achtertuin en voortuin
Bergruimte
- Schuur/berging
- Aangebouwde houten berging
- Voorzieningen
- Elektra
Parkeergelegenheid
- Soort parkeergelegenheid
- Openbaar parkeren
Foto's 50
© 2001-2025 funda

















































