Dit huis op Funda: https://www.funda.nl/detail/koop/ouddorp/huis-maerenseweg-45/43146570/

Omschrijving
Wonen in de nieuwbouwwijk “Welgelegen” met uitzicht op het Grevelingenmeer vanaf je zolderkamer?
Dat kan aan de Maerenseweg 45 in Ouddorp – een moderne, energiezuinige en instapklare woning waar comfort, stijl en rust samenkomen.
De woning ligt aan de rand van de wijk op 144 m² eigen grond met een zonnige tuin op het Zuiden. De tuin is onderhoudsvriendelijk aangelegd met sierbestrating, kunstgras en biedt volop ruimte voor ontspanning, gezelligheid en lange zomeravonden. De vrijstaande houten berging met bergzolder maakt het plaatje compleet – ideaal voor fietsen, surfplanken of tuinspullen.
Ook de ligging is ideaal: rustig, groen en kindvriendelijk, maar toch dichtbij alle voorzieningen. Binnen enkele minuten wandel of fiets je naar het centrum van Ouddorp, de haven, of geniet je van een dag aan zee.
Je woont hier comfortabel met lage energiekosten en klaar voor de toekomst!
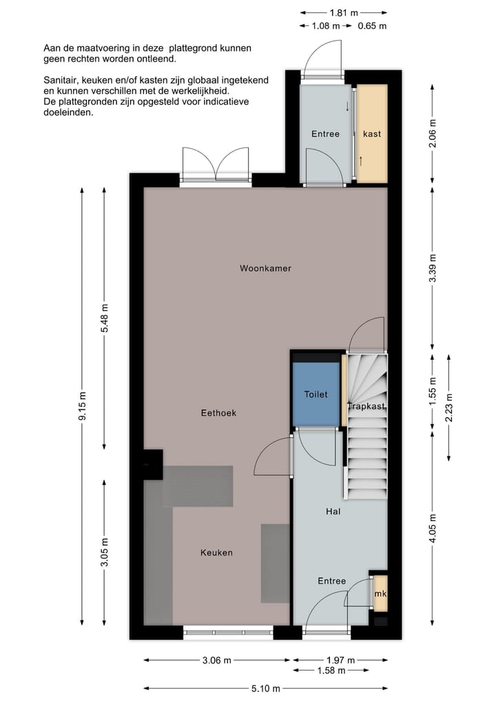
INDELING
BEGANE GROND:
Stap binnen in de lichte entreehal met modern toilet, meterkast en trapopgang naar de verdieping. Vanuit hier kom je in de tuingerichte woonkamer, voorzien van comfortabele vloerverwarming en openslaande deuren naar de tuin. De ruimte biedt veel licht en volop mogelijkheden voor je eigen woonstijl.
Aan de voorzijde vind je de stijlvolle Tieleman-keuken in lichte kleurstelling, compleet uitgerust met o.a. inductiekookplaat, combi-oven, vaatwasser en koel-vriescombinatie, de perfecte plek voor kookliefhebbers.
Aan de achterzijde is de praktische bijkeuken met kastenwand en achterdeur naar de tuin; ideaal voor extra opslag of wasruimte.
EERSTE VERDIEPING:
Op de eerste verdieping bevinden zich drie comfortabele slaapkamers – waarvan de twee slaapkamers aan de achterzijde zijn voorzien van dakramen met elektrisch bedienbare rolluiken.
De ruime ouderslaapkamer over de gehele breedte aan de voorzijde beschikt over een dakkapel met eveneens een elektrisch bedienbaar rolluik en voldoende licht en ventilatiemogelijkheden.
De complete badkamer is geheel betegeld en voorzien van een inloopdouche, tweede toilet, wastafelmeubel en vloerverwarming.
TWEEDE VERDIEPING:
De tweede verdieping biedt een ruime zolderkamer met dakraam, extra bergruimte en een aparte wasruimte met cv-opstelling en witgoedaansluiting. Hier kun je een vierde slaapkamer, werkplek of hobbyruimte creëren met uitzicht op het Grevelingenmeer!
ALGEMEEN:
- In 2014 nieuw gebouwde woning met energielabel A
- Gelegen op 144 m2 eigen grond met tuin op het Zuiden
- Volledig geïsoleerd met dak-, muur-, vloerisolatie en HR++ beglazing
- Voorzien van 12 zonnepanelen en waterontharder
- Voorzien van ventilatiewarmtepomp (WTW-systeem)
- Vloerverwarming op de begane grond en badkamer
- Oplevering: in overleg.
Je bent van harte welkom om deze woning zelf te ervaren. Plan vandaag nog een bezichtiging en laat je verrassen door het wooncomfort aan de Maerenseweg 45 in Ouddorp!
Kenmerken
Overdracht
- Laatste vraagprijs
- € 495.000 kosten koper
- Vraagprijs per m²
- € 4.541
- Status
- Verkocht
Bouw
- Soort woonhuis
- Eengezinswoning, tussenwoning
- Soort bouw
- Bestaande bouw
- Bouwjaar
- 2014
- Soort dak
- Zadeldak bedekt met pannen
Oppervlakten en inhoud
- Gebruiksoppervlakten
- Wonen
- 109 m²
- Externe bergruimte
- 7 m²
- Perceel
- 144 m²
- Inhoud
- 381 m³
Indeling
- Aantal kamers
- 4 kamers (3 slaapkamers)
- Aantal badkamers
- 1 badkamer en 1 apart toilet
- Badkamervoorzieningen
- Douche, toilet, en wastafelmeubel
- Aantal woonlagen
- 2 woonlagen en een zolder
- Voorzieningen
- Dakraam, glasvezelkabel, mechanische ventilatie, rolluiken, TV kabel, en zonnepanelen
Energie
- Energielabel
- Isolatie
- Dakisolatie, muurisolatie, vloerisolatie en volledig geïsoleerd
- Verwarming
- Cv-ketel en gedeeltelijke vloerverwarming
- Warm water
- Cv-ketel
- Cv-ketel
- Intergas (gas gestookt combiketel uit 2024, eigendom)
Kadastrale gegevens
- OUDDORP H 1904
- Kadastrale kaart
- Oppervlakte
- 144 m²
- Eigendomssituatie
- Volle eigendom
Buitenruimte
- Ligging
- In woonwijk
- Tuin
- Achtertuin en voortuin
- Achtertuin
- 69 m² (12,87 meter diep en 5,40 meter breed)
- Ligging tuin
- Gelegen op het zuiden bereikbaar via achterom
Bergruimte
- Schuur/berging
- Vrijstaande houten berging
- Voorzieningen
- Elektra
Parkeergelegenheid
- Soort parkeergelegenheid
- Openbaar parkeren
Foto's 38
© 2001-2026 funda





































