
Omschrijving
LEVENSLOOPBESTENDIG, ROYALE LOODS (89M2)!
Fraai aan het "Pekelderhoofddiep" gelegen gemoderniseerd en sfeervol woonhuis met royale loods (totaal ca. 89m2). Deze karakteristieke woning is rond 1900 gebouwd en staat op ca. 555m2 (dient nog deels exact kadastraal uitgemeten te worden) grond en is tevens aan de achterzijde van het terrein via de Burgemeester Borgesiuslaan te bereiken. Het geheel is ideaal voor iemand die ruimte nodig heeft voor zijn bedrijf en/of hobby.
Indeling begane grond:
Zijentree/ hal met vaste trapopgang naar de 1e verdieping, meterkast, modern (hang-) toilet, badkamer met douchehoek, vaste wastafel met badkamermeubel en designradiator, royale woonkamer met houtkachel en airco, woonkeuken v.v. hoekinbouwkeuken met inbouwapparatuur (o.a. fornuis en afzuigkap) en houtkachel, bijkeuken met witgoedaansluitingen.
1e verdieping:
Overloop met kastruimte (met CV opstelling) en aansluitend 3 ruime slaapkamers.
Algemeen:
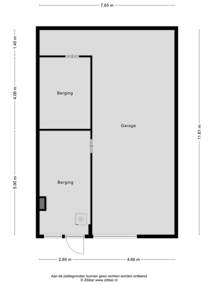
- Vrijstaande onderhoudsarme loods (met elektrische sectionaldeur en een doorrijhoogte van 2,52m) v.v. inpandige berging (ca. 17m2) en inpandige opslagruimte (ca. 11,5m2) v.v. sprinklerinstallatie.
- Het geheel is vanaf 2022 deels gemoderniseerd.
- De woonkamer v.v. HR++ beglazing.
- De bestemming van het geheel is momenteel nog "Detailhandel", maar de gemeente Pekela is bereidt mee te werken om de bestemming om te zetten naar de bestemming "Wonen".
Het geheel is tevens samen te koop met het naastgelegen pand (huisnummer 88). Samen met nummer 89 is dan de totale perceelgrootte van het geheel 1.116m2.
Vraagprijs voor het geheel (huisnummer 88 en 89) bedraagt: € 399.000,- kosten koper.
Indeling huisnummer 88 (nu in gebruik als kantoorruimte):
Zijentree/ kantoorruimte, keuken met aanrecht, (hang-)toilet met c.v. opstelling, spreek -/kantoorruimte.
1e verdieping:
Zolderruimte.
Algemeen:
- In de tuin van nr. 88 staat een royale veranda (ca. 52m2).
- Tevens is nr. 88 aan de achterzijde van het terrein via de Burgemeester Borgesiuslaan te bereiken.
Kenmerken
Overdracht
- Oorspronkelijke vraagprijs
- € 399.000 kosten koper
- Laatste vraagprijs
- € 275.000 kosten koper
- Vraagprijs per m²
- € 1.809
- Status
- Verkocht
Bouw
- Soort woonhuis
- Eengezinswoning, vrijstaande woning
- Soort bouw
- Bestaande bouw
- Bouwjaar
- 1900
- Soort dak
- Schilddak bedekt met pannen
Oppervlakten en inhoud
- Gebruiksoppervlakten
- Wonen
- 152 m²
- Externe bergruimte
- 95 m²
- Perceel
- 555 m²
- Inhoud
- 475 m³
Indeling
- Aantal kamers
- 6 kamers (4 slaapkamers)
- Aantal woonlagen
- 2 woonlagen
- Voorzieningen
- Airconditioning, mechanische ventilatie, natuurlijke ventilatie, rookkanaal, en TV kabel
Energie
- Energielabel
- Isolatie
- Dubbel glas en HR-glas
- Verwarming
- Cv-ketel
- Warm water
- Cv-ketel
- Cv-ketel
- AWB Thermomaster (gas gestookt combiketel, eigendom)
Kadastrale gegevens
- OUDE PEKELA A 2494
- Kadastrale kaart
- Oppervlakte
- 475 m²
- Eigendomssituatie
- Volle eigendom
- OUDE PEKELA A 5557
- Kadastrale kaart
- Oppervlakte
- 26 m²
- Eigendomssituatie
- Volle eigendom
- OUDE PEKELA A 1836
- Kadastrale kaart
- Oppervlakte
- 54 m² (deelperceel)
- Eigendomssituatie
- Volle eigendom
Buitenruimte
- Ligging
- Aan rustige weg en in woonwijk
- Tuin
- Achtertuin en voortuin
- Achtertuin
- 210 m² (30,00 meter diep en 7,00 meter breed)
- Ligging tuin
- Gelegen op het noordwesten bereikbaar via achterom
Garage
- Soort garage
- Parkeerplaats
Parkeergelegenheid
- Soort parkeergelegenheid
- Op eigen terrein en openbaar parkeren
Foto's 54
© 2001-2026 funda





















































