
Omschrijving
In landelijke omgeving gelegen royale en energiezuinige (gasloze) vrijstaande woning met inpandige garage, vrijstaande houten schuur en diepe zonnige tuin op het noordwesten op een perceel van 653m2 eigen grond.
Deze in 2007 gebouwde woning is in 2013 geheel verbouwd en voorzien van een opbouw boven de garage. Mede door de 5 ruime slaapkamers een ideale woning voor een groot gezin!
Indeling:
Begane grond: entree, hal met trapopgang, meterkast en toiletruimte voorzien van wandcloset en fontein, royale woonkamer van circa 45m2 met houtkachel, woonkeuken van circa 25m2 met tuindeuren naar het overdekte terras en keukenopstelling voorzien van inbouwapparatuur, badkamer voorzien van ligbad, douche en dubbel wastafelmeubel, ruime bijkeuken met witgoedaansluitingen, ketelopstelling en toegang tot de inpandige garage van circa 20m2.
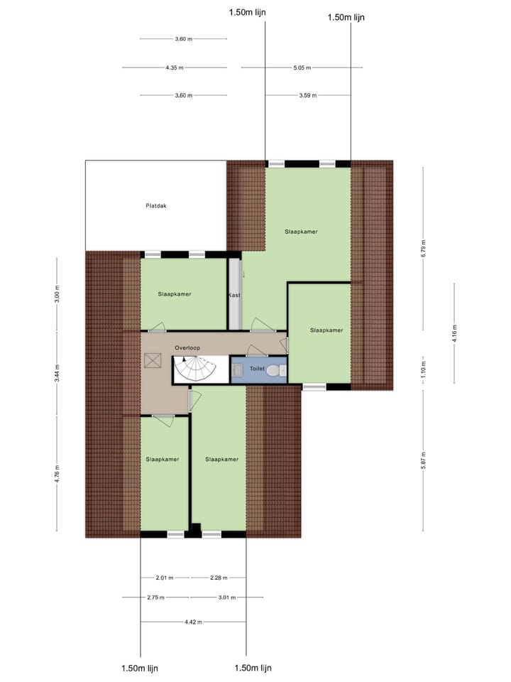
Verdieping: royale overloop, toiletruimte voorzien van wandcloset en fontein en 5 ruime slaapkamers van respectievelijk circa 18, 14, 14, 12 en 10m2.
Zolder: via vlizotrap bereikbare zolderberging voor de opslag van uw niet hedendaags te gebruiken spullen.
Bijzonderheden:
- Bouwjaar 2007;
- In 2013 geheel verbouwd en voorzien van opbouw boven de garage;
- Volledig geïsoleerd (energielabel A+++) en geheel voorzien van hr++ beglazing;
- Verwarming middels Danfoss Aardwarmtepomp i.c.m. zonneboiler;
- Gasloos en voorzien van 22 zonnepanelen dus vrijwel geen energielasten;
- Inpandige garage van circa 20m2 en carport van circa 20m2;
- Vrijstaande houten schuur van circa 25m2;
- Parkeergelegenheid voor meerdere auto's op eigen terrein;
- Diepe zonnige tuin op het noordwesten met overdekt terras van circa 20m2;
- Eigen grond 653m2.
Oudehorne:
Landelijk wonen met de natuurgebieden "Het Ketliker Schar en De Kiekenberg" in de directe omgeving waar u heerlijk kunt lopen en fietsen. In de kern van het nabij gelegen Nieuwehorne vindt u een supermarkt, basisscholen en sportvoorzieningen. Echt buiten wonen op slechts 10 autominuten van de A32, Heerenveen en de bossen van Oranjewoud.
Interesse in deze woning?
Neem uw eigen NVM aankoopmakelaar mee!
Kenmerken
Overdracht
- Laatste vraagprijs
- € 550.000 kosten koper
- Vraagprijs per m²
- € 2.821
- Status
- Verkocht
Bouw
- Soort woonhuis
- Eengezinswoning, vrijstaande woning
- Soort bouw
- Bestaande bouw
- Bouwjaar
- 2007
- Soort dak
- Zadeldak bedekt met bitumineuze dakbedekking en pannen
Oppervlakten en inhoud
- Gebruiksoppervlakten
- Wonen
- 195 m²
- Overige inpandige ruimte
- 25 m²
- Gebouwgebonden buitenruimte
- 40 m²
- Externe bergruimte
- 25 m²
- Perceel
- 653 m²
- Inhoud
- 660 m³
Indeling
- Aantal kamers
- 6 kamers (5 slaapkamers)
- Aantal badkamers
- 1 badkamer en 2 aparte toiletten
- Badkamervoorzieningen
- Douche, dubbele wastafel, ligbad, vloerverwarming, en wastafelmeubel
- Aantal woonlagen
- 2 woonlagen en een zolder
- Voorzieningen
- Dakraam, glasvezelkabel, mechanische ventilatie, rookkanaal, TV kabel, en zonnepanelen
Energie
- Energielabel
- A+++
- Isolatie
- Dakisolatie, dubbel glas, HR-glas, muurisolatie, vloerisolatie en volledig geïsoleerd
- Verwarming
- Aardwarmte, houtkachel, gehele vloerverwarming en warmte terugwininstallatie
- Warm water
- Aardwarmte en zonneboiler
Kadastrale gegevens
- MILDAM J 952
- Kadastrale kaart
- Oppervlakte
- 653 m²
- Eigendomssituatie
- Volle eigendom
Buitenruimte
- Ligging
- Buiten bebouwde kom, landelijk gelegen en vrij uitzicht
- Tuin
- Achtertuin
- Achtertuin
- 375 m² (28,00 meter diep en 13,50 meter breed)
- Ligging tuin
- Gelegen op het noordwesten bereikbaar via achterom
Bergruimte
- Schuur/berging
- Vrijstaande houten berging
- Voorzieningen
- Elektra
Garage
- Soort garage
- Carport, inpandig en parkeerplaats
- Capaciteit
- 1 auto
- Voorzieningen
- Elektra, verwarming en stromend water
- Isolatie
- Dakisolatie, dubbel glas, muurisolatie, vloerisolatie en volledig geïsoleerd
Parkeergelegenheid
- Soort parkeergelegenheid
- Op eigen terrein en openbaar parkeren
Foto's 40
© 2001-2025 funda







































