
Omschrijving
Op korte afstand van het centrum van Panningen wordt deze verrassend ruime en goed onderhouden halfvrijstaande hoekwoning aangeboden. De woning beschikt over een vrijstaande garage, drie slaapkamers op de verdieping, een vaste trap naar de zolderverdieping met mogelijkheid tot een extra slaapkamer, een ruime oprit en een eigen vrije achterom. In 2022 is de keuken vernieuwd en voorzien van moderne apparatuur. Het geheel is gelegen op een fraai perceel van 282 m² in een rustige woonwijk aan een doodlopende straat, op loopafstand van het gezellige centrum van Panningen en alle andere benodigde voorzieningen.
Indeling
Begane grond
Nagenoeg geheel voorzien van een laminaatvloer.
Via de entree betreed je de ontvangsthal met trapopgang naar de eerste verdieping, meterkast, praktische trapkast en een gedeeltelijk betegelde toiletruimte met closet en fonteintje. De doorzonwoonkamer beschikt over veel lichtinval en staat in open verbinding met de keuken.
De nieuwe keuken (2022) is geplaatst in een praktische L-opstelling en is compleet ingericht met een 4-pits gaskookplaat, afzuigkap, combimagnetron, spoelbak, koelkast en een vaatwasser. Via een loopdeur heb je direct toegang tot de achtertuin.
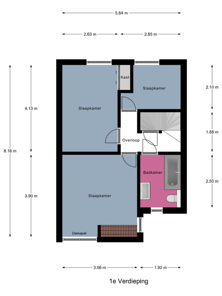
1e Verdieping
Nagenoeg geheel voorzien van een laminaatvloer.
De overloop biedt toegang tot drie slaapkamers en de badkamer. Slaapkamer 1 is gelegen aan de voorzijde en is voorzien van een dakkapel en een rolluik. Slaapkamer 2 is gesitueerd aan de achterzijde en beschikt over een vaste inbouwkast en slaapkamer 3 bevindt zich eveneens aan de achterzijde. De geheel betegelde badkamer uit 2012 is voorzien van een ligbad met regendouche, een zwevend toilet en een modern wastafelmeubel.
2e Verdieping
Middels een vaste trap bereik je de zolderverdieping. De voorzolder biedt plaats aan de cv-opstelling (Vaillant, 2012) en aansluitingen voor de wasmachine en droger. De ruime zolderkamer biedt mogelijkheden voor het realiseren van een vierde slaapkamer of hobbykamer.
Garage
De vrijstaande garage is voorzien van een kantelpoort en een loopdeur naar de achtertuin. De garage is gemakkelijk bereikbaar via de royale eigen oprit.
Tuin
De diepe en privacyvolle achtertuin is gelegen op het zuidoosten en is deels nieuw aangelegd. Zo is het terras nieuw aangelegd en zijn de borders net nieuw. De beplanting en het gazon wordt nog overgelaten aan de nieuwe eigenaar. Verder is de tuin bereikbaar via een vrije achterom en biedt de ruime oprit voldoende parkeermogelijkheden op eigen terrein.
Ligging
Deze woning is gelegen in een rustige en kindvriendelijke woonwijk aan een doodlopende straat, op loopafstand van het winkelcentrum van Panningen, scholen, sportverenigingen en overige voorzieningen. Daarnaast zijn de uitvalswegen A67 (Venlo-Eindhoven) en aansluitingen op de A2 en A73 op enkele kilometers afstand bereikbaar.
Algemene kenmerken
- Grotendeels voorzien van kunststof kozijnen en deels van hardhouten kozijnen;
- Voorzien van HR++ en HR+ beglazing;
- Dak- en muurisolatie aanwezig;
- Nieuwe keuken geplaatst in 2022;
- Vaste trap naar zolderverdieping met mogelijkheid tot 4e slaapkamer;
- Diepe achtertuin met vrije achterom, ruime eigen oprit en vrijstaande garage.
Kenmerken
Overdracht
- Laatste vraagprijs
- € 345.000 kosten koper
- Vraagprijs per m²
- € 3.485
- Status
- Verkocht
Bouw
- Soort woonhuis
- Eengezinswoning, halfvrijstaande woning
- Soort bouw
- Bestaande bouw
- Bouwjaar
- 1981
- Soort dak
- Zadeldak bedekt met pannen
Oppervlakten en inhoud
- Gebruiksoppervlakten
- Wonen
- 99 m²
- Externe bergruimte
- 18 m²
- Perceel
- 282 m²
- Inhoud
- 363 m³
Indeling
- Aantal kamers
- 6 kamers (3 slaapkamers)
- Aantal badkamers
- 1 badkamer en 1 apart toilet
- Badkamervoorzieningen
- Ligbad, toilet, en wastafel
- Aantal woonlagen
- 2 woonlagen en een zolder
- Voorzieningen
- Buitenzonwering, dakraam, glasvezelkabel, mechanische ventilatie, rolluiken, en TV kabel
Energie
- Energielabel
- C
- Isolatie
- Dakisolatie, dubbel glas, HR-glas en muurisolatie
- Verwarming
- Cv-ketel
- Warm water
- Cv-ketel
- Cv-ketel
- Vaillant HR (gas gestookt combiketel uit 2012, eigendom)
Kadastrale gegevens
- HELDEN G 6391
- Kadastrale kaart
- Oppervlakte
- 282 m²
- Eigendomssituatie
- Volle eigendom
Buitenruimte
- Ligging
- Aan rustige weg en in woonwijk
- Tuin
- Achtertuin en voortuin
- Achtertuin
- 124 m² (15,50 meter diep en 8,00 meter breed)
- Ligging tuin
- Gelegen op het oosten bereikbaar via achterom
Garage
- Soort garage
- Vrijstaande stenen garage
- Capaciteit
- 1 auto
- Voorzieningen
- Elektra
- Isolatie
- Geen spouw
Parkeergelegenheid
- Soort parkeergelegenheid
- Op eigen terrein en openbaar parkeren
Foto's 58
© 2001-2025 funda

























































