
Omschrijving
Deze tussenwoning is voorzien van een diepe achtertuin met ligging op het zuidwesten. De ligging is ideaal; de achtertuin grenst namelijk direct aan een speeltuin.
De woning heeft een rustige ligging in het dorp waarbij voorzieningen zoals horeca gelegenheden, openbaar vervoer en een school zich in de directe omgeving bevinden.
Indeling
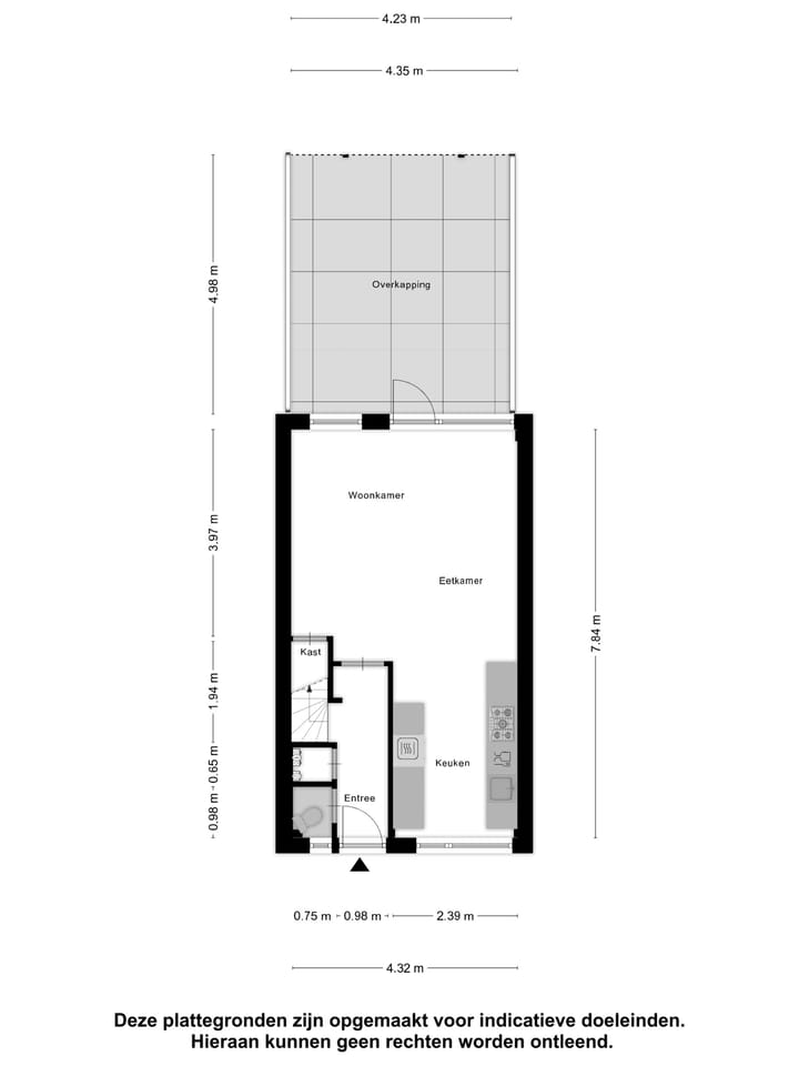
Begane grond:
Entree/hal met de meterkast, trapopgang en het toilet met fonteintje. Er is toegang tot de tuingerichte woonkamer. De woonkamer is voorzien van een praktische inbouwkast en geeft toegang tot de zonnige achtertuin.
Aan de voorzijde ligt de nette open keuken welke is geplaatst in 2 rechte opstellingen. De keuken bestaat uit een gaskookplaat, afzuigkap, oven, magnetron, koel-/vriescombinatie en een vaatwasmachine.
De begane grond is voorzien van een laminaatvloer en de wanden zijn voorzien van stucwerk.
1e verdieping:
Overloop met een laminaatvloer welke doorloopt in de slaapkamers. De hoofdslaapkamer ligt aan de achterzijde en is voorzien van een rolluik. Verder heeft de kamer beschikking over een walk-in closet en een vaste kast. De oppervlakte van de kamer is ongeveer 18m².
Slaapkamer 2 beschikt eveneens over een vaste kast. In deze kast vindt u de opstelling van de cv-ketel. De kamer heeft een oppervlakte van circa 7m².
De badkamer bestaat uit een douche, toilet en een wastafel.
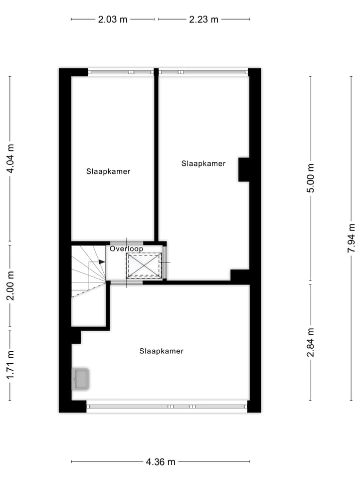
2e verdieping:
Overloop met toegang tot 3 slaapkamers.
De grootste kamer van deze verdieping heeft een oppervlakte van circa 11m² en ligt aan de voorzijde. De kamer is voorzien van een wastafel en hier vindt u de aansluitingen voor wasmachine/droger.
Aan de achterzijde vindt u de 2 andere slaapkamers. Beide kamers zijn voorzien van inbouwkasten en de oppervlaktes zijn respectievelijk 10,5m² en 8m².
Tuin:
De voortuin biedt toegang tot de stenen berging.
De achtertuin ligt op het zonnige zuidwesten en is met ongeveer 14 meter diep ruim van opzet. Er is een houten overkapping tegen de gevel gebouwd en u vindt nog een vrijstaande houten overkapping in de tuin. Tot slot is de tuin bereikbaar middels een achterom. Hier aan de achterzijde komt u uit bij de speeltuin.
Algemeen
Bouwjaar 1961
Inhoud 366m³.
De kozijnen zijn uitgevoerd in aluminium en gedeeltelijk voorzien van dubbel glas.
De woning wordt verwarmd middels een cv-combi (merk: Intergas, bouwjaar: 2018). Deze cv-combi is in eigendom levert ook het warme water in de woning.
Energielabel E
Oplevering in overleg.
Bij woningen welke gebouwd zijn voor 1980 zal er een ouderdomsclausule in de koopovereenkomst worden opgenomen. Bij woningen welke gebouwd zijn voor 1993 zal er ook een asbestclausule in de koopovereenkomst worden opgenomen.
Kenmerken
Overdracht
- Laatste vraagprijs
- € 250.000 kosten koper
- Vraagprijs per m²
- € 2.427
- Status
- Verkocht
Bouw
- Soort woonhuis
- Eengezinswoning, tussenwoning
- Soort bouw
- Bestaande bouw
- Bouwjaar
- 1961
- Soort dak
- Plat dak bedekt met bitumineuze dakbedekking
Oppervlakten en inhoud
- Gebruiksoppervlakten
- Wonen
- 103 m²
- Gebouwgebonden buitenruimte
- 21 m²
- Externe bergruimte
- 9 m²
- Perceel
- 133 m²
- Inhoud
- 366 m³
Indeling
- Aantal kamers
- 6 kamers (5 slaapkamers)
- Aantal badkamers
- 1 badkamer en 1 apart toilet
- Badkamervoorzieningen
- Douche, toilet, en wastafel
- Aantal woonlagen
- 3 woonlagen
- Voorzieningen
- Buitenzonwering en TV kabel
Energie
- Energielabel
- E
- Isolatie
- Gedeeltelijk dubbel glas
- Verwarming
- Cv-ketel
- Warm water
- Cv-ketel
- Cv-ketel
- Intergas (gas gestookt combiketel uit 2018, eigendom)
Kadastrale gegevens
- PERNIS B 5426
- Kadastrale kaart
- Oppervlakte
- 133 m²
- Eigendomssituatie
- Volle eigendom
Buitenruimte
- Ligging
- Aan rustige weg en in woonwijk
- Tuin
- Achtertuin en voortuin
- Achtertuin
- 60 m² (13,94 meter diep en 4,34 meter breed)
- Ligging tuin
- Gelegen op het zuidwesten bereikbaar via achterom
Bergruimte
- Schuur/berging
- Vrijstaande stenen berging
Parkeergelegenheid
- Soort parkeergelegenheid
- Openbaar parkeren
Foto's 41
© 2001-2025 funda








































