Dit huis op Funda: https://www.funda.nl/detail/koop/piershil/huis-sluisjesdijk-48/43014822/

Omschrijving
Op een fantastische vrije locatie gelegen vrijstaande dijkwoning met garage inclusief werk/hobbyruimte onder de garage met een hoogte van ca. 2,08 meter. De woning is gelegen op een perceel van 910 m² eigen grond. Daarnaast wordt er nog een gedeelte van de tuin achter de woning van het waterschap gehuurd.
INDELING IN VOGELVLUCHT
Dijkniveau: entree/hal, toilet, garage en woonkamer met keuken.
Eerste verdieping: overloop, toilet en 2 slaapkamers.
Tweede verdieping: bergzolder
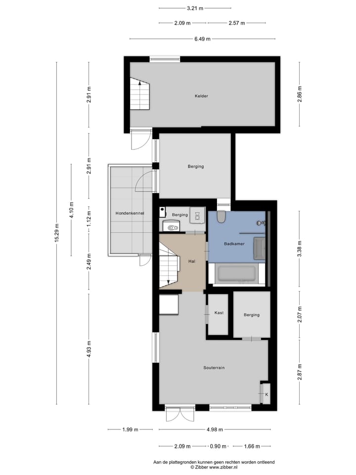
Onderhuis: ruime slaap/werkruimte, badkamer en kast/bergruimte.
KOM BINNEN
Entree/hal met toilet, meterkast, trapopgang naar de eerste verdieping en een trap naar het onderhuis. Vanuit de hal is er toegang tot zowel de lichte woonkamer met open keuken als de garage, waar een vaste trap leidt naar de hobbyruimte onder de garage.
De woonkamer heeft veel lichtinval dankzij ramen aan drie zijden, met aan de achterzijde een groot raam dat een prachtig en weids uitzicht geeft over het afwisselende Hoeksche Waardse polderlandschap. De open keuken in U-opstelling is voorzien van een magnetron, oven, 5-pits gaskookplaat, afzuigkap, vaatwasser en een koelkast.
De garage bevindt zich op dijkniveau en heeft een hoogte van circa 2,80 meter tot aan de balken. Hierboven is nog een praktische bergvliering aanwezig. Vanuit de garage is de verrassend ruime hobbyruimte met een plafondhoogte van circa 2,08 meter onder de garage bereikbaar. Deze ruimte beschikt over een raam in de gevel en een deur naar de tuin, waardoor het een volwaardige multifunctionele ruimte is.
Onderhuis
Het onderhuis heeft een fraaie balkenplafond met een plafondhoogte van circa 1,95 meter tot de onderkant van de balken. Er zijn diverse berg- en kastruimten en een moderne badkamer met een ligbad, inloopdouche, hangcloset, handdoekradiator en een stijlvol wastafelmeubel. In één van de vaste kasten bevinden zich de aansluitingen voor de wasapparatuur en de opstelplaats van de Nefit cv-combiketel (2012).
Je kan het onderhuis ideaal als slaapkamer, werkkamer of praktijkruimte gebruiken. Middels openslaande deuren heb je toegang tot de ruime tuin. Bijzonder detail: in het onderhuis is een waterput met een diepte van circa 3,5 meter aanwezig.
Eerste verdieping
Overloop met toegang tot 2 slaapkamers en het toilet met wastafelmeubel. Slaapkamer aan de voorzijde heeft een dakkapel, deur naar het platte dak boven de entree en een vlizotrap naar de bergzolder met een hoogte van ca. 2,15 meter. De andere ruime slaapkamer heeft ook een dakkapel en aan de achterzijde het adembenemende uitzicht.
BUITEN
Op dijkniveau is er naast de garage parkeergelegenheid voor meerdere auto's. De lange zijtuin heeft aan het einde een ruime houten berging. Het terras achter de woning geeft een fantastisch weids uitzicht over het polderlandschap en hier is een hondenkennel aanwezig waarbij je nog toegang hebt tot een verwarmde bergruimte in het onderhuis van de woning.
EXTRA INFORMATIE
- woning heeft een gebruiksoppervlakte van ca. 167 m² en een inhoud can ca. 738 m³.
- er is een recent bouwkundig rapport ter inzage;
- woning heeft een septic tank;
- in de koopovereenkomst wordt onder andere de niet-bewonersclausule en de ouderdoms-clausule opgenomen, dit mede omdat de verkoopster de woning nooit heeft bewoond.
NVM-aankoopmakelaar
Neem je eigen NVM-aankoopmakelaar mee voor advies bij de aankoop van je nieuwe woning in Piershil, gemeente Hoeksche Waard!
Eigen huis
Is je eigen huis nog niet verkocht? Ralph of Barend komt graag vrijblijvend bij je langs voor een oriënterend verkoopgesprek onder het genot van een kop koffie. Laat je verrassen door hun enthousiasme, kennis van de markt en jarenlange ervaring.
Toelichtingsclausule NEN2580
De Meetinstructie is gebaseerd op de NEN2580. De Meetinstructie is bedoeld om een meer eenduidige manier van meten toe te passen voor het geven van een indicatie van de gebruiksoppervlakte. De Meetinstructie sluit verschillen in meetuitkomsten niet volledig uit, door bijvoorbeeld interpretatieverschillen, afrondingen of beperkingen bij het uitvoeren van de meting.
Disclaimer
De informatie in deze publicatie is met de grootst mogelijke zorg samengesteld door VMK Makelaars & Taxateurs. Desondanks kunnen aan deze informatie geen rechten worden ontleend. VMK Makelaars & Taxateurs aanvaardt geen enkele aansprakelijkheid voor eventuele onjuistheden, onvolledigheden of verouderde informatie, noch voor de gevolgen hiervan. Vermelde maten, oppervlakten, bouwjaren en andere gegevens zijn uitdrukkelijk indicatief en kunnen afwijken van de werkelijke situatie. Koper dan wel gegadigde wordt nadrukkelijk uitgenodigd om de informatie zelfstandig te (laten) verifiëren. Tekeningen, plattegronden en foto’s zijn uitsluitend bedoeld ter illustratie en kunnen afwijken van de feitelijke situatie. Deze informatie is vrijblijvend en onder voorbehoud van tussentijdse wijzigingen en/of verkoop.
Kenmerken
Overdracht
- Laatste vraagprijs
- € 600.000 kosten koper
- Vraagprijs per m²
- € 3.593
- Status
- Verkocht
Bouw
- Soort woonhuis
- Eengezinswoning, vrijstaande woning (dijkwoning)
- Soort bouw
- Bestaande bouw
- Bouwjaar
- 1933
- Soort dak
- Zadeldak bedekt met pannen
Oppervlakten en inhoud
- Gebruiksoppervlakten
- Wonen
- 167 m²
- Overige inpandige ruimte
- 32 m²
- Gebouwgebonden buitenruimte
- 2 m²
- Externe bergruimte
- 21 m²
- Perceel
- 910 m²
- Inhoud
- 738 m³
Indeling
- Aantal kamers
- 4 kamers (3 slaapkamers)
- Aantal badkamers
- 1 badkamer en 2 aparte toiletten
- Badkamervoorzieningen
- Inloopdouche, ligbad, toilet, wastafel, en wastafelmeubel
- Aantal woonlagen
- 3 woonlagen
- Voorzieningen
- Natuurlijke ventilatie, rolluiken, en TV kabel
Energie
- Energielabel
- Isolatie
- Dubbel glas
- Verwarming
- Cv-ketel
- Warm water
- Cv-ketel
- Cv-ketel
- Nefit (gas gestookt combiketel uit 2012, eigendom)
Kadastrale gegevens
- PIERSHIL C 485
- Kadastrale kaart
- Oppervlakte
- 910 m²
- Eigendomssituatie
- Volle eigendom
Buitenruimte
- Ligging
- Buiten bebouwde kom, landelijk gelegen, open ligging en vrij uitzicht
- Tuin
- Tuin rondom
Bergruimte
- Schuur/berging
- Vrijstaande houten berging
Garage
- Soort garage
- Aangebouwde stenen garage
- Capaciteit
- 1 auto
- Voorzieningen
- Elektra
Parkeergelegenheid
- Soort parkeergelegenheid
- Op eigen terrein en openbaar parkeren
Foto's 74
© 2001-2026 funda









































































