
Omschrijving
Hoekwoning op een ruim perceel, volledig gerenoveerd in 2020 en gelegen op een fijne locatie in Puttershoek
Op een rustige en kindvriendelijke locatie in Puttershoek, in de geliefde Arie van Drielstraat, staat deze volledig gerenoveerde hoekwoning met ruime tuin, eigen oprit én een moderne afwerking. De woning is in 2020 grondig aangepakt en voorzien van onder andere vloerverwarming, gevelisolatie en rolluiken. Daarnaast is een extra stuk perceel bijgekocht, waardoor er ruimte is voor het parkeren van twee auto’s op eigen terrein. In 2024 zijn de kozijnen vernieuwd met kunststof kozijnen en dubbele beglazing.
De omgeving is ideaal voor gezinnen: scholen, sportverenigingen, winkels, speeltuinen en openbaar vervoer liggen allemaal in de directe nabijheid. Ook recreatiegebied de Binnenmaas is op korte fietsafstand bereikbaar. Een heerlijke plek om te wonen.
Kom gerust vrijblijvend kijken, wij laten de woning graag van aan u zien.
BEGANE GROND
Entree van de woning in de hal met toegang tot het toilet, de trapkast met bergruimte, de meterkast en de verdeler van de vloerverwarming. Vanuit de hal bereik je de woonkamer.
De woonkamer is sfeervol en licht en afgewerkt met een doorgelegde laminaatvloer die eveneens op de trap is doorgevoerd voor een mooi geheel.
Aan de achterzijde loopt de woonkamer over in de moderne open keuken. Deze is in 2020 vernieuwd en voorzien van diverse inbouwapparatuur, waaronder een kokendwaterkraan, vaatwasser, inductiekookplaat, afzuigsysteem, heteluchtoven en een koel-vriescombinatie.
Dankzij de hoekligging geniet deze verdieping van extra licht en een fijne ruimtelijke beleving.
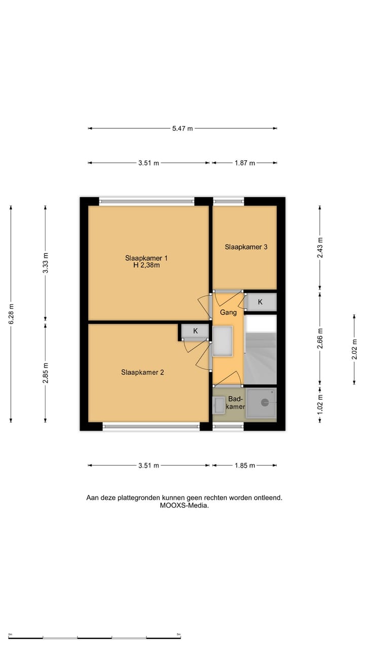
EERSTE VERDIEPING
De overloop, voorzien van een laminaatvloer, biedt toegang tot drie slaapkamers, een inpandige berging en de badkamer.
De badkamer is modern afgewerkt met witte wandtegels in combinatie met antraciet vloertegels. De ruimte is ingericht met een douchecabine, een wastafelmeubel in houtlook, een radiator, mechanische ventilatie en een groot draaikiepraam dat zorgt voor veel lichtinval en natuurlijke ventilatie.
Aan de voorzijde bevindt zich een slaapkamer met een brede raampartij en de aansluitingen voor de wasmachine en droger. Aan de achterzijde ligt de tweede slaapkamer en een derde, kleinere slaapkamer die ideaal is als kinder- of werkkamer.
TWEEDE VERDIEPING
Via een vlizotrap is de tweede verdieping bereikbaar. De ruimte heeft een hoogte van circa 190 cm, wat deze verdieping vooral ideaal maakt als praktische bergzolder. Hier bevindt zich de cv-installatie van Intergas uit 2020, evenals de mechanische ventilatiebox. Daarnaast is er extra ruimte voor opslag aanwezig.
TUIN
De woning beschikt, passend bij de hoekligging, over een voor-, zij- en achtertuin. Aan de voorzijde is voldoende ruimte om twee auto’s op eigen terrein te parkeren. De achtertuin is verzorgd aangelegd met bestrating, vaste plantenbakken en een stenen schuur voorzien van elektra. Daarnaast is er een sfeervolle houten overkapping, een heerlijke plek om in alle seizoenen van het buitenleven te genieten.
AFMETINGEN
Bekijk voor de afmetingen bijgevoegde plattegronden.
ALGEMEEN
- Bouwjaar: 1954
- Woonoppervlakte: 68 m²
- Perceelgrootte: 195 m²
- Eigen grond
- Energielabel: D
- CV-ketel: Intergas 2022
- Beglazing: dubbele beglazing
- Vloerverwarming: Gedeeltelijk op de begane grond
- De oplevering is in overleg
BIJZONDERHEDEN
* Vanaf 1 januari 2023 zijn makelaars wettelijk verplicht een biedlogboek bij te houden bij de verkoop van bestaande woningen (en wanneer de koper en/of de verkoper een particulier is). Biedingen kun je per die datum, en indien gewenst, nog steeds mondeling met ons bespreken maar dien je daarna digitaal aan ons te bevestigen via jouw MOVE-account. Het biedlogboek is niet van toepassing bij de verkoop van nieuwbouw, recreatiewoningen, bedrijfswoningen, garageboxen, bouwkavels, woon-/bedrijfspanden en (agrarische) bedrijfsobjecten zonder woonbestemming.
* Bij het sluiten van een koopovereenkomst verklaar je je akkoord dat ondertekening van de koopovereenkomst digitaal plaatsvindt (met iDIN identificatie) door gebruikmaking van het platform van ondertekenen.nl.
* De koopovereenkomst wordt opgesteld conform het meest recente model dat is vastgesteld door de NVM, de Consumentenbond en Vereniging Eigen Huis en aangevuld met enkele aanvullende artikelen waaronder (maar niet uitsluitend) een ouderdoms-clausule, een clausule over de Meetinstructie en een clausule over de onderzoeksplicht van koper.
* Vanzelfsprekend staat het je vrij om, indien gewenst, een bouwkundige uit te nodigen de woning bouwkundig voor je te keuren teneinde jezelf een goed beeld te kunnen vormen van de bouwkundige staat van de woning.
HOEKSCHE WAARD
De Hoeksche Waard is een eiland ten zuiden van Rotterdam met een oppervlakte van 27.420 hectare, telt ruim 88.000 inwoners en is sinds 2019 samengevoegd in 1 gelijknamige gemeente. Door de status van “Nationaal Landschap” is haar open en landelijk karakter op de lange termijn verzekerd en door de versterking van natuurwaarden zal het er altijd goed wonen blijven.
PUTTERSHOEK
Puttershoek vervult één van de centrumfuncties in de gemeente Hoeksche Waard. Er is een modern en gezellig winkelcentrum met een breed aanbod van winkels en een weekmarkt. De actieve middenstand organiseert regelmatig allerlei activiteiten als “sprietlopen” over de haven en een jaarlijkse paardenmarkt die zelfs landelijke bekendheid geniet. Verder biedt het dorp een scala aan recreatie- en sportmogelijkheden, tot en met een moderne ijs- en skatebaan. Ook openbaar vervoer, goed geleide scholen, kinderdagverblijf en garagebedrijven zijn aanwezig. De liefhebber van wandelen, fietsen en het buitenleven komt ruimschoots aan zijn trekken op verstilde buitenwegen en de griendbossen langs de Oude Maas.
ENTHOUSIAST?
Maak gerust een afspraak voor een vrijblijvende bezichtiging en bekijk onze website voor extra informatie over ons kantoor.
EIGEN NVM MAKELAAR
Vrieling Makelaars behartigt de belangen van de verkopende partij. Ons advies bij het kopen van jouw nieuwe woning is dan ook om je eigen NVM-aankoopmakelaar mee te nemen.
TOT SLOT
Deze presentatie is met zorg samengesteld, onder andere (maar niet uitsluitend) aan de hand van de door opdrachtgever (verkoper/verhuurder) aan makelaar verstrekte gegevens en tekeningen. Desondanks kunnen aan deze presentatie geen rechten worden ontleend en aanvaardt de makelaar of zijn opdrachtgever (verkoper/verhuurder) geen enkele aansprakelijkheid voor enige onvolledigheid, onjuistheid of anderszins -dan wel de gevolgen daarvan- van de in deze presentatie verstrekte informatie of elke andere aan de (kandidaat) koper of huurder (of andere belanghebbende) verstrekte informatie m.b.t. het te koop (of te huur) aangeboden object. Alle opgegeven maten en oppervlakten zijn daarnaast slechts indicatief. Mocht deze presentatie of andere verstrekte informatie m.b.t. het te koop (of te huur) aangeboden object vragen oproepen, dan nodigen wij je van harte uit deze onder onze (makelaar) aandacht te brengen.
THUIS IN DE REGIO, THUIS IN DE STAD
DÉ MAKELAAR VOOR DE HOEKSCHE WAARD & ROTTERDAM
Kenmerken
Overdracht
- Laatste vraagprijs
- € 359.000 kosten koper
- Vraagprijs per m²
- € 5.279
- Status
- Verkocht
Bouw
- Soort woonhuis
- Eengezinswoning, hoekwoning
- Soort bouw
- Bestaande bouw
- Bouwjaar
- 1954
- Soort dak
- Zadeldak bedekt met pannen
Oppervlakten en inhoud
- Gebruiksoppervlakten
- Wonen
- 68 m²
- Overige inpandige ruimte
- 10 m²
- Externe bergruimte
- 6 m²
- Perceel
- 195 m²
- Inhoud
- 250 m³
Indeling
- Aantal kamers
- 5 kamers (3 slaapkamers)
- Aantal badkamers
- 1 badkamer en 1 apart toilet
- Badkamervoorzieningen
- Douche, wastafel, en wastafelmeubel
- Aantal woonlagen
- 2 woonlagen en een vliering
- Voorzieningen
- Mechanische ventilatie, natuurlijke ventilatie, en rolluiken
Energie
- Energielabel
- Verwarming
- Cv-ketel
- Warm water
- Cv-ketel
- Cv-ketel
- Intergas (gas gestookt uit 2022, eigendom)
Kadastrale gegevens
- PUTTERSHOEK C 2859
- Kadastrale kaart
- Oppervlakte
- 140 m²
- Eigendomssituatie
- Volle eigendom
- PUTTERSHOEK C 2980
- Kadastrale kaart
- Oppervlakte
- 55 m²
- Eigendomssituatie
- Volle eigendom
Buitenruimte
- Ligging
- Aan rustige weg en in woonwijk
- Tuin
- Achtertuin, voortuin en zijtuin
- Achtertuin
- 98 m² (11,50 meter diep en 8,50 meter breed)
- Ligging tuin
- Gelegen op het noorden
Bergruimte
- Schuur/berging
- Vrijstaande stenen berging
Parkeergelegenheid
- Soort parkeergelegenheid
- Op eigen terrein en openbaar parkeren
Foto's 29
© 2001-2026 funda




























