Dit huis op Funda: https://www.funda.nl/detail/koop/renkum/huis-hackettweg-25/43014845/

Omschrijving
Uitgebouwde gezinswoning met een ruime voor- en achtertuin en een stenen garage om de hoek, gelegen aan een autoluwe straat en op loopafstand van bossen en heide.
De woning is ideaal gelegen t.o.v. van centrum van Heelsum (2 min) en Renkum (5 min), de uitvalwegen A12 en de A50 op resp. 10 en 5 autominuten afstand. Nieuwe basisscholen en sportcomplex Doelum in de nabijheid.
Renkum kenmerkt zich door de ideale ligging aan de voet van de Veluwe. De prachtige bossen van het Renkumse Beekdal en de uiterwaarden van de Rijn bevinden zich op loopafstand. De vele mooie natuurgebieden van de Veluwe liggen binnen uw bereik.
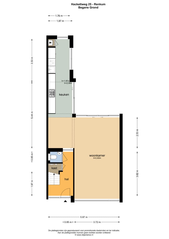
Begane grond;
Entree hal met meterkast, toilet, trapkast en trapopgang. Lichte woonkamer met vrij uitzicht en een schuifpui naar de achtertuin. Uitgebouwde keuken v.v. inbouwapparatuur en schuifpui naar de achtertuin.
Eerste verdieping;
Overloop met 2e toilet en waskamer (voorheen badkamer). Twee royale slaapkamers en fijne en ruime (voorheen 3e slaapkamer) badkamer v.v. een dubbele wastafel en een inloopdouche.
Tweede verdieping;
Deze royale verdieping is vergroot door het plaatsen van een nokverhoging i.c.m. een dakkapel over nagenoeg de volle breedte aan de achterzijde. Voorzolder met dakraam, wastafel en kastruimte. Royale slaapkamer met dakraam en veel kastruimte.
Algemeen;
- v.v. kunststof kozijnen met HR +(+) glas
- v.v. een nokverhoging i.c.m. een dakkapel
- nieuwe dakpannen en dakisolatie
- stenen garage om de hoek gelegen
- zeer fraaie ligging
Wieman makelaardij besteedt de uiterste zorg aan de betrouwbaarheid en actualiteit van de gegevens in de door ons samengestelde verkoopdocumentatie. Onjuistheden en onvolledigheden kunnen echter voorkomen. Aan de door ons gepresenteerde gegevens waaronder de teksten en plattegronden kunnen geen rechten worden ontleend. Twijfelt u aan de juistheid van de gegevens, vraag dan hoe deze zijn verkregen of kom nog een keer kijken. Probeer te allen tijde alle voor u relevante informatie vooraf te verkrijgen. Neem bijvoorbeeld uw eigen NVM-aankoopmakelaar mee.
Kenmerken
Overdracht
- Laatste vraagprijs
- € 380.000 kosten koper
- Vraagprijs per m²
- € 3.519
- Status
- Verkocht
Bouw
- Soort woonhuis
- Eengezinswoning, tussenwoning
- Soort bouw
- Bestaande bouw
- Bouwjaar
- 1963
- Soort dak
- Samengesteld dak
Oppervlakten en inhoud
- Gebruiksoppervlakten
- Wonen
- 108 m²
- Externe bergruimte
- 17 m²
- Perceel
- 142 m²
- Inhoud
- 378 m³
Indeling
- Aantal kamers
- 5 kamers (3 slaapkamers)
- Aantal badkamers
- 1 badkamer en 1 apart toilet
- Badkamervoorzieningen
- Douche en dubbele wastafel
- Aantal woonlagen
- 3 woonlagen
- Voorzieningen
- Buitenzonwering, dakraam, mechanische ventilatie, natuurlijke ventilatie, rolluiken, schuifpui, en zonnepanelen
Energie
- Energielabel
- C
- Isolatie
- Dakisolatie en vloerisolatie
- Verwarming
- Cv-ketel
- Warm water
- Cv-ketel
- Cv-ketel
- Nefit (gas gestookt combiketel uit 2016, eigendom)
Kadastrale gegevens
- RENKUM B 1977
- Kadastrale kaart
- Oppervlakte
- 125 m²
- Eigendomssituatie
- Volle eigendom
- RENKUM B 1988
- Kadastrale kaart
- Oppervlakte
- 17 m²
- Eigendomssituatie
- Volle eigendom
Buitenruimte
- Ligging
- Aan bosrand, aan rustige weg, in bosrijke omgeving, in woonwijk en vrij uitzicht
- Tuin
- Achtertuin en voortuin
- Achtertuin
- 40 m² (8,00 meter diep en 5,00 meter breed)
- Ligging tuin
- Gelegen op het zuiden bereikbaar via achterom
Garage
- Soort garage
- Vrijstaande stenen garage
- Capaciteit
- 1 auto
Parkeergelegenheid
- Soort parkeergelegenheid
- Op eigen terrein en openbaar parkeren
Foto's 42
© 2001-2025 funda









































