Dit huis op Funda: https://www.funda.nl/detail/koop/renswoude/huis-van-reedeweg-47-a/43130118/

BlikvangerRoyaal uitgebouwd met woonkeuken, fijne tuin met veranda en label A!
Omschrijving
Deze fijne halfvrijstaande woning aan Van Reedeweg 47-a in Renswoude heeft alles in huis om comfortabel te wonen. Denk aan zonnepanelen, vloerverwarming en een moderne afwerking, maar ook aan een prachtig aangelegde tuin met veranda waar je het hele jaar door van kunt genieten. De woning, gebouwd in 1987 en in 2022 royaal uitgebouwd, staat op een perceel van 335 m2. Binnen is alles strak afgewerkt met gladde wanden, plafond met inbouwspots en een airco die zorgt voor een aangename temperatuur in elk seizoen. De achtertuin is een heerlijke plek om te ontspannen en op de eigen oprit kun je gemakkelijk meerdere auto’s parkeren. De woning ligt in de geliefde en kindvriendelijke wijk Spikhorst, met diverse speelplekken in de buurt. Basisschool De Stifthorst, het groene Kasteelbos en de winkels in het dorpshart zijn allemaal op loopafstand. Kortom: dit is een kans die je niet wilt missen! Neem contact met ons op voor meer informatie of om een bezichtiging in te plannen — je bent van harte welkom.
Indeling
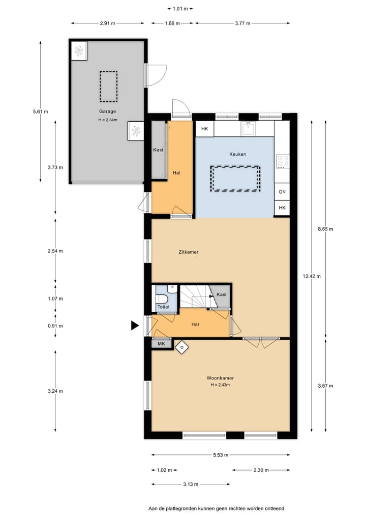
Via de hal kom je binnen in de woning. Hier vind je de meterkast (met glasvezelaansluiting), een moderne toiletruimte met wandcloset en fonteintje en een handige trapkast. Aan de achterzijde ligt de royale woonkeuken (2022) — een lichte en sfeervolle ruimte dankzij het grote daklicht. Er is volop plek voor een eethoek en een gezellige zithoek. De moderne keuken in hoekopstelling is uitgerust met alle gemakken: een kookplaat, afzuigkap, combi-oven, koelkast, vaatwasser en een Quooker.
Aansluitend ligt de bijkeuken met een ruime vaste kast en toegang tot zowel de oprit als de achtertuin. Aan de voorzijde bevindt zich de sfeervolle woonkamer, te bereiken via authentieke openslaande deuren met glas-in-loodramen. De woonkamer heeft een warme en sfeervolle uitstraling, mede dankzij de fraaie houtkachel. De gehele begane grond is voorzien van een stijlvolle pvc-vloer met comfortabele vloerverwarming.
Eerste verdieping
Op de eerste verdieping bevinden zich drie slaapkamers en de badkamer. De slaapkamer aan de achterzijde is over de gehele breedte van de woning gesitueerd en beschikt over een vaste kast en vloerbedekking. De badkamer is volledig betegeld en uitgerust met een douche, wastafelmeubel, toilet en vloerverwarming. Aan de voorzijde vind je nog twee nette slaapkamers, waaronder de ouderslaapkamer, beide met een vaste kast.
Tweede verdieping
Via een vaste trap bereik je de ruime zolderverdieping. Op de overloop zijn de aansluitingen voor de wasmachine en droger, evenals de cv-installatie (Nefit, 2006) aanwezig. Achter de knieschotten is extra bergruimte en daarnaast is er een vierde slaapkamer gerealiseerd, met volop daglicht dankzij het Velux-dakraam. De verdieping is netjes afgewerkt met een laminaatvloer.
Bijzonderheden
De fraai ingerichte achtertuin is een heerlijke plek om buiten te zijn. Er is een bestraat terras, (kunst)gazon, groene borders en een houthok. De sfeervolle veranda met screens en een gezellige houtkachel biedt op warme dagen een fijne, koele plek om te ontspannen en op koelere avonden een behaaglijke zitplek. De woning beschikt over 14 zonnepanelen en ramen met rolluiken en zonwering. Via de poort naast de woning is de tuin achterom bereikbaar. De oprit biedt ruimte voor meerdere auto’s, en in de wijk is daarnaast voldoende parkeergelegenheid. Ook aan speelruimte voor kinderen is geen gebrek.
Kenmerken
Overdracht
- Aangeboden sinds
- Aanvaarding
- In overleg
- Vraagprijs
- € 695.000 kosten koper
- Vraagprijs per m²
- € 4.964
- Status
- Verkocht onder voorbehoud
Bouw
- Soort woonhuis
- Eengezinswoning, 2-onder-1-kapwoning
- Soort bouw
- Bestaande bouw
- Bouwjaar
- 1987
- Soort dak
- Zadeldak bedekt met pannen
- Keurmerken
- Energie Prestatie Advies
Oppervlakten en inhoud
- Gebruiksoppervlakten
- Wonen
- 140 m²
- Overige inpandige ruimte
- 19 m²
- Externe bergruimte
- 25 m²
- Perceel
- 335 m²
- Inhoud
- 565 m³
Indeling
- Aantal kamers
- 5 kamers (4 slaapkamers)
- Aantal badkamers
- 1 badkamer en 1 apart toilet
- Badkamervoorzieningen
- Inloopdouche, ligbad, toilet, vloerverwarming, wastafel, en wastafelmeubel
- Aantal woonlagen
- 3 woonlagen
- Voorzieningen
- Airconditioning, buitenzonwering, dakraam, glasvezelkabel, mechanische ventilatie, rolluiken, rookkanaal, en zonnepanelen
Energie
- Energielabel
- Isolatie
- Volledig geïsoleerd
- Verwarming
- Cv-ketel en houtkachel
- Warm water
- Cv-ketel en elektrische boiler
- Cv-ketel
- Nefit (gas gestookt combiketel uit 2006, eigendom)
Kadastrale gegevens
- RENSWOUDE A 1167
- Kadastrale kaart
- Oppervlakte
- 335 m²
- Eigendomssituatie
- Volle eigendom
Buitenruimte
- Ligging
- Aan rustige weg en in woonwijk
- Tuin
- Achtertuin en voortuin
- Achtertuin
- 174 m² (19,30 meter diep en 9,00 meter breed)
Garage
- Soort garage
- Aangebouwde stenen garage
- Capaciteit
- 1 auto
- Voorzieningen
- Elektrische deur, vliering en elektra
Parkeergelegenheid
- Soort parkeergelegenheid
- Op eigen terrein
Foto's 43
Plattegronden 4
© 2001-2026 funda














































