
Omschrijving
Klussers opgelet!
Hier in de woonwijk Ridderkerk Bolnes bevindt zich deze 4-kamer eengezinswoning gelegen op een aantrekkelijke locatie ten overstaan van de dagelijkse voorzieningen. De woning is voorzien van een verrassend ruime woonkamer, een keuken met inbouw apparatuur, een drietal slaapkamers en badkamer. In de directe nabijheid vindt u winkelcentrum De Werf op loopafstand, openbaar vervoer voorzieningen om de hoek, recreatiegebieden zoals het Doncksebos, verschillende scholen en kinderdagverblijven en diverse uitvalswegen zoals de A15 en A16.
Indeling:
Begane grond:
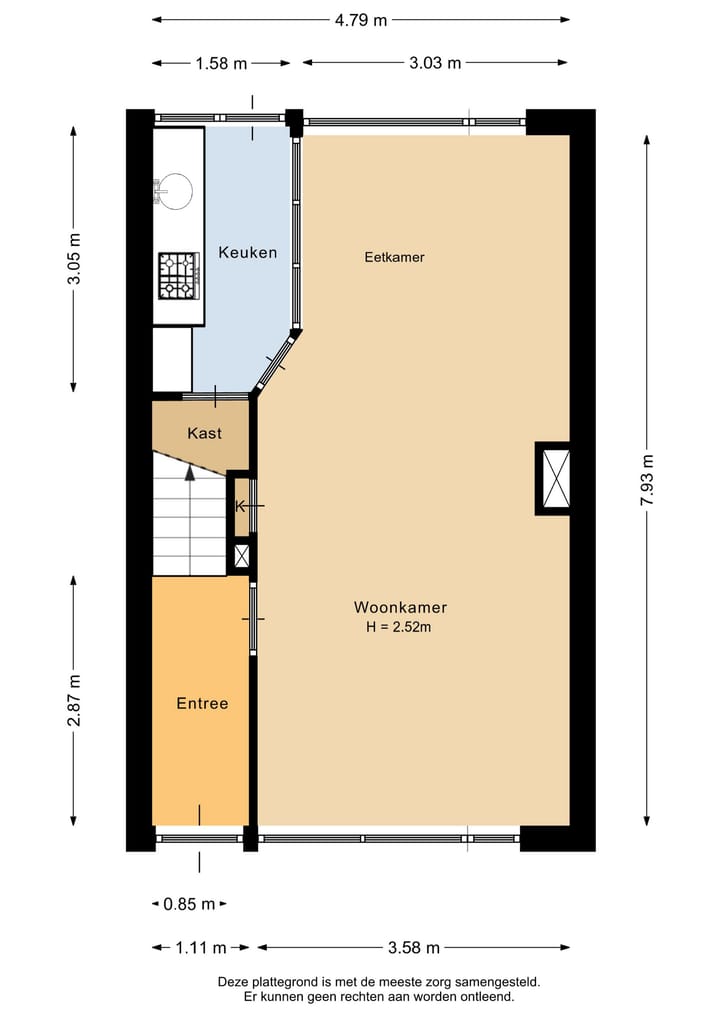
Entree, hal, meterkast en toegang tot de eerste verdieping middels de trap opgang. Vanuit de hal komt terecht in de verrassend ruime woonkamer. Deze woonkamer van ca. 25m2 is voorzien van een tapijtvloer en grote raampartijen die voor veel lichtinval zorgen. Aan de achterzijde van de woning bevindt zich de keuken. Deze keuken is uitgevoerd met een lichte kleurstelling en is voorzien van inbouwapparatuur zoals een 4-pits gaskookplaat en RVS spoelbak. Vanuit de keuken heeft u toegang tot de achtertuin. Deze achtertuin is voorzien van een eigen stenen en berging, achterom en is gelegen op het noorden.
1e verdieping:
Vanuit de overloop heeft u toegang tot alle vertrekken op deze verdieping. Zo vindt u aan de voorzijde van de woning een tweetal slaapkamers welke beschikken over een grootte van ca. 5m2 & 10m2 Beide kamers zijn voorzien van grote raam partijen. Aan de achterzijde van de woning vindt u de hoofdslaapkamer. Deze hoofdslaapkamer van ca. 12m2 is eveneens voorzien van grote raampartijen en beschikt nog over een kast met daarin de cv ketel (Remeha 2016). Dan als laatste bevinden zich tussen de slaapkamers de badkamer. Deze grotendeels betegelde badkamer is voorzien van een douche en wastafel..
Bijzonderheden:
- Eigen grond
- Woonoppervlakte: 77m2
- Inhoud: 258m3
- Verwarming middels een eigen Remeha CV ketel uit 2016
- Isolatie: De woning is grotendeels voorzien van dubbele beglazing
- Mogelijkheid tot het uitbouwen van de woning met een nok verhoging (met vergunning)
- Bijzonder gunstig gelegen ten overstaan van de dagelijkse voorzieningen
- Voorzien van rolluiken op de begane grond
- Oplevering in overleg.
Van der Giessen & Van Herk Makelaars behartigt de belangen van de verkopende partij. Neem uw eigen NVM aankoopmakelaar mee.
Alle verstrekte informatie moet beschouwd worden als een uitnodiging tot het doen van een bod of om in onderhandeling te treden.
Deze informatie is door ons met de nodige zorgvuldigheid samengesteld. Onzerzijds wordt echter geen enkele aansprakelijkheid aanvaard voor enige onvolledigheid, onjuistheid of anderszins, dan wel de gevolgen daarvan. Alle opgegeven maten en oppervlakten zijn indicatief. Van toepassing zijn de NVM voorwaarden.
Koopovereenkomst pas rechtsgeldig na ondertekening:
Een mondelinge overeenstemming tussen de particuliere verkoper en de particuliere koper is niet rechtsgeldig. Met andere woorden: er is geen koop. Er is pas sprake van een rechtsgeldige koop als de particuliere verkoper en de particuliere koper de koopovereenkomst hebben ondertekend. Dit vloeit voort uit artikel 7:2 Burgerlijk Wetboek. Een bevestiging van de mondelinge overeenstemming per e-mail of een toegestuurd concept van de koopovereenkomst wordt overigens niet gezien als een 'ondertekende koopovereenkomst'.
Toelichtingsclausule NEN2580:
De Meetinstructie is gebaseerd op de NEN2580. De meetinstructie is bedoeld om een meer eenduidige manier van meten toe te passen voor het geven van een indicatie van de gebruiksoppervlakte. De meetinstructie sluit verschillen in meetuitkomsten niet volledig uit, door bijvoorbeeld interpretatieverschillen, afrondingen of beperkingen bij het uitvoeren van de meting.
Kenmerken
Overdracht
- Laatste vraagprijs
- € 248.800 kosten koper
- Vraagprijs per m²
- € 3.231
- Status
- Verkocht
Bouw
- Soort woonhuis
- Eengezinswoning, tussenwoning
- Soort bouw
- Bestaande bouw
- Bouwjaar
- 1957
- Soort dak
- Plat dak bedekt met bitumineuze dakbedekking
Oppervlakten en inhoud
- Gebruiksoppervlakten
- Wonen
- 77 m²
- Externe bergruimte
- 7 m²
- Perceel
- 105 m²
- Inhoud
- 258 m³
Indeling
- Aantal kamers
- 4 kamers (3 slaapkamers)
- Aantal badkamers
- 1 badkamer en 1 apart toilet
- Badkamervoorzieningen
- Douche en wastafel
- Aantal woonlagen
- 2 woonlagen
- Voorzieningen
- Natuurlijke ventilatie en rookkanaal
Energie
- Energielabel
- E
- Isolatie
- Gedeeltelijk dubbel glas
- Verwarming
- Cv-ketel
- Warm water
- Cv-ketel
- Cv-ketel
- Remeha (gas gestookt combiketel uit 2016, eigendom)
Kadastrale gegevens
- RIDDERKERK G 2597
- Kadastrale kaart
- Oppervlakte
- 105 m²
- Eigendomssituatie
- Volle eigendom
Buitenruimte
- Ligging
- In woonwijk
- Tuin
- Achtertuin en voortuin
- Achtertuin
- 45 m² (9,00 meter diep en 5,00 meter breed)
- Ligging tuin
- Gelegen op het noorden bereikbaar via achterom
Bergruimte
- Schuur/berging
- Vrijstaande stenen berging
Parkeergelegenheid
- Soort parkeergelegenheid
- Openbaar parkeren
Foto's 42
© 2001-2025 funda









































