Dit huis op Funda: https://www.funda.nl/detail/koop/rijpwetering/huis-buitenweg-8/89134963/

Omschrijving
Deze halfvrijstaande, uitgebouwde woning met aangebouwde garage is gelegen in een landelijke omgeving met speelgelegenheid voor kinderen in de directe nabijheid. De ruime en lichte woning heeft een zeer royale tuin, waar je kunt genieten van het vrije polderuitzicht over de weilanden met grazende koeien en andere natuur. Dat stukje landelijk genieten zie je niet direct aan de voorkant van de woning, maar zodra je in de achtertuin staat (of door de ramen van de woonkamer naar buiten kijkt), begrijp je direct waarom de huidige eigenaren het moeilijk vinden om dit pareltje te koop te zetten. Het is niet voor niets dat zij hier jarenlang hebben genoten van dit stukje paradijs. Dit is wat landelijk wonen met je doet: hier kom je volledig tot rust. De woning heeft een ideale ligging voor woon-werkverkeer en liefhebbers van natuur en tuinieren komen hier zeker aan hun trekken. Daarnaast is er voldoende parkeergelegenheid op eigen terrein, niet alleen in de royale garage, maar ook ervoor is ruimte genoeg. En mocht je visite ontvangen, zij kunnen parkeren in de straat direct voor de deur.
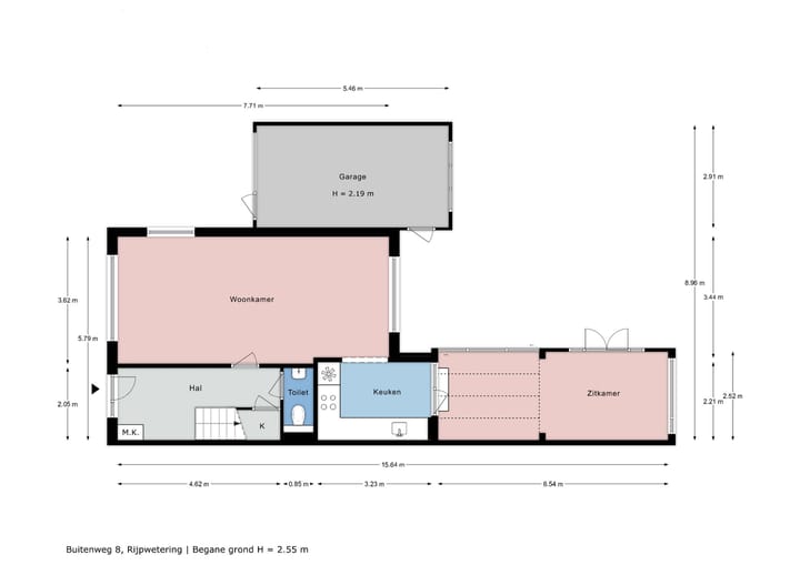
Bij binnenkomst via de royale hal tref je de meterkast en het toilet aan. Vanuit de hal heb je toegang tot de heerlijke, lichte doorzonwoonkamer, die door grote raampartijen aan beide zijden, en een extra raam in de zijgevel, veel natuurlijk daglicht binnenlaat. De open keuken ligt aan de achterzijde van de woonkamer, heeft een hoekopstelling en is voorzien van moderne apparatuur zoals een vaatwasser, 4-pits gaskookplaat, oven/magnetroncombinatie, afzuigkap, een grote koelkast en voldoende kastruimte. Ideaal voor het bereiden van heerlijke maaltijden die je kunt nuttigen aan de eettafel in de woonkamer, maar misschien doe je dat liever in de aangebouwde serre. Deze sfeervolle serre ligt direct achter de keuken en heeft een schuifpui die dienstdoet als buitendeur. Daarnaast heeft de serre openslaande deuren naar het terras. Deze ruimte zorgt ervoor dat je het hele jaar door de natuur de kamer binnenhaalt en kunt genieten van het uitzicht op de tuin.
De verdieping is ingedeeld met een ruime overloop met toilet, en aan de achterzijde van de woning bevindt zich de badkamer met bad-/douchecombinatie, wastafel en aansluiting voor de wasmachine. De deur in de badkamer geeft toegang tot het balkon. Vanaf dit balkon heb je een prachtig polderuitzicht en kijk je over het groen van je eigen tuin. Naast de badkamer ligt de ruime hoofdslaapkamer met een kamer scheidende kastenwand. Aan de voorzijde van de woning ligt de tweede ruime slaapkamer, eveneens voorzien van een kastenwand zoals in de kamer aan de achterzijde. Verder heb je op deze etage nog een derde slaapkamer, die momenteel in gebruik is als kantoorruimte. Alle slaapkamers zijn voorzien van een laminaatvloer.
De tweede verdieping heeft een ruime voorzolder met de opstelplaats voor de cv-combiketel. Verder tref je op deze verdieping nog een zeer royale vierde slaapkamer aan, met aan beide zijden een dakvenster en veel bergruimte achter de knieschotten.
De tuin is al een aantal keren benoemd, maar deze is dan ook echt uniek in deze omgeving. Zo veel ruimte en groen zie je niet vaak voorbij komen. Naast de heerlijke tuin heeft deze woning nog een enorm pluspunt: een zeer praktische garage met vliering. De garage is voorzien van elektra, heeft een betonvloer en een handbediende stalen garagedeur. Aan de achterzijde bevindt zich een loopdeur naar de tuin. Gemak dient de mens op deze locatie!
Belangrijke kenmerken:
• Bouwjaar 1968
• Woonoppervlakte ca. 129 m²
• Perceeloppervlakte 315 m²
• Garage van ca. 16 m²
• Beganegrondvloer deels hout, deels beton
• Vloerverwarming in de serre
• Houten vloeren op de verdieping
• CV-combiketel uit 2018
• Houten kozijnen in de woning
• Aluminium kozijn in de serre
• Gevelisolatie uit 2022
• Vernieuwde meterkast
Alleen al bij het bekijken van de foto’s zul je nieuwsgierig zijn naar deze prachtige woning. We nodigen je dan ook van harte uit om het te komen bekijken!
Kenmerken
Overdracht
- Laatste vraagprijs
- € 595.000 kosten koper
- Vraagprijs per m²
- € 4.612
- Status
- Verkocht
Bouw
- Soort woonhuis
- Eengezinswoning, 2-onder-1-kapwoning
- Soort bouw
- Bestaande bouw
- Bouwjaar
- 1968
- Specifiek
- Gestoffeerd
- Soort dak
- Zadeldak bedekt met pannen
Oppervlakten en inhoud
- Gebruiksoppervlakten
- Wonen
- 129 m²
- Overige inpandige ruimte
- 16 m²
- Gebouwgebonden buitenruimte
- 3 m²
- Perceel
- 315 m²
- Inhoud
- 512 m³
Indeling
- Aantal kamers
- 5 kamers (4 slaapkamers)
- Aantal badkamers
- 1 badkamer en 2 aparte toiletten
- Badkamervoorzieningen
- Ligbad en wastafel
- Aantal woonlagen
- 3 woonlagen
- Voorzieningen
- Dakraam en schuifpui
Energie
- Energielabel
- C
- Isolatie
- Dubbel glas en muurisolatie
- Verwarming
- Cv-ketel en gedeeltelijke vloerverwarming
- Warm water
- Cv-ketel
- Cv-ketel
- Nefit (gas gestookt combiketel uit 2018, eigendom)
Kadastrale gegevens
- ALKEMADE D 2745
- Kadastrale kaart
- Oppervlakte
- 65 m²
- Eigendomssituatie
- Volle eigendom
- ALKEMADE D 2521
- Kadastrale kaart
- Oppervlakte
- 250 m²
- Eigendomssituatie
- Volle eigendom
Buitenruimte
- Ligging
- In woonwijk en vrij uitzicht
- Tuin
- Achtertuin en voortuin
- Achtertuin
- 171 m² (16,00 meter diep en 10,66 meter breed)
- Ligging tuin
- Gelegen op het noordwesten
- Balkon/dakterras
- Balkon aanwezig
Garage
- Soort garage
- Aangebouwde stenen garage
- Capaciteit
- 1 auto
- Voorzieningen
- Vliering en elektra
Parkeergelegenheid
- Soort parkeergelegenheid
- Op eigen terrein en openbaar parkeren
Foto's 42
© 2001-2025 funda









































