Dit huis op Funda: https://www.funda.nl/detail/koop/rijssen/huis-koksweg-6/43803499/

Omschrijving
Ben je op zoek naar een woning die je geheel naar eigen smaak kunt moderniseren? Deze twee-onder-een-kapwoning aan de Koksweg 6 in Rijssen biedt volop mogelijkheden! De woning is ideaal voor de handige klusser of starter die de uitdaging aangaat om deze woning om te toveren tot jouw droomwoning. Zowel de binnen-als buitenkant hebben aandacht nodig, maar het biedt de perfecte basis voor een gemoderniseerd en energiezuinige woning.
De woning is gelegen in een rustige en kindvriendelijke wijk in Rijssen. De ligging is ideaal met zowel het centrum van Rijssen als diverse voorzieningen zoals het NS-station, scholen, supermarkten en sportfaciliteiten op fietsafstand. De woning ligt nabij het hertenkamp en het bosgebied, perfect voor wie houdt van de rust van de natuur.
Ben jij die handige klusser of zie jij potentie in deze woning? Plan snel een afspraak in om de woning te bezichtigen.
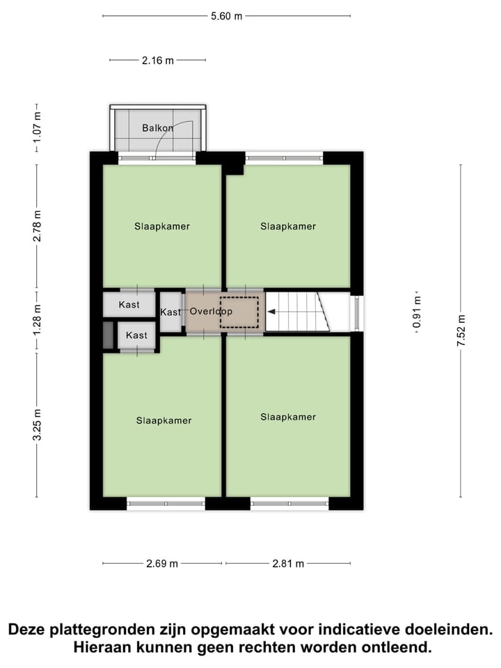
INDELING
Begane grond: entree, toilet, badkamer met douche en wastafel, trapopgang, kelderkast met koekoek, woonkamer met laminaatvloer en gaskachel, keuken voorzien van 4-pits gasfornuis, afzuigkap en oven. Doorgang naar buiten.
Eerste verdieping: overloop, vier slaapkamers waarvan één slaapkamer met balkon aan de achterzijde van de woning,
Zolder: via vlizotrap te bereiken bergzolder met natuurlijk daglicht. Het is mogelijk om een slaapkamer op zolder te realiseren middels het toevoegen van een vaste trap.
Buitenruimte; ruime achtertuin met garage voorzien van een kanteldeur en loopdeur. Aan de achterzijde van de garage bevindt zich een overkapping.
KENMERKEN
- Bouwjaar: 1967
- Woonoppervlakte: 84 m2
- Inhoud: 348 m3
- Perceel: 232 m2
- Energielabel: G
BIJZONDERHEDEN
- Verwarming middels gaskachels
- Warmwatervoorziening middels geiser
- Mogelijkheden om woning geheel naar eigen smaak te moderniseren
- Eigen oprit en stenen garage
Alle beschikbare informatie omtrent deze woning, kunt u eenvoudig raadplegen via uw Move-account. U vindt er een uitgebreide brochure, het meetrapport, het energielabel en indien beschikbaar de vragenlijst deel B en een bouwkundig rapport.
Onze uitingen zijn met de grootste zorg en zorgvuldigheid samengesteld, eventuele onjuistheden geven geen rechten of anderszins aanspraken. Wij adviseren u dan ook alle informatie te controleren en zo nodig na te meten.
Interesse in deze woning? Wij zijn de makelaar voor de verkoper, we raden u aan uw eigen NVM-aankoopmakelaar in te schakelen. Hij of zij komt op voor uw belangen als koper en bespaart u tijd, geld en zorgen.
Kenmerken
Overdracht
- Laatste vraagprijs
- € 269.000 kosten koper
- Vraagprijs per m²
- € 3.202
- Status
- Verkocht
Bouw
- Soort woonhuis
- Eengezinswoning, 2-onder-1-kapwoning
- Soort bouw
- Bestaande bouw
- Bouwjaar
- 1967
- Soort dak
- Zadeldak bedekt met pannen
Oppervlakten en inhoud
- Gebruiksoppervlakten
- Wonen
- 84 m²
- Overige inpandige ruimte
- 13 m²
- Gebouwgebonden buitenruimte
- 3 m²
- Externe bergruimte
- 27 m²
- Perceel
- 232 m²
- Inhoud
- 348 m³
Indeling
- Aantal kamers
- 6 kamers (4 slaapkamers)
- Aantal badkamers
- 1 badkamer en 1 apart toilet
- Badkamervoorzieningen
- Douche en wastafel
- Aantal woonlagen
- 3 woonlagen
- Voorzieningen
- Natuurlijke ventilatie, rolluiken, en rookkanaal
Energie
- Energielabel
- G
- Verwarming
- Gaskachels
- Warm water
- Geiser
Kadastrale gegevens
- RIJSSEN H 2051
- Kadastrale kaart
- Oppervlakte
- 232 m²
- Eigendomssituatie
- Volle eigendom
Buitenruimte
- Ligging
- In woonwijk
- Tuin
- Achtertuin, voortuin en zijtuin
- Achtertuin
- 99 m² (12,00 meter diep en 8,25 meter breed)
- Ligging tuin
- Gelegen op het noorden
- Balkon/dakterras
- Balkon aanwezig
Garage
- Soort garage
- Vrijstaande stenen garage
- Capaciteit
- 1 auto
- Voorzieningen
- Elektra
Parkeergelegenheid
- Soort parkeergelegenheid
- Op eigen terrein en openbaar parkeren
Foto's 43
© 2001-2025 funda










































