
Omschrijving
Uitzonderlijk ruim 2-laags topappartement in de gewilde Rijswijkse Bomenbuurt van Oud Rijswijk. Het appartement beschikt over een balkon aan de achterzijde en een eigen berging op de begane grond achter het gebouw.
Omgeving:
De lommerrijke Bomenbuurt is een kindvriendelijke autoluwe woonwijk, met kleine (kinderspeel)pleintjes en grenzend aan De Vliet. Oud-Rijswijk kent een gezellig stadscentrum met winkels als de Hema en AH, naast een groot aantal speciaalzaken, slagers, (banket-)bakkers en op zaterdag een uitgebreide markt. Voor de grotere boodschappen is Winkelcentrum de Bogaard nabij, alsook het oude centrum van Voorburg. De treinstations Hollands Spoor, Voorburg en Den Haag CS zijn makkelijk en snel bereikbaar. Naar het centrum van Den Haag en Delft is het +/- 20 minuten fietsen. De uitvalswegen richting Rotterdam (A4 en A13), Utrecht (A12), Amsterdam en Schiphol (A4 en A44) en Den Haag (via Binckhorst) zijn eveneens snel bereikbaar.
Indeling:
Afgesloten hoofdentree met brievenbussen en bellentableau, trappenhuis, toegang tot de woning op de 2e verdieping. Ruime hal met modern toilet voorzien van hangend wandcloset en fontein. Ruime woon-/eetkamer (2 geschakelde kamers naast elkaar) over de breedte aan de voorzijde (ca. 7,9 x 3,6 m) met vaste kasten en 2 schouwen. Dankzij de ligging op de bovenste verdieping is de woning opvallend licht en uiteraard geen contactgeluid van bovenburen. Moderne keuken (ca. 3,0 x 2,0 m) met inbouwapparatuur, waaronder: heteluchtoven, gaskookplaat, rvs afzuigkap en vaatwasser. De keuken verschaft toegang tot het aan de achterzijde gelegen balkon met balkonkast. Hoofdslaapkamer (ca. 4,1 x 2,8 m) met vaste kast en toegang tot de aangrenzende moderne badkamer met doucheruimte, thermostaatkraan en wastafelmeubel met spiegelkast. Tweede slaapkamer (ca. 3,0 x 2,4 m) met vaste kast.
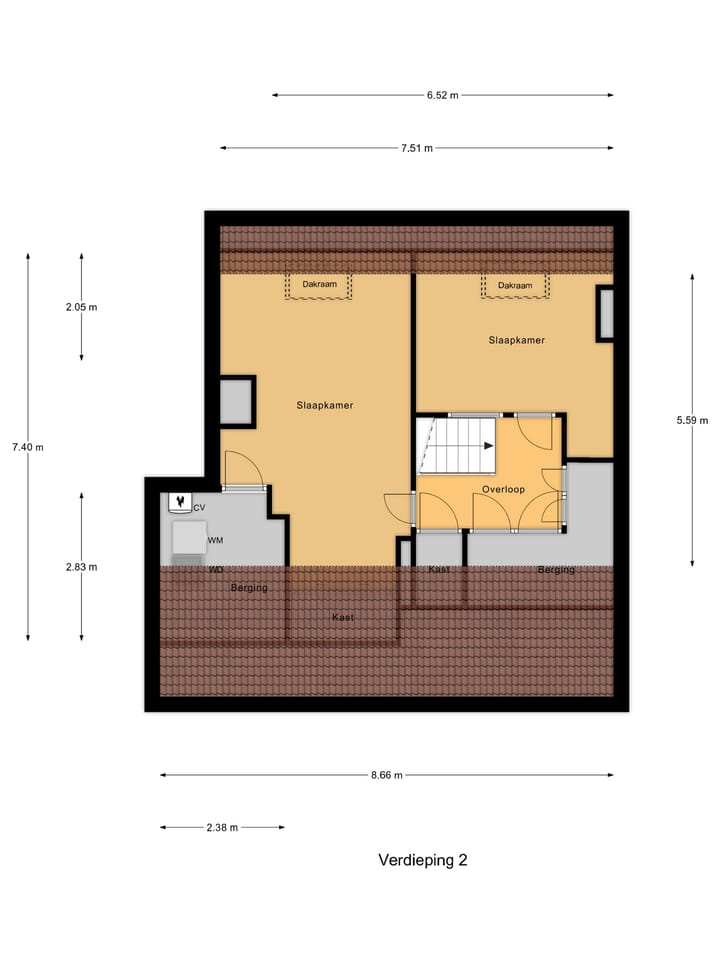
Vanaf de hal is via een goed beloopbare trap de kapverdieping toegankelijk. Vanwege de nokhoogte is deze verdieping zeer goed bruikbaar voor allerlei doeleinden. Momenteel is deze verdieping opgesplitst in 2 ruime slaapkamers (resp. ca. 5,3 x 3,8 en 5,3 x 3,6 m), beiden met een dakraam. Berging met opstelplaats wasmachine en HR-combi ketel (geplaatst in 2015), maar indien gewenst is deze ruimte dankzij de reeds aanwezige waterafvoer en –toevoer ook uitermate geschikt om een 2e badkamer te realiseren.
Achter het gebouw is een afgesloten poort waaraan een eigen berging (ca. 2,1 x 1,6 m) is gelegen.
Extra informatie:
- Eigen grond
- Bouwjaar 1950
- Ca. 115 m2 woonoppervlakte
- Pannendak vernieuwd (2023/2024)
- Voorzien van dubbele beglazing (m.u.v. bovenlichten achterzijde)
- Energielabel E
- Markiezen bij de woonkamer aan de voorzijde
- Active en gezonde VvE (€153,- per maand)
Kenmerken
Overdracht
- Laatste vraagprijs
- € 399.000 kosten koper
- Vraagprijs per m²
- € 3.500
- Status
- Verkocht
- Bijdrage VvE
- € 153,00 per maand
Bouw
- Soort appartement
- Portiekwoning (dubbel bovenhuis)
- Soort bouw
- Bestaande bouw
- Bouwjaar
- 1950
- Soort dak
- Zadeldak bedekt met pannen
Oppervlakten en inhoud
- Gebruiksoppervlakten
- Wonen
- 114 m²
- Overige inpandige ruimte
- 1 m²
- Gebouwgebonden buitenruimte
- 4 m²
- Externe bergruimte
- 3 m²
- Inhoud
- 402 m³
Indeling
- Aantal kamers
- 5 kamers (4 slaapkamers)
- Aantal badkamers
- 1 badkamer en 1 apart toilet
- Badkamervoorzieningen
- Douche en wastafel
- Aantal woonlagen
- 2 woonlagen
- Voorzieningen
- Dakraam, rookkanaal, en TV kabel
- Gelegen op
- 3e woonlaag
Energie
- Energielabel
- E
- Isolatie
- Dubbel glas
- Verwarming
- Cv-ketel
- Warm water
- Cv-ketel
- Cv-ketel
- Gas gestookt combiketel uit 2015, eigendom
Kadastrale gegevens
- RIJSWIJK G 2137
- Kadastrale kaart
- Eigendomssituatie
- Volle eigendom
Buitenruimte
- Ligging
- In woonwijk
- Balkon/dakterras
- Balkon aanwezig
Parkeergelegenheid
- Soort parkeergelegenheid
- Openbaar parkeren
VvE checklist
- Inschrijving KvK
- Ja
- Jaarlijkse vergadering
- Ja
- Periodieke bijdrage
- Ja (€ 153,00 per maand)
- Reservefonds aanwezig
- Ja
- Onderhoudsplan
- Ja
- Opstalverzekering
- Ja
Foto's 36
© 2001-2025 funda



































